Lượt xem: 3970
Nhà phố mái thái là dạng được các gia đình việt xây dựng nhiều nhất ở các vùng nông thôn có khu đất rộng. Nhavn cũng đã giới thiệu rất nhiều mẫu nhà phố mái thái đẹp từ trước tới nay và hôm nay cũng sẽ giới thiệu thêm cho các gia đình tham khảo thêm một mẫu nhà phố mái thái. Kiến trúc hình khối cân đối có nhiều mái đan xen, diện tích xây dựng chỉ 75m2 và tiết kiệm chi phí xây dựng.

STT Hạng mục chi tiết
1 Công năng sử dụng 1 phòng khách, 1 phòng ăn, 1 phòng bếp, 3 phòng ngủ, 3 WC, phòng thờ, phòng làm việc
2 Diện tích đất xây dựng 5x15m
3 Diện tích sử dụng 231m2
4 Chi phí thiết kế kiến trúc 120.000 đ/m2
5 Chi phí thiết kế nội thất 100.000 đ/m2
6 Chi phí thi công xây dựng Liên hệ
Bên trong nhà phố 3 phòng ngủ được bố trí khoa học phù hợp nhu cầu và ý tưởng của gia đình, đồng thời tuân thủ phong thủy xây nhà mang lại sự an tâm cho gia chủ.

Các không gian được thiết kế diện tích vừa đủ sinh hoạt, không nhỏ quá cũng không lớn quá. Phòng khách kê bộ bàn ghế gỗ tự nhiên, phòng bếp ăn thông với phòng khách và được ngăn cách bởi vách tivi thoáng.

Phòng thờ thiết kế góc lồi ở mặt tiền chính, phía sau là phòng ngủ ông bà, tiếp đến là 1 phòng ngủ khép kín dành cho vợ chồng ngăn cách bởi giếng trời kết hợp nhà vệ sinh khép kín, phòng ngủ con được thiết kế phía sau bếp. Nhà vệ sinh chung và khu giặt phơi được được bố trí ở góc cuối nhà có cửa hậu ra vườn sau.

Không chỉ chú trọng mặt kiến trúc, các kiến trúc sư còn mang đến một không gian sống hoàn hảo theo phong cách hiện đại. Căn nhà sang trọng, đơn giản, gần gũi nhưng cũng không kém phần tiện nghi đáp ứng nhu cầu sinh hoạt của cả cho gia đình.

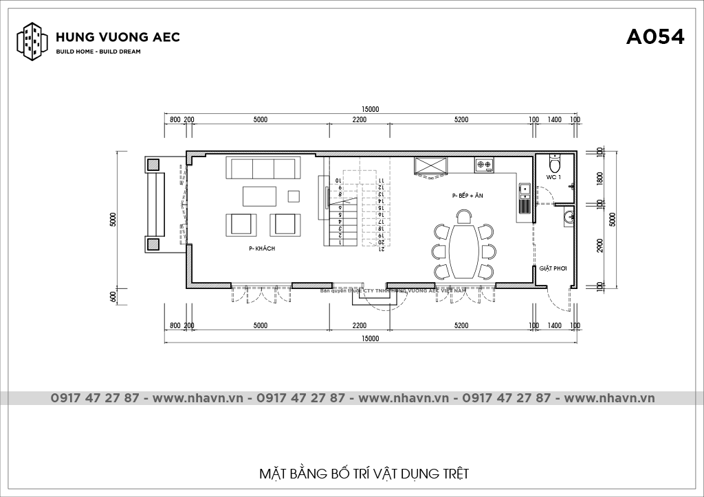
Tầng trệt gồm phòng khách, phòng bếp kết hợp với phòng ăn, khu vệ sinh và giặt phơi.

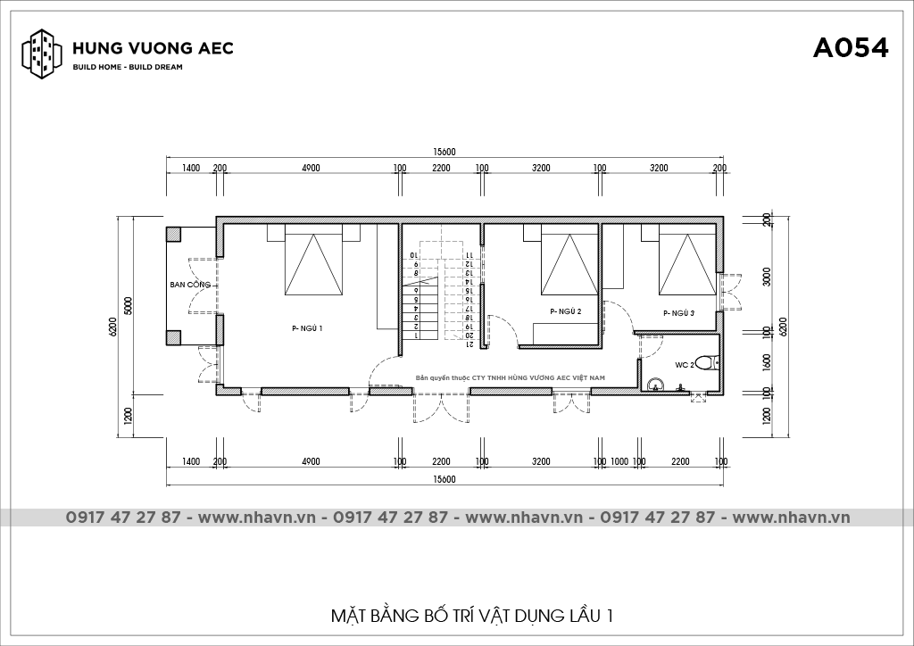
Lầu một của căn nhà được bố trí với 3 phòng ngủ và 1 nhà vệ sinh chung.

Lầu 2 gồm phòng thờ, phòng làm việc, và sân phơi
Hồ sơ bản vẽ thiết kế nhà phố mái thái đẹp 3 tầng bao gồm:
Nhavn.vn với nhiều năm kinh nghiệm trong lĩnh vực thiết kế thi công nhà đẹp trên toàn quốc. Đội ngũ kiến trúc sư, kỹ sư chuyên môn và thẩm mỹ cao cam kết sẽ sáng tạo hết mình mang lại không gian sống lý tưởng cho bạn và gia đình.