Lượt xem: 2330
Mẫu nhà mái thái đẹp 3 tầng được thiết kế theo kiểu mái thái mang lại sự mới mẻ trong khi các mẫu thiết kế nhà ống hiện nay đều mang lối kiến trúc hiện đại. Ở bài viết này, Nhavn.vn muốn gửi đến quý vị tham khảo thêm về một mẫu nhà ống 3 tầng mặt tiền 5m với không gian sống thoải mái, tông màu nhẹ nhàng, thanh thoát để nghỉ ngơi sau một ngày làm việc.

STT Hạng mục chi tiết
1 Công năng sử dụng 1 phòng khách, 1 phòng ăn, 1 phòng bếp, 7 phòng ngủ, 6 WC, phòng thờ
2 Diện tích đất xây dựng 32x6m
3 Diện tích sử dụng 395m2
4 Chi phí thiết kế kiến trúc 120.000 đ/m2
5 Chi phí thiết kế nội thất 100.000 đ/m2
6 Chi phí thi công xây dựng Liên hệ
Mẫu nhà ống 3 tầng mặt tiền 5m là sự kết hợp nhuần nhuyễn của màu sắc tường cột mang đến cái nhìn tinh tế cho tổng thể ngôi nhà. Nguyên liệu tạo thành kiến trúc mãn nhãn của mẫu nhà phố 3 tầng mặt tiền 5m này rất đơn giản. Kiến trúc mái thái với những tiểu tiết không quá cầu kỳ, hệ mái dốc độc đáo hợp phong thủy. Tuy nhiên, với kiến trúc sang trọng và tinh tế của mẫu nhà ống đẹp 3 tầng 5m mái thái này, bạn đọc sẽ được thấy vô số sự mới mẻ và lạ mắt được tạo thành từ những điều đã quen.

Mẫu nhà phố 3 tầng mặt tiền 5m sử dụng màu xám ghi làm tông màu chính. Với không gian ngoại thất được tạo các mảng miếng đan xen kết hợp với các nguyên vật liệu, các tông màu ấn tượng đã khiến cho không gian mặt tiền trở nên vô cùng ấn tượng, bắt mắt và thu hút. Từ góc phối cảnh này bạn đọc có thể thấy mẫu nhà ống đẹp 3 tầng 5m của ngôi nhà được các kiến trúc sư Nhavn.vn đầu tư ý tưởng và trau chuốt đến từng tiểu tiết. Sự cân đối của những chi tiết với “tỉ lệ vàng” đã giúp ngôi nhà phố 3 tầng vẫn giữ được cốt cách của phong cách mái thái mà vẫn hiện đại, tiện nghi và hợp thời.

Các nguyên liệu của phong cách mái thái như công sơn, hoa văn, phào chỉ,… đã được các kiến trúc sư Nhavn.vn lược giản khi đưa vào mẫu thiết kế nhà đẹp này. Cách xử lý linh hoạt bố cục các chi tiết kiến trúc đã giúp mặt tiền nhà ống 3 tầng rộng 5m sở hữu nét thanh lịch hút mắt với mặt tiền hoàn hảo.

Hệ thống cửa ra vào và cửa ban công được thiết kế với chất liệu gỗ truyền thống kết hợp của nhôm kính hiện đại khiến cho mặt tiền của mẫu nhà phố 3 tầng mặt tiền 5m trở nên vô cùng ấn tượng cũng như tăng thêm vẻ đẹp của phong cách mái thái. Bên cạnh đó, hệ thống cửa thoáng, cửa sổ được sử dụng bằng các tấm pano kính giúp cho không gian bên trong phòng trở nên sáng sủa, thoáng mát hơn. Hệ thống ban công cũng được mở ra khá rộng rãi, gia đình có thể tận dụng khoảng trống này để có thể đặt thêm các chậu cây cảnh vừa giúp tổng thể trở nên sinh động mà còn giúp căn nhà trở nên đẹp mắt, đầy sinh khí.

Nhìn vào tổng thể mẫu nhà phố 3 tầng mặt tiền 5m, đây chính là một trong những mẫu thiết kế mà gia đình luôn ao ước được sở hữu. Với những tính toán chi tiết và kỹ lưỡng từ phía các chủ đầu tư đã biến công trình trở nên vô cùng đẹp mắt cũng như đã chinh phục được biết bao trái tim.
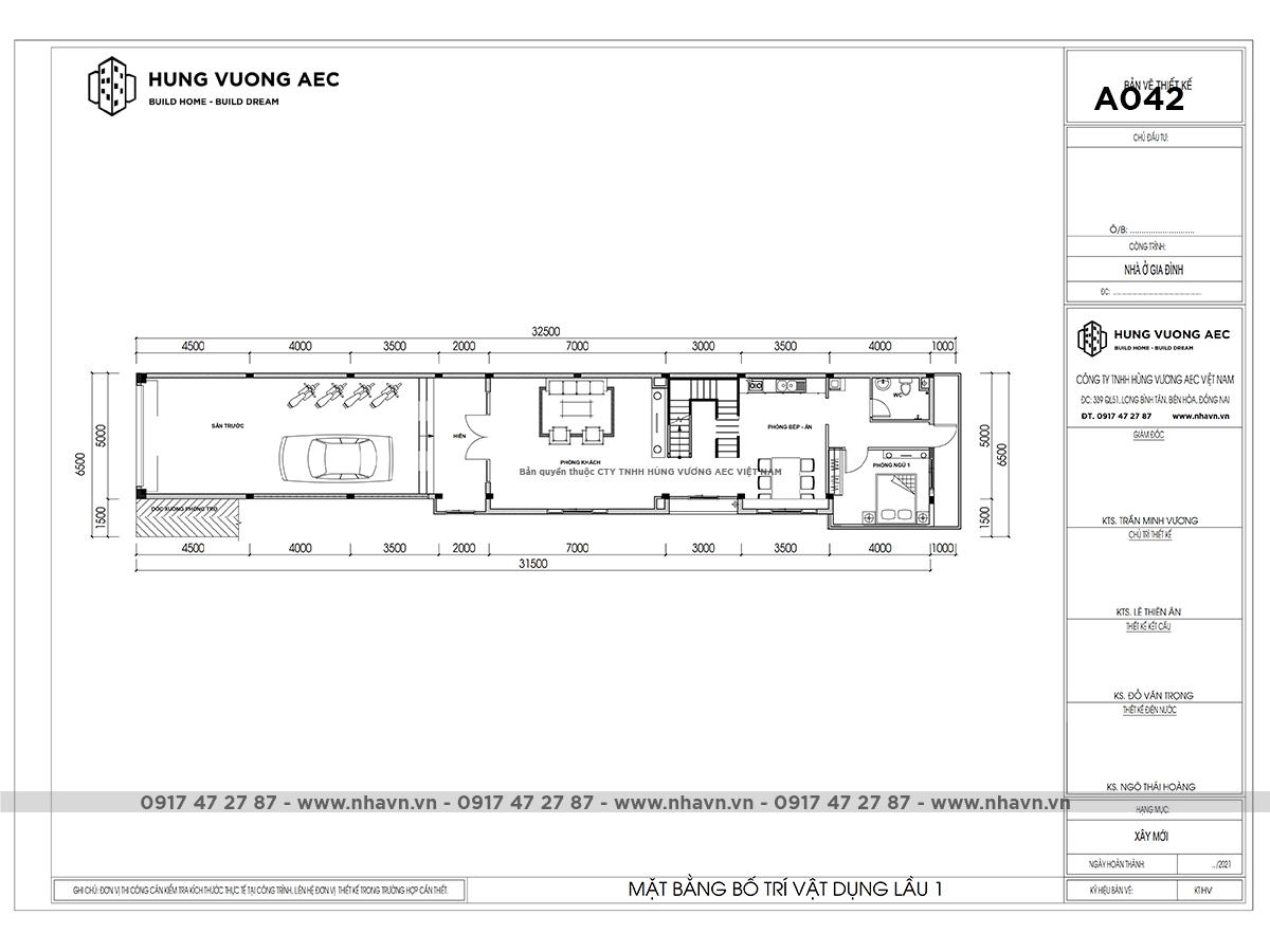
Tầng 1 gồm phòng các phòng trọ cho thuê.

Tầng 2 gồm sân trước, phòng khách, phòng bếp, phòng ngủ Master, khu vệ sinh chung, và sân phơi.

Tầng 3 được thiết kế với 2 phòng ngủ, phòng thờ, và sinh hoạt chung.
Toàn bộ hồ sơ thiết kế công năng các phòng và kiến trúc đều được tư vấn hợp theo Phong thủy và tuổi của chủ đầu tư. Kích thước các phòng, chiều cao nhà và kích thước cửa đều theo kích thước phong thủy.
Các kiến trúc sư tại Nhavn.vn có nhiều kinh nghiệm trong lĩnh vực thiết kế thi công nhà ở với kiến thức chuyên môn và gu thẩm mỹ nghệ thuật cao cam kết sẽ sáng tạo hết mình mang lại không gian sống lý tưởng nhất cho bạn và gia đình.
-NHÀ PHỐ MÁI THÁI 3 TẦNG 6X23 – A025
-NHÀ PHỐ 3 TẦNG MÁI THÁI 4 PHÒNG NGỦ 4X20 – A046
-NHÀ PHỐ HIỆN ĐẠI 3 TẦNG 3 PHÒNG NGỦ 5X16 – MA002