Lượt xem: 10096
Từ những nghiên cứu, ứng dụng công nghệ và nguyên vật liệu mới của hiện đại của thế kỷ 21, những ngôi Biệt thự mang Kiến trúc mái Nhật trở thành những công trình đắt giá và được săn đón rất nhiều trong thời gian gần đây. Kết hợp với nguyên tắc đơn giản của kiến trúc hiện đại đã tạo nên một không gian sống mở, tiện nghi, sang trọng.

STT Hạng mục Chi tiết
1 Công năng sử dụng 1 phòng khách, 1 phòng ăn, 1 phòng bếp, 1 phòng dâng lễ, 5 phòng ngủ, 4 WC, ban công
2 Diện tích đất xây dựng 10x11m
3 Diện tích sử dụng 207.1 m2
4 Chi phí thiết kế kiến trúc 120.000 đ/m2
5 Chi phí thiết kế nội thất 100.000 đ/m2
6 Chi phí thi công xây dựng Liên hệ
Căn Biệt thự 2 tầng được thiết kế theo phong cách Hiện đại và được bố trí công năng với những tính toán kỹ lưỡng nhằm đáp ứng mọi như cầu của chủ đầu tư. Không chỉ thõa mãn yếu tố thẩm mỹ cao, cách bố trí công năng cũng được các KTS đảm bảo tuyệt đối trong việc lấy sáng, lấy gió bằng những nguyên vật liệu hiện đại, để từ đó mẫu nhà vườn 2 tầng hiện đại đã chiếm được thiện cảm từ các vị khách ghé thăm công trình.

Những thiết kế nhà mái Nhật luôn đề cao sự đơn giản, tiện lợi, phù hợp với điều kiện khí hậu Việt Nam nhờ khả năng chống nóng, tản nhiệt, thoát nước tốt. Ngôi nhà 2 tầng mái Nhật này được thi công bằng phương pháp đổ bê tông viền, sau đó xây tường thu hồi phía trong, dựng gác vì kèo, cầu phong, li tô bằng chất liệu thép hộp mạ kẽm không gỉ rồi dán ngói đất nung.

Mặt tiền ngôi nhà chính là hạng mục quan trọng nhất bởi đây chính là chìa khóa giúp căn Biệt thự trở nên khác biệt hơn. Màu trắng chủ đạo được sử dụng trong thiết kế ngoại thất của ngôi nhà, thể hiện sự tinh khiết, sang trọng, làm nổi bật những đường phào chỉ, phào phân tầng, làm cho ngôi nhà tỏa sáng dưới ánh nắng mặt trời. Để tạo điểm nhấn cho ngoại thất ngôi nhà, dải tường áp mái được lát gạch thẻ màu nâu, kết hợp với màu xanh than của hệ mái Nhật, tất cả đã tạo nên sự đồng điệu trong hình khối kiến trúc của ngôi nhà.

Các khối hình học được áp dụng trong thiết kế này đều tận dụng triệt để vẻ kiến trúc khỏe khoắn và những khối hình hộp. Khi kết hợp với lan can lục bình, cửa kính khung nhôm Xingfa, cây cối đã tạo nên điểm nhấn khiến cho mẫu nhà vườn 2 tầng hiện đại trở nên vô cùng sang trọng, đẳng cấp. Hệ thống cửa của mẫu nhà vườn 2 tầng 100m2 được sử dụng đa phần là chất liệu kính cường lực cao cấp. Chỉ duy nhất hệ thống cửa chính là được sử dụng chất liệu gỗ thịt nhưng xung quanh vẫn được điểm xuyết bởi các ô cửa thoáng giúp cho không gian bên trong nhà khu vực nào cũng đều thoáng đãng, sáng sủa. Chất liệu làm cửa chính được tuyển chọn vô cùng kỹ lưỡng sao cho chất lượng sản phẩm luôn bền đẹp.
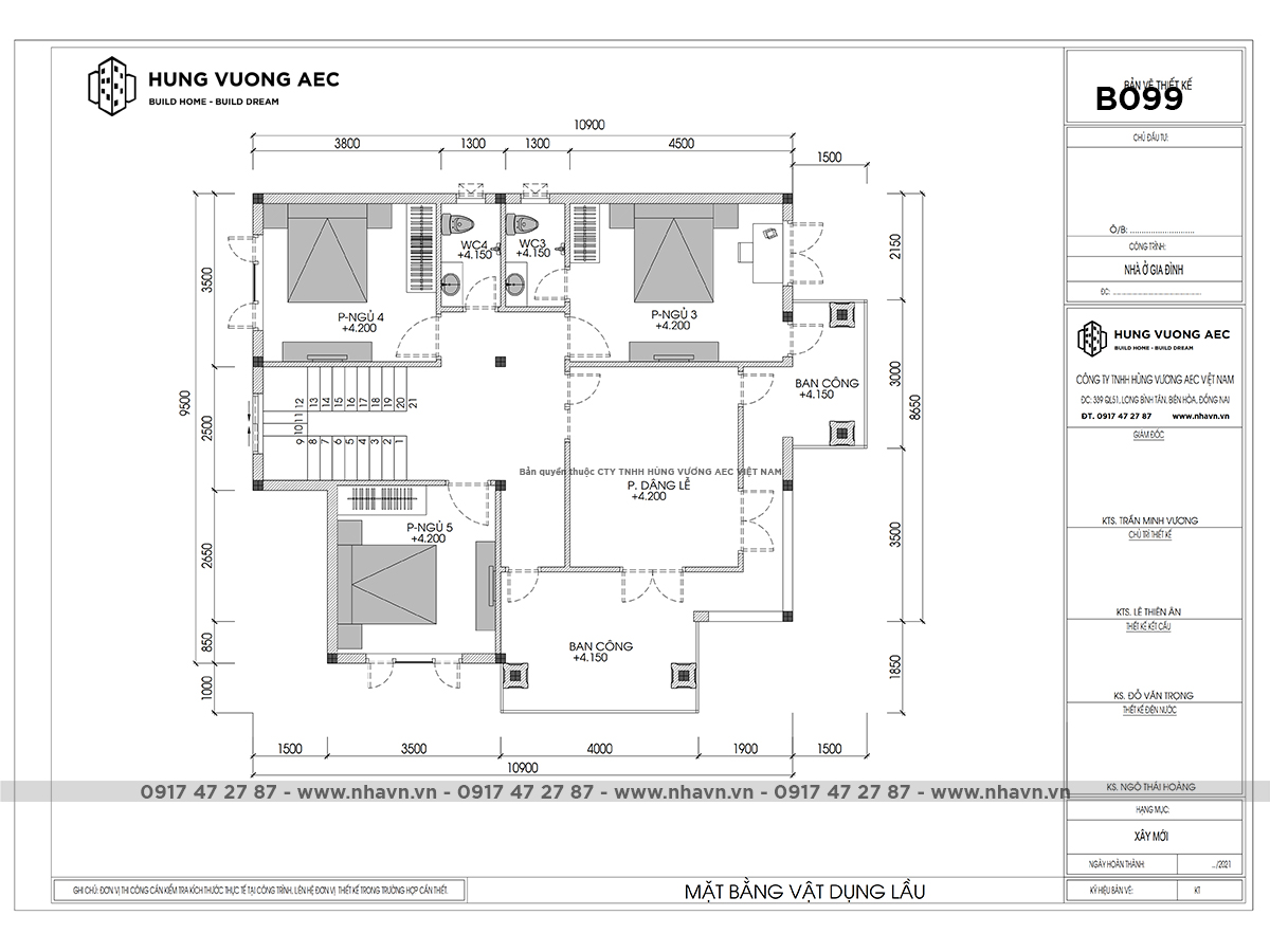
Công năng ngôi Biệt thự đẹp mái Nhật được bố trí khoa học, chuẩn phong thủy, đáp ứng nhu cầu sinh hoạt của các thành viên trong gia đình:

Tầng 1: Phòng khách rộng, Phòng bếp, 2 Phòng ngủ, 1 WC chung.

Tầng 2: Phòng thờ, 3 Phòng ngủ, 1 WC chung.
Mẫu biệt thự đẹp và khoa học, phối cảnh không gian ấn tượng, nếu như bạn yêu thích mẫu thiết kế này, hãy liên hệ để nhận được tư vấn sát nhất với mặt bằng công trình của gia đình nhé.
NHÀ PHỐ 2 TẦNG HIÊN ĐẠI 8×25 – B125
NHÀ PHỐ HIÊN ĐẠI 2 TẦNG 5×20 – B119