Lượt xem: 3655
Một trong những xu hướng thiết kế xây dựng nhà hiện đang rất thịnh hành và được nhiều chủ đầu tư yêu thích chính là mẫu biệt thự mái thái 2 tầng hiện đại. Nếu quý vị yêu thích loại hình kiến trúc biệt thự hiện đại kết hợp với sân vườn, đừng bỏ qua mẫu thiết kế nhà đẹp này để góp phần hoàn thiện phương án thiết kế cho công trình kiến trúc của gia đình mình trong tương lai.

STT Hạng mục chi tiết
1 Công năng sử dụng 1 phòng khách, 1 phòng ăn, 1 phòng bếp, 3 phòng ngủ, 3 WC, phòng thờ.
2 Diện tích đất xây dựng 6x26m
3 Diện tích sử dụng 282m2
4 Chi phí thiết kế kiến trúc 120.000 đ/m2
5 Chi phí thiết kế nội thất 100.000 đ/m2
6 Chi phí thi công xây dựng Liên hệ
Mẫu thiết kế biệt thự mái thái 2 tầng theo phong cách kiến trúc hiện đại kết hợp sân vườn thoáng, rộng rãi và xanh mát. Kiến trúc biệt thự kiến cố và thể hiện được sự tinh tế, sang trọng và tỉ mỉ, thiết kế công năng được bố trí khoa học bao gồm 4 phòng ngủ, phòng làm việc, phòng khách, phòng bếp, phòng thờ. Tất cả công năng thiết kế phải tối ưu và phân bổ sao cho đồng đều để tạo điều kiện thuận lợi cho việc di chuyển và nhu cầu sinh hoạt.
Ngôi nhà 2 tầng được thiết kế chi tiết từ màu sắc, vật liệu xây dựng, đồ nội thất cho đến đường nét kiến trúc, bố trí đều có sự tính toán kỹ lưỡng của các kiến trúc sư.

Cùng với, hệ thống cửa chính, cửa sổ và cửa thông gió đều được làm bằng chất liệu kính cường lực khung nhôm đen được bố trí dày đặt, nó vừa giúp cho căn nhà tăng thêm vẻ đẹp phóng khoáng, trẻ trung vừa giúp đón nhận những làn gió, ánh sáng tự nhiên từ bên ngoài vào các phòng, tránh sự ngột ngạt, tù túng một cách hiệu quả cho mẫu biệt thự nhà vườn 2 tầng này.

Màu sắc ngoại thất biệt thự vườn đẹp nhã nhặn và trang nhã, cùng với hình khối kiến trúc mái thái có kiểu dáng hình chữ A đua ra rộng, có độ dốc vừa phải và nổi bật với tông màu trang nhã, toát lên nét đẹp cuốn hút với sắc màu đầy sự tươi mới. Hình khối vững chắc từ hệ thống mái thái cho đến bố cục chung của công trình, được xem là yếu tố khá quan trong trong việc cấu thành nên một ngôi nhà vững trãi. Với cảnh quan thiên nhiên sân vườn bát ngát, cùng với khoảng không thông thoáng của khu vực sân trước, tạo nên một không gian hoàn hảo, lý tưởng cho gia đình chủ đầu tư.
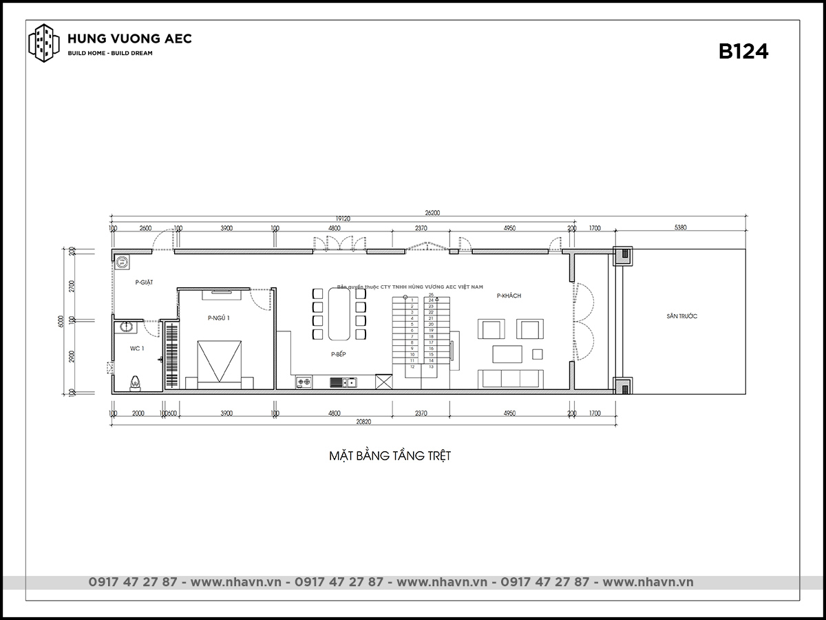
Các kiến trúc sư nắm rõ các yêu cầu và mong muốn của gia đình chủ đầu tư, chúng tôi đã triển khai phương án thiết kế mặt bằng công năng sao cho tiện nghi và khoa học nhất cho từng thành viên. Từ sảnh chính bước vào là không gian phòng khách được thiết kế liên thông với phòng bếp và phòng ăn tạo điều kiện cho sự thông thoáng và kết nối giữa không gian các phòng. Ngay bên cạnh là phòng ngủ, có nhà vệ sinh chung. Cầu thang thông tầng được đặt tại vị trí giữa nhà.

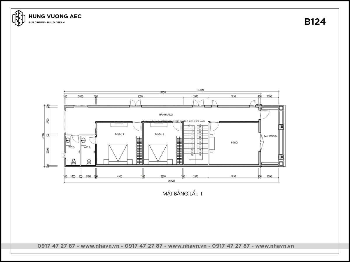
Từ cầu thang thông tầng đi lên tầng 2 của mẫu biệt thự nhà vườn 2 tầng, đối diện là phòng vệ sinh chung. Bên tay phải là khu vực 2 phòng ngủ. Bên tay trái là không gian phòng thờ được thiết kế kín đáo, thể hiện sự trang nghiêm cũng như lòng tôn kính ông bà tổ tiên, thiết kế hướng ra ban công trước nhằm lấy ánh sáng tối cho không gian này.

Thiết kế mẫu biệt thự nhà vườn 2 tầng hiện đại đẹp đáp ứng hoàn toàn đầy đủ các tiêu chí về một kiến trúc đẹp, sang trọng vừa đảm bảo công năng sử dụng khoa học, tiện nghi. Nếu bạn yêu thích phương án thiết kế nhà trên, hãy vui lòng liên hệ đến Nhavn để được tư vấn chi tiết và cụ thể.