Lượt xem: 3201
Nhà biệt thự 2 tầng mái Nhật được kiến trúc Nhavn.vn thiết kế dựa trên ý tưởng và sở thích phong cách tân cổ điển của gia chủ. Biệt thự 2 tầng không quá cầu kỳ sa hoa có sự cách tân, sáng tạo trong thiết kế, mang đến sự mới mẻ nhưng vẫn được sự sang trọng, đẳng cấp.

STT Hạng mục chi tiết
1 Công năng sử dụng 1 phòng khách, 1 phòng ăn, 1 phòng bếp, 4 phòng ngủ, 4 WC, phòng thờ, phòng sinh hoạt chung
2 Diện tích đất xây dựng 13x21m
3 Diện tích sử dụng 555m2
4 Chi phí thiết kế kiến trúc 120.000 đ/m2
5 Chi phí thiết kế nội thất 100.000 đ/m2
6 Chi phí thi công xây dựng Liên hệ
Kiến trúc sư của Nhavn.vn đã tư vấn phong cách thiết kế biệt thự tân cổ điển 2 tầng, một phong cách không quá đầu tư về chi tiết nhưng vẫn toát lên sự sang trọng, đẳng cấp. Dựa theo những ý tưởng về công năng trong biệt thự cũng như những yêu cầu đặc biệt, kiến trúc sư Nhavn.vn đã bắt tay vào thiết kế ngôi biệt thự mái nhật cho gia đình. Có thể thấy rằng, biệt thự 2 tầng gia đình đáp ứng được đầy đủ những yêu cầu của anh về mặt thiết kế. Với biệt thự mặt tiền dài, kiến trúc Nhavn.vn đã giúp ngôi nhà của được hoàn thiện từ công năng cho đến thiết kế nội ngoại thất.

Các kiến trúc sư Nhavn.vn đã lựa chọn thiết kế biệt thự mái Nhật cho công trình của gia đình. Lý do được đưa ra là bởi mái Nhật là loại mái mới được du nhập vào Việt Nam. Loại mái này là sự kết hợp một cách hoàn hảo giữa phong cách châu Âu và châu Á. Mái Nhật vừa mang nét hiện đại nhưng cũng không kém phần sang trọng tôn lên sự đẳng cấp cho ngôi biệt thự đẹp.
Không chỉ vậy, mái Nhật khi du nhập vào Việt Nam đã được cải tiến để phù hợp hơn với đặc điểm khí hậu nước ta. Với độ dốc vừa phải, mái Nhật giúp thoát nước tốt hơn. Đồng thời mái lợp là loại ngói cách nhiệt giúp cho ngôi biệt thự luôn được thoáng mát. Những vườn tiểu cảnh được bố trí xung quanh biệt thự giúp tạo điểm nhấn, mang lại không gian xanh mát, và giúp con người được gần gũi với thiên nhiên hơn.

Biệt thự 2 tầng mái Nhật nhà được thiết kế đối xứng tạo sự cân đối trong tổng thể thiết kế. Nếu quan sát bạn sẽ thấy toàn bộ thiết kế được đối xứng một cách hoàn hảo. Không chỉ chuẩn chỉ về kích thước mà ngay cả trang trí cũng được thiết kế đối xứng cả hai phía tạo nên sự chuẩn mực, trang nhã, thể hiện được phong cách của gia chủ.

Tầng 1 gồm phòng khách, phòng ăn lớn, phòng bếp ăn gia đình, 1 phòng ngủ với nhà vệ sinh khép kín, và 1 vệ sinh chung.

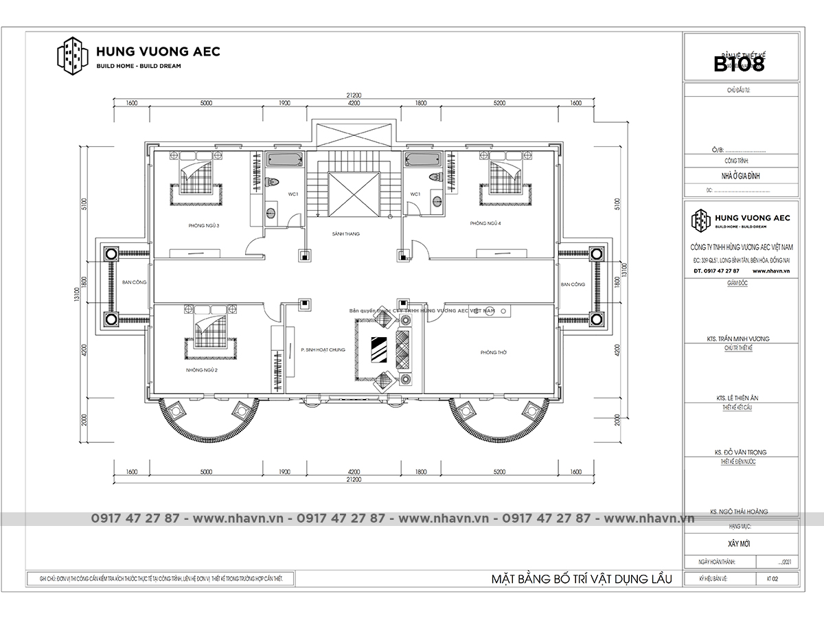
Tầng 2 được thiết kế với 3 phòng ngủ, phòng thờ, phòng sinh hoạt chung, và 1 vệ sinh chung.
Để tạo điểm nhấn cho thiết kế sân vườn, biệt thự 2 tầng nhà được thiết kế phần vọng lâu và gara để xe ngoài trời. Thiết kế vọng lâu được đặt ngay cạnh biệt thự giúp cho tổng thể thiết kế thêm phần sang trọng và đẳng cấp. Đây là nơi để các thành viên trong gia đình có thể nghỉ ngơi, thư giãn, hòa mình vào thiên nhiên, cùng nhau ngồi thưởng trà, ngắm nhìn khung cảnh tuyệt sắc xung quanh biệt thự.
Trên đây là toàn bộ thiết kế biệt thự 2 tầng mái Nhật để quý gia chủ tham khảo. Công trình này sau khi hoàn thiện được gia đình vô cùng ưng ý và thêm tin tưởng vào kiến trúc Nhavn.vn. Nếu quý gia chủ đang muốn tìm người đồng hành để xây đắp lên tổ ấm cho gia đình mình, hãy liên hệ kiến trúc Nhavn.vn ngay hôm nay để được tư vấn thiết kế.