Lượt xem: 4403
Với những gia đình có ít thành viên thì những mẫu nhà ống thấp tầng luôn là lựa chọn hàng đầu. Bản vẽ nhà phố mái thái 2 tầng 3 phòng ngủ 5x25m với kinh phí đầu tư giá rẻ, tuy nhiên vẫn đảm bảo phối cảnh kiến trúc hiện đại, tươi mới.

| STT | Hạng mục | chi tiết |
|---|---|---|
| 1 | Công năng sử dụng | 1 phòng khách, 1 phòng ăn, 1 phòng bếp, 3 phòng ngủ, 3 WC, phòng thờ. |
| 2 | Diện tích đất xây dựng | 5x25m |
| 3 | Diện tích sử dụng | 248m2 |
| 4 | Chi phí thiết kế kiến trúc | 120.000 đ/m2 |
| 5 | Chi phí thiết kế nội thất | 100.000 đ/m2 |
| 6 | Chi phí thi công xây dựng | Liên hệ |
Kiến trúc thấp tầng, thường chú trọng đến mặt bằng công năng sử dụng và kiến trúc mặt tiền sao cho có thể đón nhận được nhiều ánh sáng tự nhiên cũng như gió thoáng cho toàn bộ không gian thiết kế.
Ngay khi tiếp nhận yêu cầu thiết kế nhà của chủ đầu tư, tiến hành khảo sát hiện trạng thực tế, kiến trúc sư đã lên kế hoạch cũng như phương án mặt đứng, mặt cắt và mặt bằng sao cho khoa học và phù hợp với điều kiện thực tế nhất của gia đình chủ đầu tư. Với mặt tiền 5m, chiều sâu dài 25m, phương án xử lý mặt tiền nhanh chóng được xử lý. Kiến trúc sư đã bố trí thiết kế mặt tiền khá thoáng và rộng.

Mặt tiền thiết kế đẹp mắt với thiết kế cửa cuốn, thiết kế hoa văn thay cho những bức tường bê tông, cho nên không gian mặt tiền thêm thoáng hơn, đẹp hơn, hiện đại hơn. Nhà xe được bố trí ở khoảng sân trước, kết hợp với tiểu cảnh xanh đem đến sức sống và không gian thông thoáng của chủ nhân.

Thiết kế hình khối giật cùng với khoảng cửa kính nhôm Xingfa màu nâu đen trên tầng 2, hệ thống trần được ốp lam nhựa màu nâu giả gỗ. Với hình khối kiên cố, thiết kế đẹp mắt, không gian mặt tiền đem đến những cảm hứng mới lạ hơn cho không gian nhà phố.

Với những mẫu nhà ống thấp tầng, hiệu ứng thẩm mĩ mặt tiền đem đến thường không nhiều và ít khi thiết kế tập trung. Tuy nhiên với mẫu thiết kế nhà ống 2 tầng hiện đại này, kiến trúc sư đã kiến tạo nên một không gian sống tươi mới, nổi bật và hoàn toàn khác biệt so với những phối cảnh kiến trúc trước đó.

Ngoại thất nhà ống luôn là một trong những yếu tố tác động và ảnh hưởng quan trọng đến sự hoàn hảo cũng như tính thẩm mĩ cao cùng với công năng sử dụng tối ưu hoá. Để làm được điều này, kiến trúc sư đã tiến hành khảo sát hiện trạng thực tế, từ đó kiến tạo nên sự đồng bộ và thống nhất, từ màu sắc ngoại thất cho đến nội thất phía trong mẫu nhà ống 2 tầng đẹp.
Sử dụng màu sơn sáng cùng với những cấp độ hài hoà, đem đến một tổng thể cho không gian chung. Với sự tích hợp theo những chủ điểm cùng vơi quy luật bánh xe màu sắc, một không gian rộng mở, tươi mới đang giúp cho mẫu nhà phố đẹp thêm ấn tượng hơn.

Hình khối đơn giản nhưng ấn tượng, màu sắc tươi tắn và hài hoà, sự kết hợp ăn ý tạo nên một không gian kiên cốm bền vững và đẹp mắt. Không gian sống tiện nghi, đáp ứng nhu cầu của gia đình trẻ.
Với diện tích thiết kế không quá rộng, cùng với kiến trúc nhà ống, kiến trúc sư đã có phương án bố trí mặt bằng công năng sử dụng sao cho khoa học cũng như sát nhất với yêu cầu cụ thể của gia đình.

Tầng trệt được bố trí khoảng sân trước để xe khá thoáng và rộng, phòng khách được bố trí ngay cạnh cửa chính cửa ra vào, thiết kế cầu thang ở trung tâm, nhà vệ sinh chung được thiết kế phía sau, vừa tiết kiệm diện tích vừa tận dụng không gian. Không gian bếp nấu và bàn ăn được bố trí phía trong cùng, vừa thoáng rộng vừa tạo điều kiện thuận tiện cho việc sử dụng cũng như di chuyển của các thành viên.

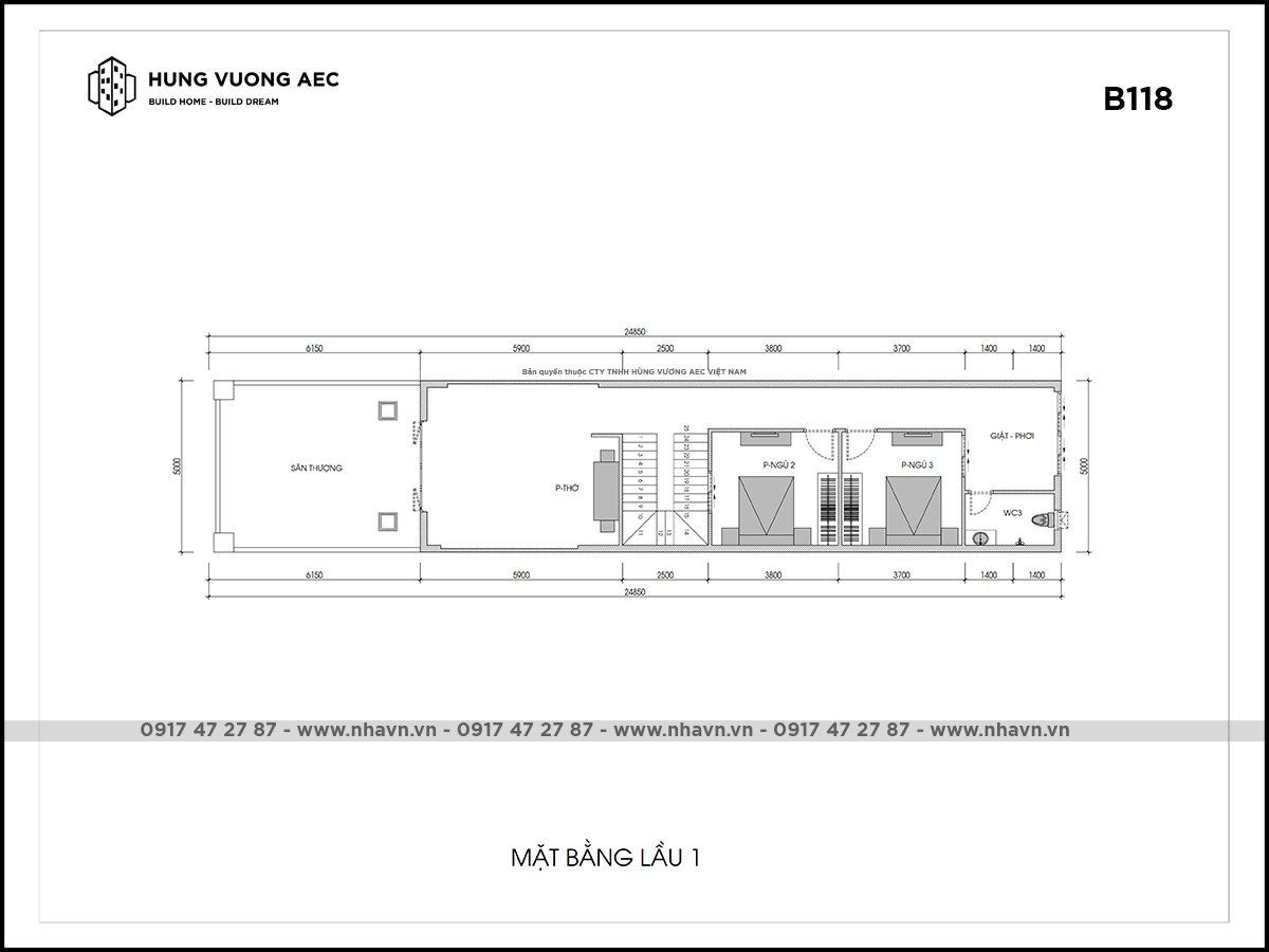
Tầng 1 bố trí 2 phòng ngủ, thiết kế khép kín, phòng thờ bố trí hướng cửa ban công trước, đón nhận được nhiều ánh sáng cũng như gió thoáng, đồng thời phân bổ đồng đều cho các không gian phía trong. sân thượng phía trước tạo thêm không gian sinh hoạt cho gia đình.
Với mặt bằng công năng cũng như mẫu thiết kế hiện đại này, kiến trúc sư chúng tôi đã chinh phục hoàn toàn chủ đầu tư. Phối cảnh thiết kế bản vẽ nhà ống 2 tầng 5x25m được thông qua ngay trong ngày đầu tiên họp bàn. Mọi tư vấn chi tiết cũng như cụ thể hơn cho mặt bằng công trình, hãy liên hệ với kiến trúc sư. Nhavn.vn cam kết sẽ kiến tạo không gian kiến trúc hoàn hảo nhất cho gia đình bạn.