Lượt xem: 2286
Với những ưu điểm nổi bật cả về thiết kế và giải pháp chi phí, các ngôi biệt thự 2 tầng cổ điển vẫn luôn là loại hình công trình làm mưa làm gió trên thị trường xây dựng khắp 3 miền đất nước. Đây là loại hình kiến trúc hội tụ nét đẹp tinh tế của nghệ thuật cổ điển hòa lẫn sự phóng khoáng, nhẹ nhàng của phong cách kiến trúc hiện đại tạo nên những nét đẹp vừa quý phái vừa tiện nghi.

STT Hạng mục chi tiết
1 Công năng sử dụng 1 phòng khách, 1 phòng ăn, 1 phòng bếp, 3 phòng ngủ, 4 WC, phòng thờ.
2 Diện tích đất xây dựng 14x23m
3 Diện tích sử dụng 645m2
4 Chi phí thiết kế kiến trúc 120.000 đ/m2
5 Chi phí thiết kế nội thất 100.000 đ/m2
6 Chi phí thi công xây dựng Liên hệ
Những ngôi biệt thự được thiết kế theo phong cách cổ điển rất đặc biệt, nó hướng chủ đầu tư đến những không gian sống sang trọng, đẳng cấp mà vô cùng gần gũi với giải pháp chi phí phù hợp với số đông. Đây thực sự là sự lựa chọn thiết kế biệt thự đáng lưu ý.

Nhavn đã khẳng định vị thế với nhiều mẫu thiết kế biệt thự phong cách cổ điển đẹp và cũng là đơn vị sở hữu bộ sưu tập những mẫu thiết kế cổ điển đa dạng. Với kinh nghiệm và năng lực đã được khẳng định, Nhavn trở thành cái tên thân thiện là luôn là lựa chọn được ưu tiên cho những chủ đầu tư yêu thích phong cách cổ điển và mong muốn sở hữu công trình độc đáo trong thiết kế và chất lượng trong thi công.

Trong những năm qua, các mẫu thiết kế biệt thự phong cách cổ điển mang thương hiệu Nhavn với đặc trưng rõ nét đã có mặt trên khắp các tỉnh thành như Hà Nội, Quảng Ninh, Quảng Bình,… Thiết kế biệt thự cổ điển tại Quảng Bình cũng đã đạt được chỗ đứng nhất định. Mỗi công trình thiết kế thành công đã đánh dấu sự phát triển mạnh mẽ của Nhavn trong thời gian qua.

Ngôi biệt thự cổ điển nổi bật với hệ thống mái dốc sử dụng hình khối vừa khỏe khoắn vừa mềm mại, mang đến sự hài hòa trong thiết kế. Bên cạnh đó, sự tinh tế trong cách lựa chọn màu sắc của các kiến trúc sư cũng đã góp phần quan trọng làm nổi bật nét trang nhã của ngôi nhà. Cụ thể, công trình được thiết kế với tone trắng chủ đạo, hệ thống mái sử dụng màu xanh đen sắc nét, sự kết hợp này mang đến một công trình mang phong cách cổ điển rõ rệt, khẳng định gu thẩm mỹ tinh tế của chủ nhân và người thiết kế.

Mặc dù đã trình làng nhiều mẫu biệt thự cổ điển nhưng mỗi công trình do Nhavn thiết kế lại mang trong mình một vẻ đẹp riêng biệt, không có bất kỳ thiết kế nào giống nhau. Mỗi thiết kế luôn hình thành dựa trên những yêu cầu, mong muốn, sở thích của khách hàng. Đây cũng chính là yếu tố làm nên sức cạnh tranh cho các mẫu biệt thự đẹp của Nhavn. Chúng tôi tự hào mang đến chủ đầu tư những công trình không chỉ sang trọng mà còn tiện nghi.
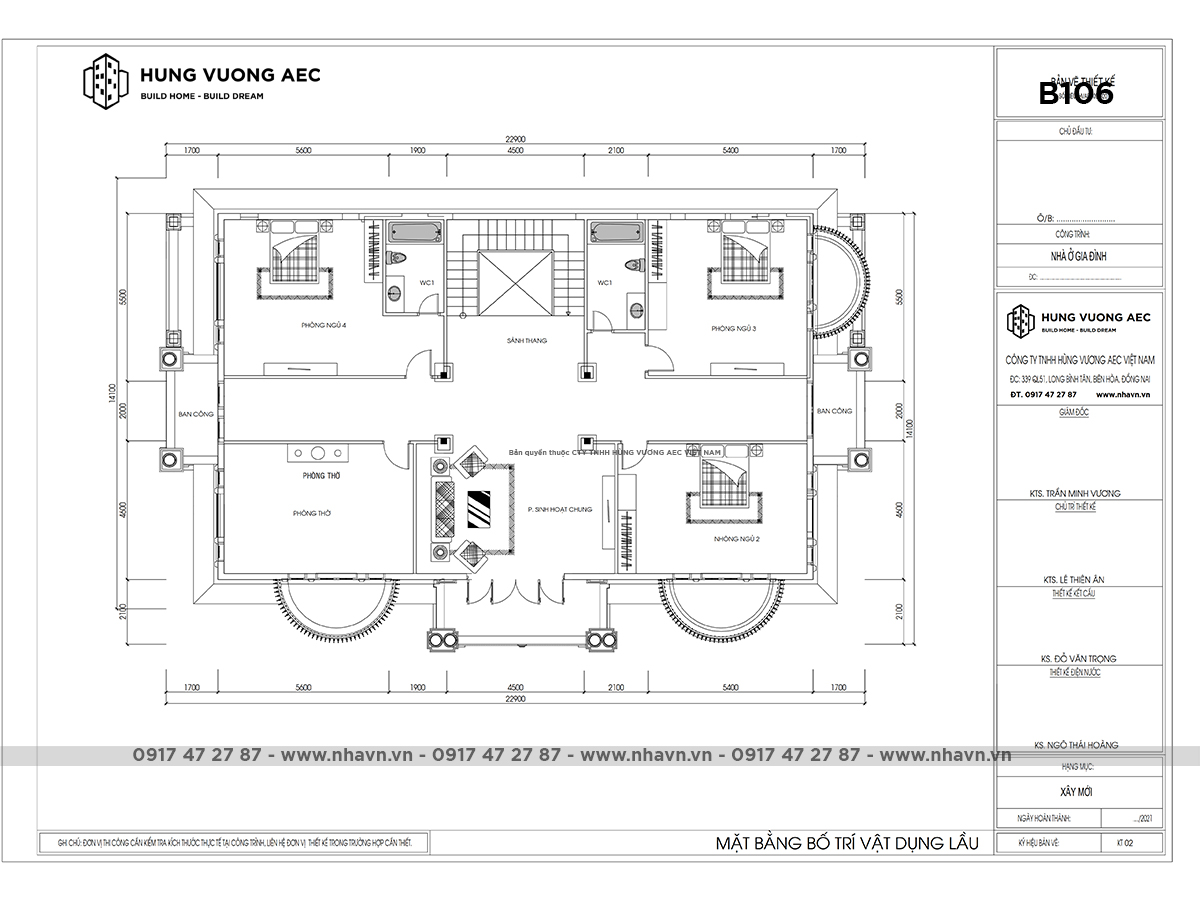
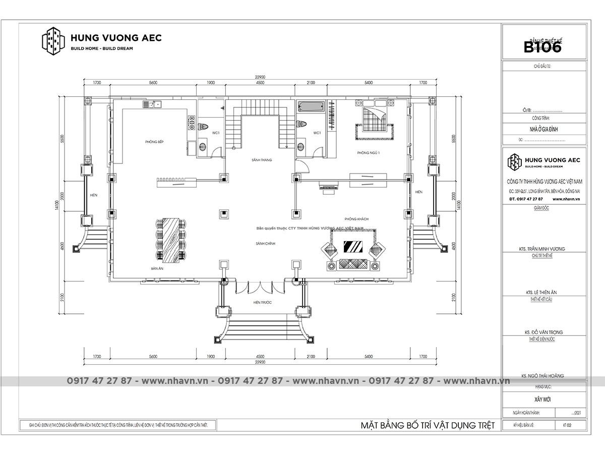
Tại các bản vẽ dưới đây, bạn đọc sẽ được thấy cách các kiến trúc sư Nhavn đã bố trí công năng biệt thự cổ điển. Công năng được lên sát với nhu cầu của gia chủ và dựa vào phân tích ưu nhược điểm khu đất nơi công trình tọa lạc.

Công năng bao gồm: Phòng khách; phòng bếp ăn; 4 phòng ngủ; phòng sinh hoạt chung; phòng thờ; các phòng vệ sinh.
Cách bố trí công năng ngôi biệt thự khá thoáng nhưng đầy đủ các phòng chức năng phục vụ nghỉ ngơi và giải trí.

Trên đây, chúng tôi vừa giới thiệu đến bạn đọc hồ sơ thiết kế biệt thự 3 tầng cổ điển Nhavn bàn giao mới nhất cho chủ đầu tư. Trong các bài viết sau, chúng tôi sẽ tiếp tục cập nhật đến bạn đọc phương án thiết kế nội thất biệt thự. Nhavn cảm ơn bạn đọc đã theo dõi bài viết.