Lượt xem: 3027
Các mẫu biệt thự 2 tầng mái thái hiện đại ngày nay đang rất được ưa chuộng và trở thành trào lưu xây dựng nhà ở trong những năm vừa qua bởi sự phóng khoáng, khỏe khắn và nét đẹp độc đáo của loại hình kiến trúc này. Nó không chỉ đáp ứng tất cả các nhu cầu sinh sống của đại đa số gia đình nước ta trong thời buổi hiện nay, thiết kế nhà đẹp 2 tầng kết hợp sân vườn rộng rãi còn đem đến không gian sống thư giãn và thoải mái cho các thành viên trong gia đình.

| STT | Hạng mục | chi tiết |
|---|---|---|
| 1 | Công năng sử dụng | 1 phòng khách, 1 phòng ăn, 1 phòng bếp, 3 phòng ngủ, 3 WC, phòng thờ. |
| 2 | Diện tích đất xây dựng | 6x20m |
| 3 | Diện tích sử dụng | 250m2 |
| 4 | Chi phí thiết kế kiến trúc | 120.000 đ/m2 |
| 5 | Chi phí thiết kế nội thất | 100.000 đ/m2 |
| 6 | Chi phí thi công xây dựng | Liên hệ |
Sở hữu diện tích đất có mặt tiền rộng, chủ đầu tư đã sở hữu trọn vẹn mẫu thiết kế biệt thự mái thái đẹp khoa học và vô cùng sang trọng với bản phối cảnh chi tiết hoàn hảo. Các kiến trúc sư sau khi tiếp nhận các mong muốn, yêu cầu của gia đình chủ đầu tư cùng với việc khảo sát hiện trạng và kinh nghiệm thực tế của đội ngũ kiến trúc sư Nhavn.vn, phương án thiết kế kiến trúc biệt thự này nhanh chóng được hoàn thành. Từ chi tiết tường rào cho đến cổng cửa cũng như kiến trúc mặt tiền, mặt bằng công năng, mọi thứ đều được tính toán kỹ lưỡng và tỉ mỉ nhất.

Tổng thể kiến trúc biệt thự 2 tầng đẹp này chúng ta có thể thấy nét đẹp sang trọng và mới mẻ được tạo ra bởi sự kết hợp hài hòa giữa các tone màu sắc với nhau. Các kiến trúc sư Nhavn.vn đã lựa chọn tinh tế gam màu nền chính cho ngôi nhà này là tone màu trắng, một trong các tone màu khá phổ biến trong các căn biệt thự hiện nay bởi nó mang đến cho kiến trúc sự đẳng cấp, hiện đại và sáng sủa mà lại dễ phối cùng các tone màu khác mà không bị mờ nhạt.

Bên cạnh đó, bằng cách tạo hình khối vuông vức và bố cục được phân chia khoa học kết hợp với các nguyên vật liệu hiện đại chắc chắn sẽ đem lại cái nhìn mới lạ cho người xem cũng như thể hiện rõ nét đẹp đặc trưng của kiểu dáng kiến trúc hiện đại. Không quá cầu kỳ trong việc trang trí như những ngôi nhà theo hướng cổ điển hay tân cổ điển, biệt thự 2 tầng mái thái đẹp theo phong cách hiện đại chủ yếu tập trung khai thác các khối hình, sử dụng vật liệu xây dựng cao cấp, màu sắc tươi sáng và luôn hướng đến một không gian sống mở, gần gũi với thiên nhiên. Vì vậy mà loại hình kiến trúc này được đông đảo chủ đầu tư lựa chọn và yêu thích trong những năm vừa qua.
Hệ thống mái thái xanh kiên cố và vững trãi, cửa kính cường lực trong suốt được bố trí dày đặt, đây là một trong những điểm nhấn tạo nên sự nổi bật và sang trọng cũng như bề thế cho mẫu biệt thự 2 tầng mái thái đẹp lần này. Mái thái giúp điều hòa, lưu thông khí trong nhà được diễn ra thuận lợi tạo không gian mát mẻ, cửa kính góp phần tô thêm nét đẹp hiện đại, đón gió và nắng tự nhiên từ bên ngoài vào làm không gian nhà trở nên mát mẻ tránh được sự ngột ngạt tù túng.
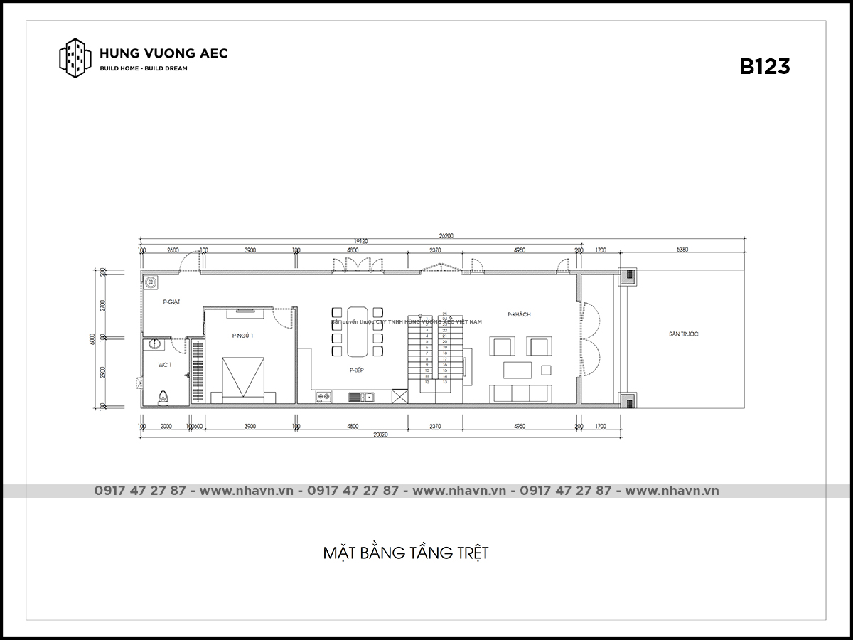
Mặt bằng công năng của mẫu thiết kế biệt thự 2 tầng bao gồm:
Tầng trệt gồm phòng khách, bếp ăn, phòng ngủ, WC, và khu vực giặt phơi.

Lầu 1 được thiết kế với 2 phòng ngủ, phòng thờ, và khu vực ban công.

Nếu quý vị và các bạn muốn nắm bắt thêm thông tin chi tiết về mẫu biệt thự mái thái đẹp này cũng như muốn tham khảo nhiều hơn về các phương án thiết kế biệt thự mái thái, vui lòng liên hệ trực tiếp đến văn phòng công ty thông qua địa chỉ ở cuối trang web để được các kiến trúc sư hỗ trợ giải đáp các thắc mắc và nhân viên tư vấn thêm thông tin.