Lượt xem: 3903
Mẫu nhà phố 3 tầng hiện đại là một trong những cụm từ khóa được khách hàng tìm kiếm nhiều nhất trên các trang công cụ tìm kiếm hiện nay. Trong bài viết hôm nay, chúng tôi trân trọng giới thiệu đến quý bạn đọc và khách hàng mẫu thiết kế nhà phố 3 tầng với mặt bằng công năng được thiết kế khoa học, tối ưu không gian và chi phí phù hợp với nhiều hộ gia đình.

| STT | Hạng mục | chi tiết |
|---|---|---|
| 1 | Công năng sử dụng | 1 phòng khách, 1 phòng ăn, 1 phòng bếp, 6 phòng ngủ, 5 WC, phòng thờ, 2 phòng sinh hoạt chung |
| 2 | Diện tích đất xây dựng | 32x6m |
| 3 | Diện tích sử dụng | 633m2 |
| 4 | Chi phí thiết kế kiến trúc | 120.000 đ/m2 |
| 5 | Chi phí thiết kế nội thất | 100.000 đ/m2 |
| 6 | Chi phí thi công xây dựng | Liên hệ |
Kiến trúc mẫu nhà phố 3 tầng khá đơn giản với những hình khối vuông cơ bản, thiết kế ấn tượng và lịch lãm với hệ thống vật liệu hiện đại cũng như kỹ thuật trang trí mặt tiền đầy tính thu hút. Từ việc thiết kế hình khối toát lên sự kiên cố và khỏe khắn cho đến sự vững chắc của kết cấu cũng như sự phối hợp ăn ý và đồng bộ từ kiến trúc đến nội thất tạo nên hiệu ứng thẩm mỹ cao, hài hòa trong tổng thể.

Kiến trúc mặt tiền lầu 1 với ô cửa sổ chữ L độc đáo, kết hợp cùng ban công lầu 2 đua ra rộng với tầng trệt 1m, tất cả đều được thiết kế tinh toán khoa học, mang đến cho công trình một cái nhìn đầy hấp dẫn và lôi cuốn. Điểm nhấn ấn tượng của nhà phố 3 tầng hiện đại đó chính là cách kết hợp các hình khối hiện đại, tạo nên những ấu ấn khá rõ nét cũng như khó có thể lẫn lộn với bất cứ công trình nào khác.

Phối màu sắc nhà phố hiện đại khoa học và tươi sáng, có sự ăn ý cũng như đồng nhất với nhau, kết hợp thêm màu xanh của cây cảnh, tạo nên những hiệu ứng cảm quan thu hút mạnh mẽ với người nhìn. Bên cạnh đó, việc kiến trúc sư sử dụng những gam màu trung tính khi kết hợp với màu đen xám của hệ thông cửa kính khung nhôm xingfa cùng thiết kế hệ thống đèn âm tường tạo sức hút khó cưỡng.

Với phối cảnh kiến trúc đơn giản nhưng đầy tinh tế và hiện đại, chủ đầu tư đã chốt ngay phương án đầu tiên, đánh giá cao ý tưởng thiết kế cũng như việc sử dụng vật liệu, tạo điểm nhấn cho công trình.

Kiến trúc sư đã dựa trên những yêu cầu trong quá trình trao đổi với gia đình chủ đầu tư, từ việc lên ý tưởng cho đến sắp xếp cũng như bố trí mặt bằng công năng cho mẫu nhà phố 3 tầng. Công năng tầng trệt thiết kế đơn giản nhưng vô cùng hợp lý đem đến một cảm giác tiên nghi khi sử dụng.

Tầng trệt bố trí khu vực bán hàng phía trước, tiếp đến là phòng khách, không gian phòng bếp + ăn, thiết kế hướng ra sân sau nhà, vừa đảm bảo cho việc lưu thông khí, tránh đọng mùi thức ăn, vừa giúp lấy sáng và thông thoáng cho khu vực chức năng này. Sân sau bố trí 1 nhà vệ sinh chung và sàn rửa. Mặt bằng tầng lửng thiết kế phòng ngủ Master 1, bố trí nhà vệ sinh khép kín cùng 1 phòng thay đồ riêng. Phòng sinh hoạt chung là nơi có thể nhìn xuống khu vực bán hàng.

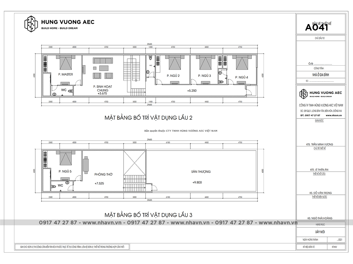
Lầu 2 công năng bao gồm phòng 3 ngủ, bố trí 1 phòng vệ sinh chung. Phía trước là phòng ngủ cho con, có diện tích nhỏ hơn, bao gồm nhà vệ sinh riêng, bàn học tập và hướng nhìn ra ban công. Lầu 3 bố trí 1 phòng ngủ, 1 phòng thờ, phía trước là sân thượng.
Nếu như bạn cũng yêu thích mẫu thiết kế nhà phố 3 tầng đẹp của chúng tôi, hãy liên hệ ngay để nhận được những hỗ trợ và tư vấn tốt nhất cũng như khoa học nhất từ kiến trúc sư tài năng và giàu kinh nghiệm của Nhavn.vn cho công trình của gia đình bạn trong tương lai.