Lượt xem: 4080
Trong nhiều năm trở lại đây, xu hướng thiết kế nhà phố đẹp với những cách tân hiện đại đang trở thành trào lưu được các cư dân từ thành thị đến nông thôn ưa chuộng và lựa chọn. Đây cũng là lí do vì sao ngôi nhà phố 3 tầng mái thái với phong cách mang hơi thở tân cổ điển trong lòng không gian xanh đang thu hút được sự chú ý của người dân hàng xóm cũng như người qua lại tại khu phố này.

STT Hạng mục chi tiết
1 Công năng sử dụng 1 phòng khách, 1 phòng ăn, 1 phòng bếp, 1 phòng sinh hoạt chung, 3 phòng ngủ, 4 WC, phòng thờ
2 Diện tích đất xây dựng 6x18m
3 Diện tích sử dụng 324m2
4 Chi phí thiết kế kiến trúc 120.000 đ/m2
5 Chi phí thiết kế nội thất 100.000 đ/m2
6 Chi phí thi công xây dựng Liên hệ
Khởi nguồn từ những năm 1800 với những thiết kế của các kiến trúc sư người Scotland, phong cách kiến trúc Pháp cổ điển kết hợp cách tân đã lên ngôi và tiếp tục trở thành những phong cách kiến trúc thịnh hành nhất trong kiến trúc tại các quốc gia châu Âu.

Kế thừa và phát huy những nét tinh tế và cao sang từ nguyên gốc kiến trúc cổ điển, vẫn trên nền tảng của những yếu tố truyền thống, mẫu nhà phố 3 tầng diện tích 6x18m vẫn không quên tính ứng dụng hiện đại, làm mới mẻ và mang đến một trào lưu thiết kế mới. Và phong cách thiết kế này đã thống trị tại hầu hết các công trình cao cấp, hạng sang cho đến tận ngày nay.

Thiết kế kiến trúc nhà phố mái thái 3 tầng rất độc đáo và ấn tượng qua cách vận dụng những tinh tế của phong cách tân cổ điển vào trong thiết kế. Phong cách thiết kế nhà ở phong cách cổ điển Pháp rất ưa chuộng sử dụng những hình khối dạng vòm tròn, hình trụ tròn và uốn cong mềm mại với những quy luật chặt chẽ. Hình vòm được tái hiện lặp đi lặp lại ở các vòm cửa của các tầng nhằm tạo ra sự điệu đà, cũng như lôi cuốn người xem càng thêm cuốn hút.

Thật vậy, nếu như phong cách kiến trúc hiện đại nổi bật với các khối tường vuông vức, khô cứng thì các khối tường của ngôi mẫu nhà phố mái thái 3 tầng mang trong mình cái hồn của kiến trúc sang trọng. Hệ thống các khối trụ mái trước nhà được thiết kế theo dạng bo tròn, tại vị trí các đầu cột, kiến trúc sư không tô vẽ hoa văn nhiều, tuy nhiên vẫn làm rõ nét sự tinh tế trong những đường phào chỉ bo cột.

Cách xử lý của các kiến trúc sư Nhavn.vn từ không gian sinh hoạt riêng trong căn nhà với những cửa vòm rộng, ban công được xây dựng hướng sáng để ánh sáng len lỏi khắp ngôi nhà hay những mảng sân vườn được bày trí tiểu cảnh trang nhã phong cách cổ điển châu Âu, đến không gian cảnh quan tổng thể của cả góp phần làm công trình nhà 3 tầng mái thái thêm hoàn hảo. Sự hoàn hảo của không gian quá sức tưởng tượng của gia chủ, bởi mặt tiền là cái để khoe ra bên ngoài xem quy trình thiết kế nhà.

Đáng kể, chi tiết kiến trúc thể hiện rõ tinh thần của mẫu thiết kế nhà đẹp này chính là hệ thống lan can các tầng. Các chất liệu mạnh mẽ từ các cột trụ bê tông kết hợp với vật liệu của phần lan can, mang đến hiệu ứng thị giác ấn tượng và phong cách công nghiệp tạo nên những hình ảnh rất đặc trưng. Màu sắc trắng vô cùng sạch sẽ và nổi bật như một công cụ làm nền cho màu ngói đỏ của phần mái thêm rực rỡ, ấn tượng. Mỗi một nhân tố trong cuộc sống thường nhật, tính cách của một người phản ánh đầy đủ trong mọi mặt của sinh hoạt, giải trí, công việc, giao tiếp,… Không gian sống cũng là yếu tố thể hiện nhiều điều về cá tính của mỗi con người.
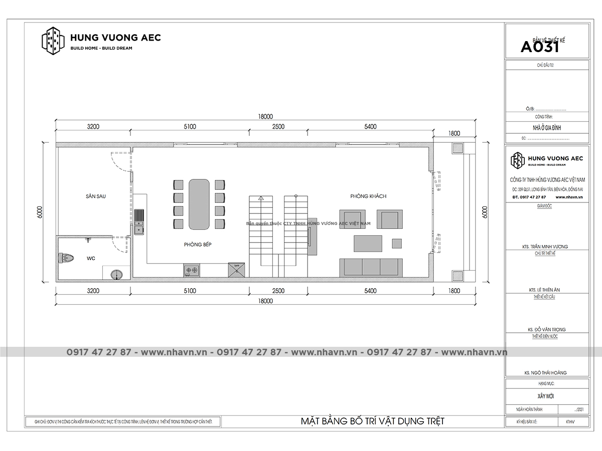
Tầng trệt bố trí phòng khách, phía sau là phòng bếp và nhà vệ sinh chung.

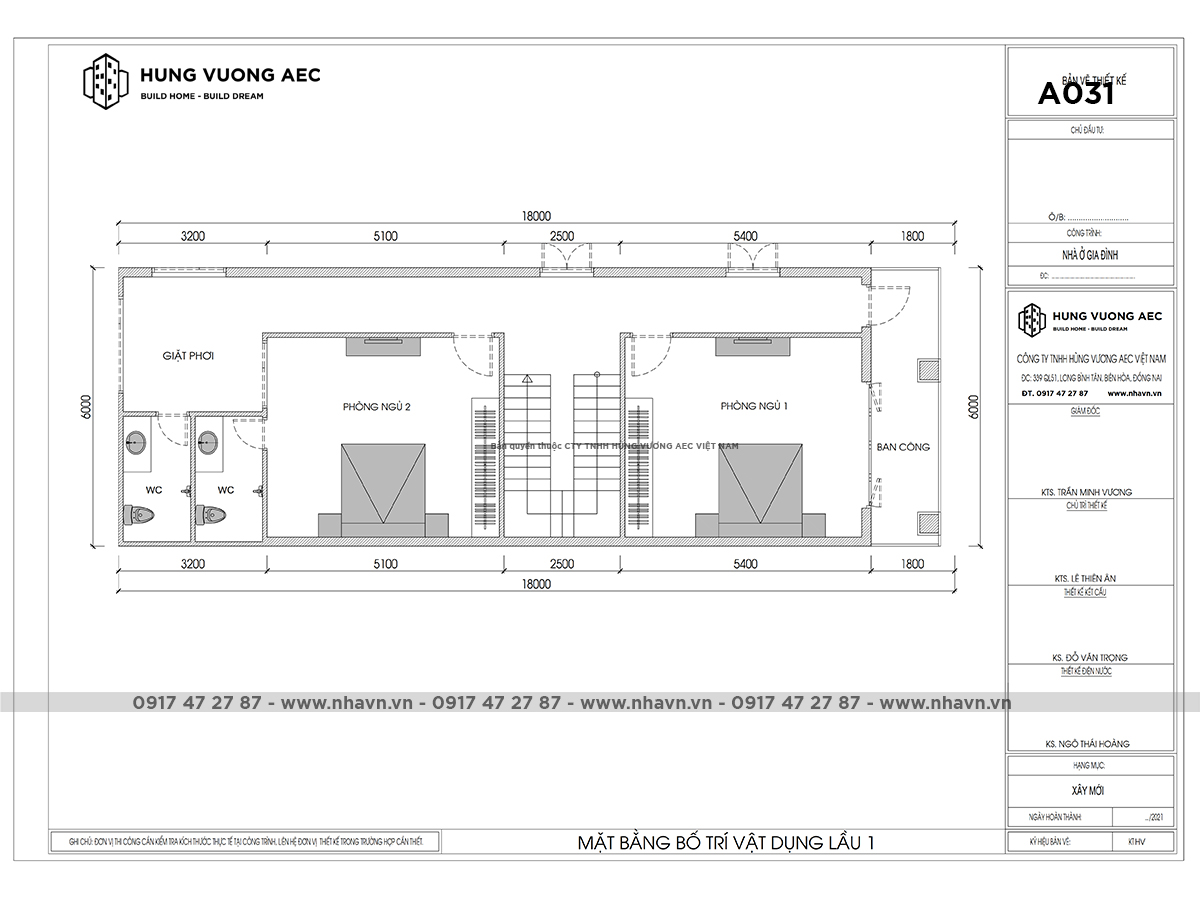
Tầng 2 bố trí hai phòng ngủ rộng rãi, một phòn ngủ có nhà vệ sinh riêng, phía sau là nhà vệ sinh chung cho cả tầng.

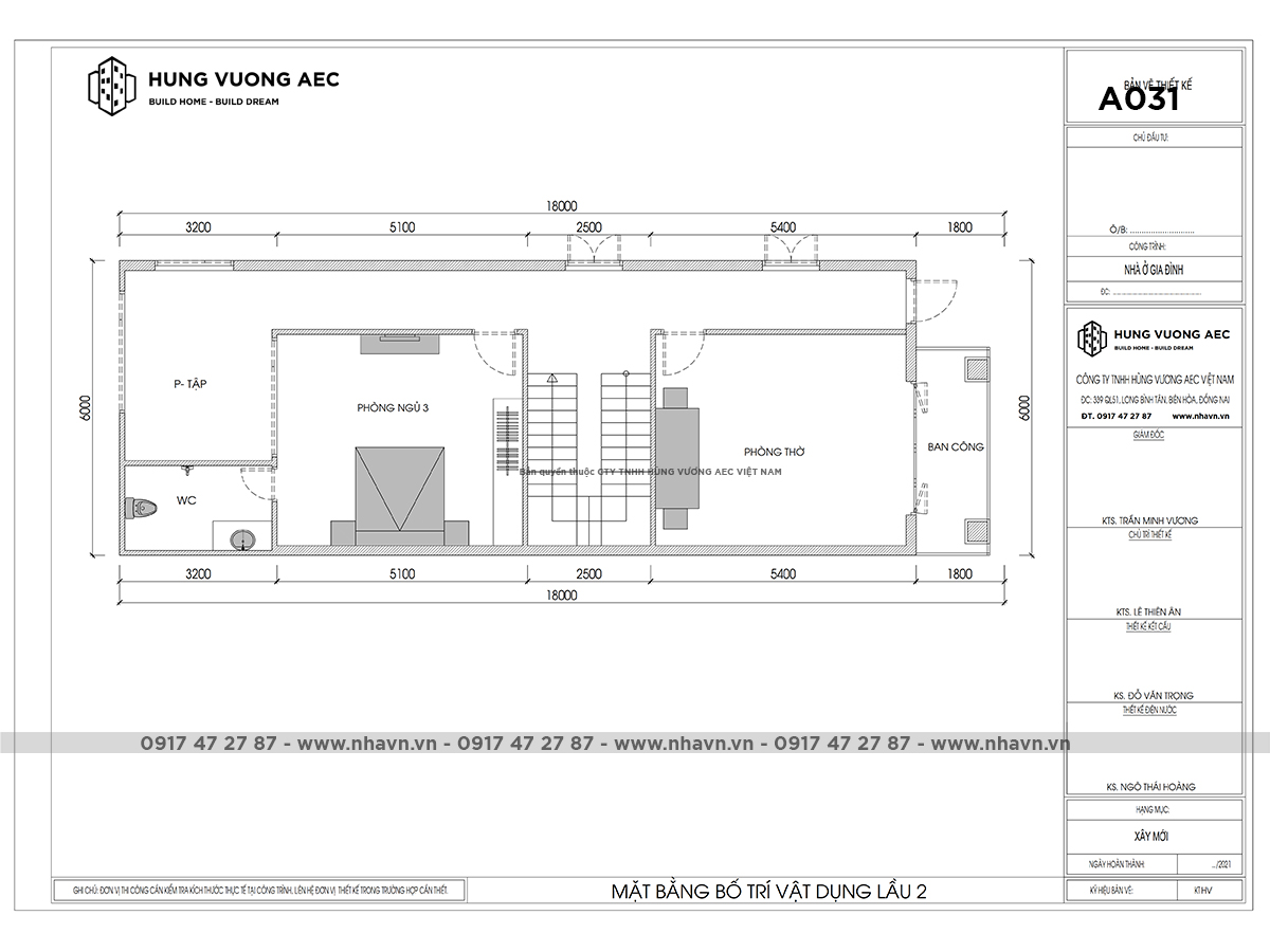
Tầng 3 bố trí phòng thờ phía trước có ban công, phía sau là phòng ngủ, có khu vực tập gym.

Thiết kế của ngôi nhà phố mái thái 3 tầng cho ta thấy sự tâm huyết cũng như chỉnh chu, toàn diện của ngôi nhà từ tổng thể bên ngoài lẫn nội thất bên trong như một cầu nối nhịp nhàng, liên tiếp không bị ngắt quảng. Để tìm hiểu thêm về điều chúng tôi vừa chia sẻ, mời bạn xem thêm bản vẽ bố trí công năng nhà phố 3 tầng mái thái – nơi thể hiện toàn bộ cách sắp xếp không gian của công trình. Cùng với hồ sơ thiết kế, trong các bài viết sau chúng tôi sẽ tiếp tục cập nhật các thông tin thiết kế nhà đẹp, thiết kế nội thất nhà đẹp,… mới nhất. Cảm ơn quý vị đã theo dõi bài viết.