Lượt xem: 2572
Về cơ bản, kiến trúc của những ngôi nhà phố cổ điển nổi bật ấn tượng với việc sử dụng nét đặc trưng của kiến trúc cổ điển với phào chỉ, hoa văn tinh tế ở mặt tiền và cột trụ. Với đặc thù ngôi nhà có chiều ngang hạn chế, các kiến trúc sư phải tính toán sao cho hài hòa nhất có thể về mọi mặt để tạo sự thuận tiện nhất cho sinh hoạt của gia chủ.

STT Hạng mục chi tiết
1 Công năng sử dụng 1 phòng khách, 1 phòng ăn, 1 phòng bếp, 4 phòng ngủ, 4 WC, phòng sinh hoạt chung, phòng gym
2 Diện tích đất xây dựng 6x21m
3 Diện tích sử dụng 435m2
4 Chi phí thiết kế kiến trúc 120.000 đ/m2
5 Chi phí thiết kế nội thất 100.000 đ/m2
6 Chi phí thi công xây dựng Liên hệ
Tối giản hóa và hướng tới sự sang trọng pha hiện đại là đặc trưng tiêu biểu của kiến trúc nhà phố 3 tầng mã số A065 này. Điều này một lần nữa cho thấy các kiến trúc sư Nhavn.vn đã luôn nhanh nhạy bắt kịp thị hiếu khách hàng để hoàn thiện những bản thiết kế đẹp nhất, chất lượng nhất đáp ứng đúng yêu cầu chủ đầu tư.

Gia chủ dự định xây nhà với khu đất có mặt tiền 6m và yêu thích phong cách cổ điển. Nắm bắt tâm lý của chủ đầu tư, kiến trúc sư đã tư vấn lựa chọn loại hình nhà phố cổ điển thiết kế kiến trúc vừa đẹp, tinh tế vừa nhẹ nhàng thanh thoát. Màu sắc chủ đạo trắng kem mềm mại đầy tinh tế giúp ngôi nhà toát lên vẻ cuốn hút lạ thường, đường nét ở cách thanh trụ giả, góc cạnh nhà đơn giản không quá cầu kỳ nhưng ngôi nhà vẫn nổi bật bởi dáng vẻ cổ kính mà hiện đại. Trên tone trắng kem bao phủ gần hết ngoại thất công trình, các kiến trúc sư có kết hợp cửa kính lớn tone đen và ghi vừa phần nào giảm bớt đi sự eo hẹp nơi mặt tiền cũng như gợi mở không gian thoáng đãng.

Phương án thiết kế của ngôi nhà phố 3 tầng phong cách cổ điển của gia đình có cửa sổ, ban công kết hợp cây xanh vừa bắt mắt vừa thông thoáng. Gam màu đặc trưng của loại hình nhà ống cổ điển cũng được yêu thích lựa chọn trong thiết kế mặt tiền ngôi nhà. Quả thực ngắm những phối cảnh mẫu nhà này bất kỳ ai cũng dễ dàng cảm nhận được chân thực nhất những nét đẹp của kiến trúc nhà ở vừa sang trọng của loại hình nhà kiểu Pháp vừa trẻ trung phóng khoáng của nhà phố phong cách hiện đại.

Như phần đầu bài viết chúng tôi đã chia sẻ rằng nhà ống cổ điển hiện đang là loại hình nhà ở khá phổ biến tại Việt Nam. Đây loại hình kiến trúc được lựa chọn dành cho những vị chủ đầu tư có khu đất mặt tiền hẹp, chiều dài khá lớn và yêu thích phong cách kiến trúc cổ điển vừa hoa mỹ vừa mang nét hiện đại phá cách. Những mẫu thiết kế nhà ống cổ điển được Nhavn.vn trình làng trong thời gian qua đã liên tiếp nhận được rất nhiều sự quan tâm và yêu thích từ phía quý khách hàng. Đặc biệt những mẫu thiết kế nhà ống, nhà phố có thiết kế mặt tiền ấn tượng với phong cách thiết kế cổ điển như A065 luôn được quý khách hàng tìm kiếm nhiều nhất.
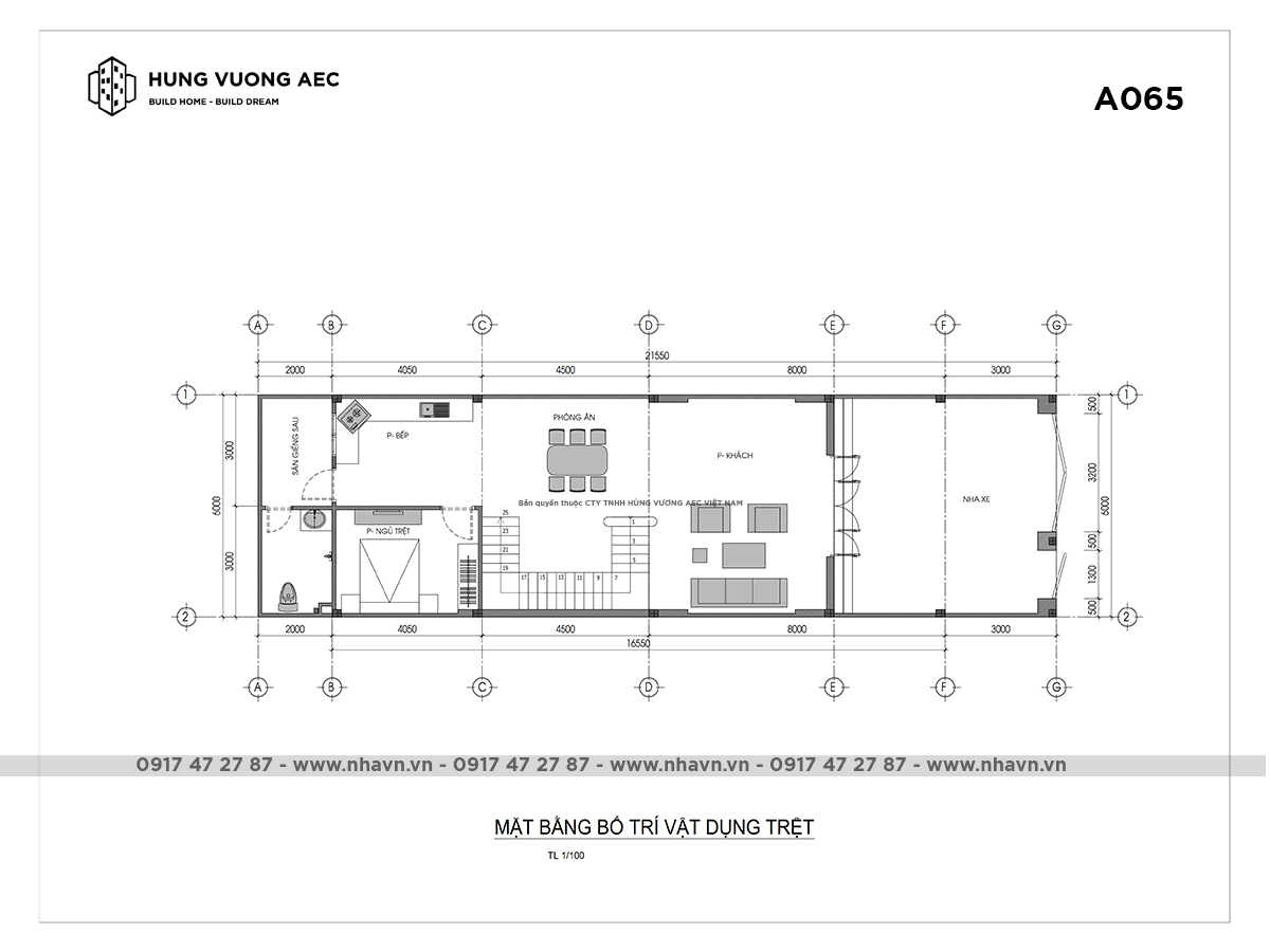
Công năng các tầng của nhà ống 3 tầng phong cách cổ điển được phân chia như sau:

Tầng trệt gồm phòng khách, phòng bếp ăn, phòng ngủ, và phòng vệ sinh chung của cả tầng.

Lầu 1 được bố trí 1 phòng ngủ master có vệ sinh khép kín và 1 phòng ngủ nhỏ.

Lầu 2 gồm phòng gym, 1 phòng ngủ, và vệ sinh chung cho cả tầng.

Lầu 3 gồm phòng thờ, tum, mái, vòm và sân thượng
Cùng với hồ sơ thiết kế nhà phố 3 tầng mặt tiền 6m A065, trong các bài viết tiếp theo chúng tôi sẽ tiếp tục cập nhật các mẫu nhà phố đẹp và được trình làng mới nhất của chúng tôi. Nhavn.vn có đội ngũ kiến trúc sư, kỹ sư dày dạn kinh nghiệm trong thiết kế kiến trúc, thi công xây dựng các hạng mục công trình. Chúng tôi lấy sự hài lòng của khách hàng làm mục tiêu lớn nhất và tự tin mang đến các mẫu thiết kế phong cách cùng dịch vụ chuyên nghiệp. Cảm ơn bạn đã theo dõi bài viết.
-NHÀ PHỐ TÂN CỔ ĐIỂN 4 TẦNG 5X25 – A069