Lượt xem: 2376
Hôm nay trong chuyên mục thiết kế nhà 3 tầng mái thái trên hệ thống website của Nhavn.vn, chúng tôi xin giới thiệu đến quý độc giả mẫu thiết kế nhà ống 3 tầng mái thái 4x20m nhằm cung cấp đến quý vị một biện pháp toàn diện về thiết kế và thi công loại hình công trình nhà phố này.

| STT | Hạng mục | chi tiết |
|---|---|---|
| 1 | Công năng sử dụng | 1 phòng khách, 1 phòng ăn, 1 phòng bếp, 4 phòng ngủ, 4 WC, phòng thờ |
| 2 | Diện tích đất xây dựng | 4x20m |
| 3 | Diện tích sử dụng | 229m2 |
| 4 | Chi phí thiết kế kiến trúc | 120.000 đ/m2 |
| 5 | Chi phí thiết kế nội thất | 100.000 đ/m2 |
| 6 | Chi phí thi công xây dựng | Liên hệ |
Mẫu thiết kế nhà 3 tầng mái thái đẹp sang trọng với mặt tiền 4m, sử dụng vật liệu cao cấp được thiết kế theo lối hiện đại, phù hợp với nhu cầu sử dụng của giới trẻ yêu sự đơn giản và hữu dụng. Kiến trúc sư đã sử dụng gam màu trắng để trang trí nên một mặt tiền nổi bật trên nền màu trắng chủ đạo. Mặt tiền sử dụng kính, cổng thiết kế hình khối đơn giản sử dụng cửa sắt hộp khiến công trình phía sau không bị che lấp, nhằm tôn lên vẻ đẹp hiện đại của căn nhà.

Vẫn là thiết kế nhà 3 tầng đẹp với gam màu tinh tế. Hình khối căn nhà trong mẫu thiết kế này được tính toán cẩn thận. Lồng ghép các khối nhà lại với nhau để tạo nên một tổng thể hài hòa, đẹp mắt. Thiết kế nhà phố 3 tầng mái thái đẹp, hiện đại với không gian xanh mát, hình khối hiện đại. Và hệ thống cửa nhôm Xingfa màu xám đã tạo nên một phối cảnh hoàn hảo. Dường như mẫu thiết kế nhà phố đã quá quen thuộc với phong cách hiện đại, thiết kế mái bằng. Tuy nhiên với phối cảnh thiết kế mái thái hiện đại này, Nhavn.vn đã chinh phục khách hàng với ý tưởng thiết kế sáng tạo mới lạ, độc đáo.

Hình khối mẫu nhà đẹp 3 tầng đơn giản, với màu sắc tinh tế và sang trọng, tạo nên không gian sống cuốn hút và nhã nhặn. Kiến trúc sư phô diễn sự sáng tạo thông qua những mảng khối bố cục nhỏ, thiết kế mặt tiền với điểm nhấn độc đáo và mạnh mẽ. Hệ thống cửa kính lớn cùng với thiết kế khối lam sắt, giúp cho công trình trở nên thanh lịch, nhẹ nhàng và đón nhận được nhiều ánh sáng tự nhiên hơn. Với mặt tiền 4m, mẫu thiết kế nhà 3 tầng với không gian xanh mát này chính là mẫu thiết kế nhà được nhiều chủ đầu tư săn lùng ở phố. Không quá cầu kỳ về kỹ thuật thi công, tuy nhiên sự phối hợp của những chi tiết nhỏ về ban công, cửa cổng. Cùng hệ thống cửa nhôm kính cùng với khối tường ốp gạch hoa gió, mang đến bức tranh thẩm mĩ cuốn hút và độc đáo.

Với những gia đình ở phố, thiết kế nhà có gara theo phong cách hiện đại, đón nhận được nhiều ánh sáng tự nhiên chính là giải pháp kiến trúc hoá giải không gian quan trọng được yêu thích. Xử lý khối tinh tế, thiết kế có tầng thượng ngay tại tầng 2, cùng với hệ thống cửa kính tạo nên một phối cảnh có tính mĩ quan cao cấp.
Mẫu thiết kế nhà ống, nhà phố này được thiết kế hiện đại với ý tưởng độc đáo. Mẫu thiết kế nhà phố 3 tầng mái thái với màu sắc tươi mới giúp làm nổi trội vẻ đẹp sang trọng cá tính cho căn nhà. Thiết kế nhà phố đương đại có kiến trúc mạnh mẽ, dứt khoát, hình khối bố cục hài hoà. Tạo nên một căn nhà ống đẹp hoàn hảo nổi trội với môi trường xung quanh. Hệ thống lan can lại được xử lý một cách mềm mại, uyển chuyển và nhẹ nhàng như trong mẫu nhà này.

Thiết kế nhà 3 tầng mái thái với khối kiến trúc độc đáo, chinh phục mọi giác quan và khẳng định dấu ấn đạm nét của chủ đầu tư. Hình khối sử dụng những khối thức hình học như khối vuông, khối hộp, khối hình chữ nhật và khối vòm hình bán nguyệt. Sử dụng cùng với gam màu trung tính nhã nhặn, hệ thống ban công và tầng thượng. Tạo nên những điểm nhấn khác biệt có tầm đẳng cấp của công trình.
Trong thiết kế nhà phố mái thái của danh mục mẫu nhà phố hiện đại được các kiến trúc sư Nhavn.vn thiết kế khá kĩ càng và kỳ công. Đây là một công trình dân dụng nhà ở với không gian nhỏ hẹp dạng ống. Nhưng thiết kế vẫn phải đáp ứng đầy đủ chức năng sinh hoạt đầy đủ luôn tiện nghi cho gia chủ. Khi thiết kế nhà phố 3 tầng mái thái như sau thì vấn đề công năng rất quan trọng. Đòi hỏi thiết kế sao cho phù hợp tạo ra một không gian sống mở thoáng mát mà vẫn đẹp mắt xen lẫn với phong thủy ngũ hành.

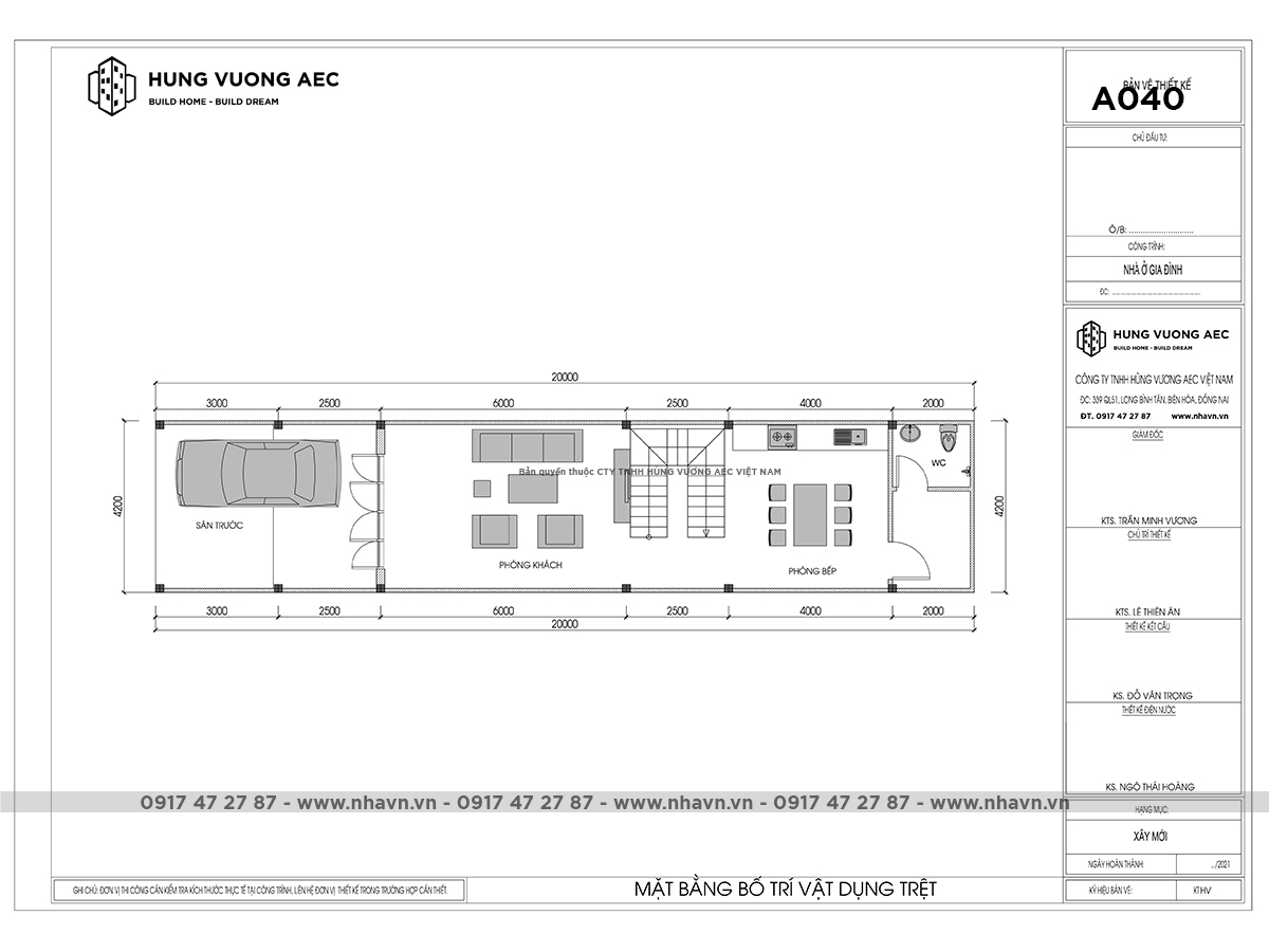
Tầng trệt được bố trí nhà xe ở phía trước, tiếp đến là phòng khách, nhà bếp, sau cùng là nhà vệ sinh chung.

Tầng 2 được bố trí 3 phòng ngủ, cả 2 phòng vệ sinh đều có thể sử dụng chung.

Tầng 3 được bố trí sân thượng, phòng thờ, 1 phòng ngủ, phía sau là khu vực vệ sinh và giặt phơi.
Nếu như bạn cũng yêu thích mẫu thiết kế nhà 3 tầng mái thái này, hãy liên hệ ngay với Nhavn.vn để gặp các kiến trúc sư nhiều năm kinh nghiệm trong lĩnh vực thiết kế thi công để được tư vấn cho mình sự lựa chọn hoàn hảo.