Lượt xem: 3025
Biệt thự 3 tầng cũng có rất nhiều loại từ hiện đại tới tân cổ điển và cổ điển. Mẫu nhà 3 tầng mái lệch 8x12m này thuộc một trong các mẫu thiết kế nhà 3 tầng hiện đại với các chi tiết đơn giản không hoa văn và phào chỉ cầu kì, và đó cũng chính là phong cách thiết kế của mẫu biệt thự 3 tầng hiện đại mà chúng tôi muốn giới thiệu tới các bạn.

STT Hạng mục chi tiết
1 Công năng sử dụng 1 phòng khách, 1 phòng ăn, 1 phòng bếp, 5 phòng ngủ, 5 WC, phòng thờ, phòng học, phòng gym
2 Diện tích đất xây dựng 10x12m
3 Diện tích sử dụng 297m2
4 Chi phí thiết kế kiến trúc 120.000 đ/m2
5 Chi phí thiết kế nội thất 100.000 đ/m2
6 Chi phí thi công xây dựng Liên hệ
Không giống với các mẫu thiết kế khác, mẫu nhà 3 tầng mái lệch 8x12m này có phần mái lệch được phân làm mái trước và mái sau, thường thì chúng ta sẽ thấy được phân làm mái hai bên. Các bạn có thể nhìn phối cảnh của công trình để cùng nhìn thấy được nếu chúng ta sử dụng mặt tiền và một mặt bên thì đều có được 1 góc view đẹp nhất.

Tông màu chủ đạo trong mẫu thiết kế biệt thự 3 tầng này là tông màu trắng kết hợp cùng với màu gạch inax của Nhật Bản, đây là một trong các loại mã gạch khá cao cấp trên thị trường hiện nay. Bạn cũng có thể thay thế loại gạch này bằng loại gạch tăm của Việt nam.

Mẫu nhà 3 tầng mái lệch 8x12m này được thiết kế theo phong cách hiện đại nên toàn bộ cửa đi, cửa nhôm kính trong mẫu thiết kế đều sử dụng cửa nhôm kính xingfa màu nâu đen, kính dán hoặc kính cường lực.

Mẫu nhà 3 tầng mái lệch này được chúng tôi thiết kế làm phương án và không có hồ sơ thi công, chỉ có phương án mặt bằng để các bạn cùng tham khảo mà thôi. Nếu bạn thích phong cách thiết kế của mẫu biệt thự 3 tầng mái lệch này thì có thể liên hệ chúng tôi nhé.

Góc view mẫu nhà 3 tầng mái lệch 8x12m này chính là mặt tiền chính của mẫu thiết kế mẫu nhà mái lệch đẹp này. Nhavn.vn xin gửi tới các bạn thêm một chút hình ảnh về mẫu thiết kế nhà 3 tầng này để các bạn cùng tham khảo trước nhé. Nếu các bạn có thắc mắc thêm gì về mẫu thiết kế có thể liên hệ chúng tôi để được tư vấn cụ thể hơn nhé.
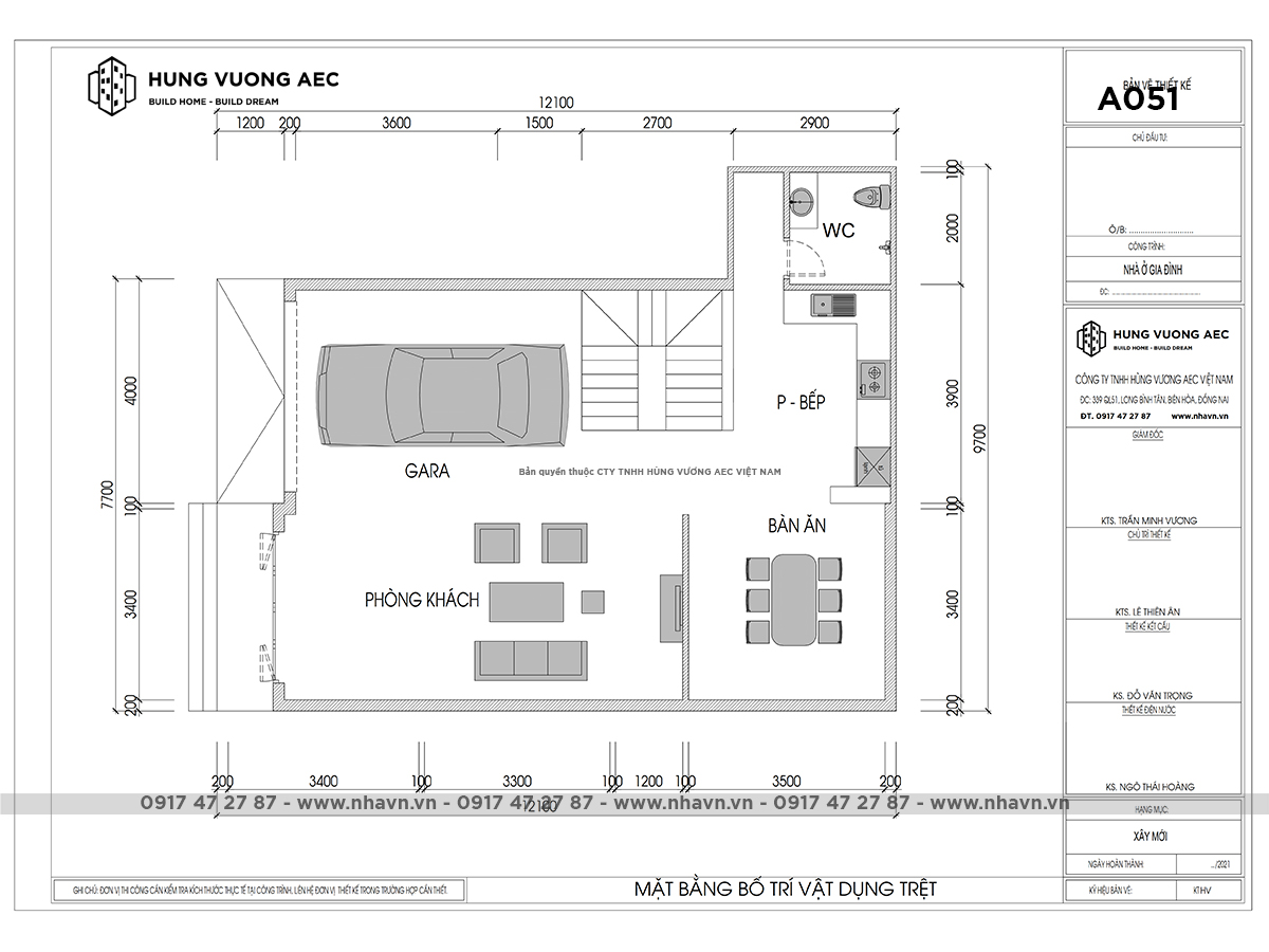
Tầng 1 được bố trí với 1 ga ra xe, 1 phòng khách khá rộng và khu bếp ở phía cuối nhà tách biệt hoàn toàn với phòng khách. Một đoạn phòng bếp được làm vách kính chắn với khu phòng khách vừa có thể ngăn mùi nhưng lại không sợ bị quá bí.

Tầng 2 được bố trí với 3 phòng ngủ, 1 phòng sinh hoạt chung và 1 nhà vệ sinh. Trong đó có 1 phòng ngủ Master có khu thay đồ và vệ sinh riêng.

Tầng 3 được bố trí với 1 phòng thờ, 1 phòng sinh hoạt chung và 2 phòng ngủ, 1 nhà vệ sinh chung và sân phơi.
Trên đây là những giới thiệu của chúng tôi về mẫu nhà 3 tầng mái lệch 8x12m mời các bạn cùng tham khảo nhé. Nếu các bạn có nhu cầu cần tư vấn thiết kế hay cần hỗ trợ gì thêm hãy liên hệ với các kiến trúc sư của chúng tôi để được tư vấn thêm. Chúc các bạn có những ngày nghỉ vui vẻ và hạnh phúc bên gia đình.
-NHÀ MÁI LỆCH 2 TẦNG HIỆN ĐẠI 5×20 – B131