Lượt xem: 5031
Nằm trong xu hướng thiết kế kiến trúc hiện đại ngày nay, các mẫu nhà phố 3 tầng hiện được xem là lựa chọn tối ưu hoàn hảo nhất. Mẫu nhà phố 3 tầng yêu cầu về kỹ thuật thi công không cao nhưng vẫn đảm bảo được kết cấu vững chắc cho tổng thể kiến trúc, đồng thời vẫn phô trường được những nét đẹp uyển chuyển, độc đáo. Mẫu nhà phố 3 tầng 6x19m với phối cảnh mặt tiền đơn giản nhưng lại có được sự ấn tượng và cuốn hút dưới đây mà Nhavn.vn muốn giới thiệu đến các bạn, hy vọng sẽ giúp bạn có thêm nhiều ý thiết kế ngôi nhà phố của mình nhé.

| STT | Hạng mục | chi tiết |
|---|---|---|
| 1 | Công năng sử dụng | 1 phòng khách, 1 phòng ăn, 1 phòng bếp, 4 phòng ngủ, 4 WC, sân thượng |
| 2 | Diện tích đất xây dựng | 6x19m |
| 3 | Diện tích sử dụng | 351m2 |
| 4 | Chi phí thiết kế kiến trúc | 120.000 đ/m2 |
| 5 | Chi phí thiết kế nội thất | 100.000 đ/m2 |
| 6 | Chi phí thi công xây dựng | Liên hệ |
Gia đình của gia chủ có 6 thành viên, hiện gia đình sở hữu mảnh đất với mặt tiền rộng 6m và chiều sâu dài 19m. Dự định của gia đình là sẽ thi công mẫu nhà phố 3 tầng 6x19m phong cách hiện đại, thiết kế với công năng có 4 phòng ngủ, 1 phòng khách, 1 phòng bếp ăn.
Dẫn đầu xu thế thiết kế nhà phố vận dụng các nguyên lý lấy sáng, thông gió một cách khoa học để bộ trợ việc điều hòa không gian nội thất tạo môi trường sống tốt nhất, đem lại cảm giác thoải mái, tự do. Phối cảnh kiến trúc hiện đại, thiết kế với hình khối đơn giản, ngoại thất mặt tiền ấn tượng và chi phí đầu tư hợp lý. Gia chủ là người chú trọng đến yếu tố về phong thủy do đó gia chủ mong muốn mẫu thiết kế của mình phải được thiết kế theo mệnh, thiết kế đùng hướng và chuẩn về mặt quan niệm phong thủy. Kiến trúc sư của Nhavn.vn sau khi tiếp nhận yêu cầu thiết kế của gia đình, đã có những cân nhắc và tiến hành khảo sát hiện trạng trước khi lên ý tưởng thiết kế cho gia chủ.

Sau khi tiếp nhận yêu cầu của chủ đầu tư, cùng với khảo sát thực tế thì kiến trúc sư của chúng tôi đã lên phương án thiết kế cho mẫu nhà phố 3 tầng đẹp. Ngay trong buổi làm việc đầu tiên với chủ đầu tư thì chúng tôi đã đều trình bày phương án thiết kế để gia chủ quyết định. Và sau nhiều tiếng làm việc, thì chủ đầu tư đã quyết định thiết kế mặt tiền của ngôi nhà đơn giản và hiện đại.
Hình khối của ngôi nhà được thiết kế với bề ngoài khá đơn giản, lấy phong cách kiến trúc hiện đại làm chủ đạo do đó mà các đường phào chỉ, hoa văn trang trí đã được lược bỏ. Thay vào đó các khối vuông và chữ nhật lại được đổ bê tông cách điệu, ốp gạch trang trí để tạo điểm nhấn ấn tượng cho mặt tiền.

Thiết kế nhà phố hiện đại cho phép sáng tạo khi sử dụng hình khối kết hợp các kỹ thuật mới để ngôi nhà vận hành được tối ưu nhất. Việc phối màu cũng hết sức sáng tạo mang đến sự trẻ trung, năng động và tiện ích. Mẫu nhà phố 3 tầng 6x19m sử dụng 2 gam màu chính đó là màu trắng và màu nâu gỗ giúp cho ngôi nhà vừa có sự trẻ trung vừa sang trọng cũng như tạo cảm giác rộng rãi hơn.
Thiết kế phần mái nhà chéo lệch một phía đã phá vỡ đi nguyên tắc cơ bản, đem đến sự khách lạ và đặc biệt với độ dốc đúng chuẩn nên khi trời mưa nước cũng không đọng lại. Hệ thống ban công sắt và hệ thống cửa nhôm xingfa được lắp đặt giữa mặt tiền của các tầng tạo nên sự đồng bộ hiện đại và có chút phá cách. Hệ thống tiểu cảnh ở tầng 3 được đặt đan xen kẽ giữa những vách khối lệch chính là điểm nhấn thu hút của mẫu thiết kế này.

Mặt bằng công năng của mẫu nhà phố 3 tầng 6x19m được thiết kế tối ưu theo nhu cầu sử dụng, kinh phí đầu tư của chủ đầu tư. Mặt bằng công năng tầng 1 được thiết kế đơn giản với những công năng sinh hoạt chung như sân trước, thiết kế phòng khách gần với cửa chính tiếp giáp với cầu thang thông tầng. Tiếp đến phòng bếp ăn được thiết kế liên thông với phòng khách và cuối cùng là phòng vệ sinh chung.
Diện tích sàn sàn chỉ là 6×19 nhưng 4 phòng ngủ bố trí đều rộng và thoáng, trong đó 1 phòng ngủ master.

Tầng 1 thiết kế phòng khách, phòng bếp, 1 phòng ngủ, vệ sinh chung.

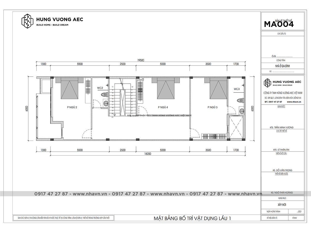
Tầng 2 được thiết kế với 3 phòng ngủ trong đó phòng ngủ master có nhà vệ sinh khép kín và 2 phòng ngủ còn lại sử dụng chung 1 phòng vệ sinh.

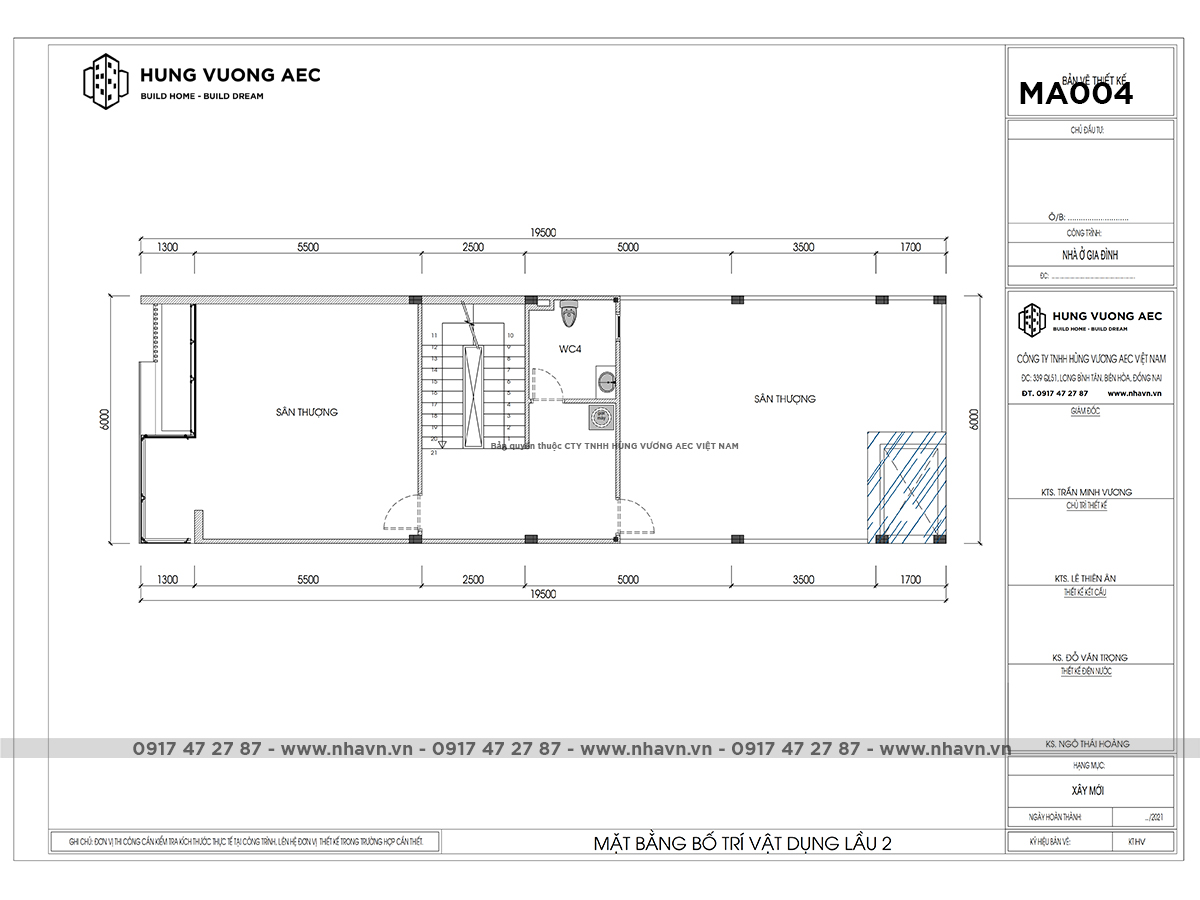
Tầng 3 được chia làm 3 không gian ban công phía trước để trồng cây cảnh và đặt bàn trà, sân sau để làm nơi phơi quần áo vừa kín đáo lại vô cùng tiện lợi. Sân thượng ở phía trước được thiết kế khá thông thoáng, rộng rãi và mát mẻ từ đó có thể đón nhận được nhiều ánh sáng và gió mát. Phần sân thượng có diện tích rộng được trồng nhiều cây xanh và bố trí bộ bàn ghế để ngồi ngắm cảnh, uống trà.
Mẫu thiết kế nhà phố 3 tầng 6x19m hiện đại, thiết kế với phối cảnh đơn giản nhưng cũng đã đủ gây được ấn tượng mạnh mẽ và thu hút được sự chú ý. Nếu như các bạn yêu thích mẫu thiết kế nhà phố 3 tầng này, hãy liên hệ với chúng tôi để được tư vấn chi tiết hơn nhé.