Lượt xem: 4495
Mẫu nhà 2 tầng mái lệch hiện đại đang ngày càng phổ biến ở Việt Nam và luôn được các gia đình trẻ yêu thích bời thiết kế thể hiện được nét trẻ trung, dẫn đầu xu hướng của gia chủ. Mẫu nhà 2 tầng mang hơi hướng hiện đại đơn giản với thiết kế nóc biến tấu về hình dáng.

STT Hạng mục chi tiết
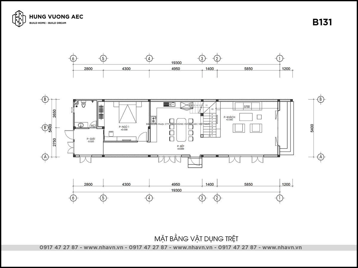
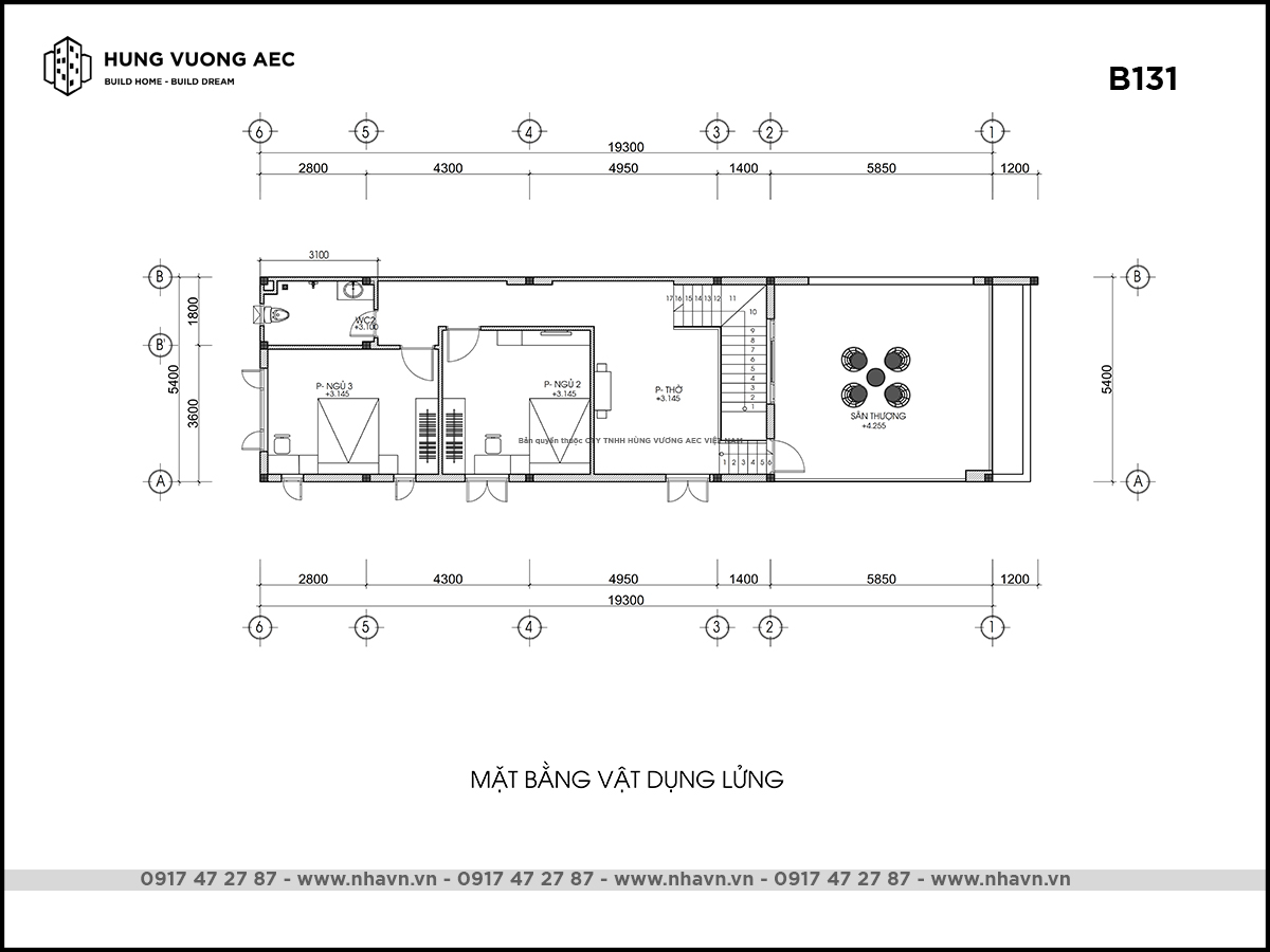
1 Công năng sử dụng 1 phòng khách, 1 phòng ăn, 1 phòng bếp, 3 phòng ngủ, 2 WC, phòng thờ.
2 Diện tích đất xây dựng 5x20m
3 Diện tích sử dụng 210m2
4 Chi phí thiết kế kiến trúc 120.000 đ/m2
5 Chi phí thiết kế nội thất 100.000 đ/m2
6 Chi phí thi công xây dựng Liên hệ
Căn nhà này tạo được không gian độc đáo nhờ sự kết hợp nhiều yếu tố về tự nhiên và kỹ thuật hiện đại. Phần mái được thiết kế độc đáo với 2 mảng mái lệch đỉnh. Mái dốc về 2 phía dọc theo chiều dài nhà khiến mảng mái trông như 1 tấm thảm bay nhẹ nhàng, bay bổng nhưng vẫn thoát nước mưa và cách nhiệt tốt.

Với nhà mái lệch, độ dốc, độ dài hai bên mảng mái khác nhau. Các mẫu nhà mái lệch đã mang đến hiệu ứng lạ mắt, dễ dàng tạo ấn tượng ngay từ cái nhìn đầu tiên. Chính sự khác lạ đã tạo ra nét độc đáo và chất hiện đại cho ngôi nhà.

Kiến trúc mặt tiền ngôi nhà này được thiết kế với tông màu trắng xám sang trọng trẻ trung. Nhấn nhá vài mảng tường màu nâu của gạch vân gỗ 150×800 ốp tường. Hàng lan can ban công kính 12 ly cường lực âm sàn chạy suốt chiều dài hai ban công trước và sau gần 20m tôn thêm nét đẳng cấp và sang trọng cho mẫu nhà này.
Không gian phòng khách bao gồm cầu thang khoảng 45m2 đủ để bố trí bộ salon cỡ đại. Diện tích 55m2 còn lại chia cho phòng bếp, phòng ngủ khách và 1 nhà vệ sinh chung.

Một phòng khách đẹp mơ ước

Phòng bếp với mảng kính thủy ốp vách trang trí bàn ăn tạo sự sung túc.

Phòng bếp với mảng kính thủy ốp vách trang trí bàn ăn tạo sự sung túc.

Thiết kế nội thất phòng bếp với thiết kế bàn ăn gỗ sọc

Phòng thờ kiểu hiện đại.

Nội thất phòng thờ đơn giản nhưng tinh tế
Cặp lục bình gốm sứ bát tràng hút tài lộc 2 bên bàn thờ rất tốt cho phong thủy.

Phòng ngủ dưới tầng trệt sang trọng.

Phòng ngủ dưới tầng trệt sang trọng không thua gì các phòng trên lầu.

Nội thất phòng ngủ với vách đầu giường ốp giấy dán tường.

Dưới đây một số yêu cầu công năng của ngôi nhà này:
Tầng 1 gồm 1 phòng khách, phòng bếp, phòng ngủ cho ông bà, và nhà vệ sinh chung.

Tầng 2 được thiết kế với 2 phòng ngủ, 1 phòng thờ, và nhà vệ sinh dùng chung cho cả tầng.

Hy vọng với bài viết này, bạn đã có thêm những lựa chọn cho thiết kế nhà của mình. Nhavn luôn đồng hành để bạn có được những không gian sống tuyệt vời nhất.