Lượt xem: 2830
Không quá đồ sộ, nguy nga những căn biệt thự 3 tầng, 4 tầng phong cách cổ điển được nhiều người lựa chọn, vẻ đẹp của căn biệt thự 2 tầng tân cổ điển xuất hiện tinh tế với những đường nét, chi tiết hoa văn của kiến trúc hiện đại kết hợp cổ điển, cộng hưởng thiên nhiên bao bọc xung quanh tạo nên một không gian sống lý tưởng mà rất nhiều người mơ ước.
STT Hạng mục chi tiết
1 Công năng sử dụng 1 phòng khách, 1 phòng ăn, 1 phòng bếp, 3 phòng ngủ, 2 WC, phòng thờ, phòng sinh hoạt chung
2 Diện tích đất xây dựng 7x17m
3 Diện tích sử dụng 235m2
4 Chi phí thiết kế kiến trúc 120.000 đ/m2
5 Chi phí thiết kế nội thất 100.000 đ/m2
6 Chi phí thi công xây dựng Liên hệ
Biệt thự 2 tầng đẹp phong cách cổ điển ghi đậm dấu ấn cho người nhìn nhờ thiết kế các chi tiết phào chỉ, đường gờ ,hay họa tiết nhẹ nhàng. Tất cả được pha trộn ăn nhập với nhau làm nên một công trình biệt thự đẹp mang đậm giá trị thẩm mỹ. Tại công trình này, các kiến trúc sư Nhavn.vn đã sử dụng những họa tiết, hoa văn điểm nhấn một cách khéo léo, lược bỏ đi những chi tiết phù điêu nặng nề, rườm rà để công trình trở nên tinh tế, thanh thoát và gần gũi được với thiên nhiên. Mọi chi tiết thiết kế linh hoạt cộng hưởng với nét đẹp của phong cách tân cổ điển.

Mặt tiền biệt thự 2 tầng đẹp sở hữu hệ cột trụ kép với cấu trúc cột tròn và cột vuông vững chắc, trên mỗi đầu cột được trang trí những họa tiết cùng những đường chỉ đơn giản mang đến sự nhẹ nhàng, mềm mại. Thiết kế cửa chính bằng chất liệu gỗ tự nhiên kết hợp với ô kính hoa đồng là điểm nhấn đặc biệt giúp căn biệt thự trở nên nổi bật hơn trong bố cục tổng thể. Không những thế sự sang trọng và mộc mạc của gỗ còn thể hiện đẳng riêng biệt của chủ nhân.

Căn biệt thự 2 tầng được kiến trúc sư sử dụng tông màu trắng nhẹ nhàng làm chủ đạo. Cùng với đó là hệ cửa sổ kính thiết kế ô vuông khung nhôm trắng cao cấp làm giảm đi sự đơn điệu cho căn nhà, mang lại nguồn sáng tự nhiên lý tưởng hòa quyện không gian biệt thự đẹp với thiên nhiên cảnh quan bên ngoài.
Thiết kế biệt thự tân cổ điển có nhiều những ô cửa sổ xung quanh từ đó tận dụng được tối đa ánh sáng, đón gió mang đến bầu không khí trong lành và thông thoáng. Các cửa sổ bằng kính cũng giúp thành viên trong gia đình có thể ngắm nhìn khuôn viên cảnh quan phía ngoài dễ dàng hơn.

Ngoài ra thiết kế mái là một trong những kiểu mái đặc trưng thường gặp trong các công trình kiến trúc biệt thự Pháp cũng được lựa chọn cho công trình này bởi nó sở hữu nhiều ưu điểm giúp căn nhà trở nên nguy nga hơn với màu xám đậm nổi bật trong gam màu trắng chủ đạo của biệt thự đẹp.
Không phải ngẫu nhiên mà những mẫu thiết kế biệt thự 2 tầng đẹp phong cách cổ điển trở thành xu hướng được nhiều người yêu chuộng hiện nay. Bởi lẽ nó không chỉ sở hữu lối kiến trúc sang trọng mà còn giúp người nhìn cảm nhận được nét tinh tế, vừa vặn của không gian ngoại thất.
Để đảm bảo một không gian sống khoa học và tiết kiệm chi phí đầu tư nội thất cho mẫu biệt thự tân cổ điển 2 tầng, kiến trúc sư đã giúp chủ đầu tư có một không gian sống khoa học bằng cách bố trí mặt bằng công năng theo cách tối ưu hoá.

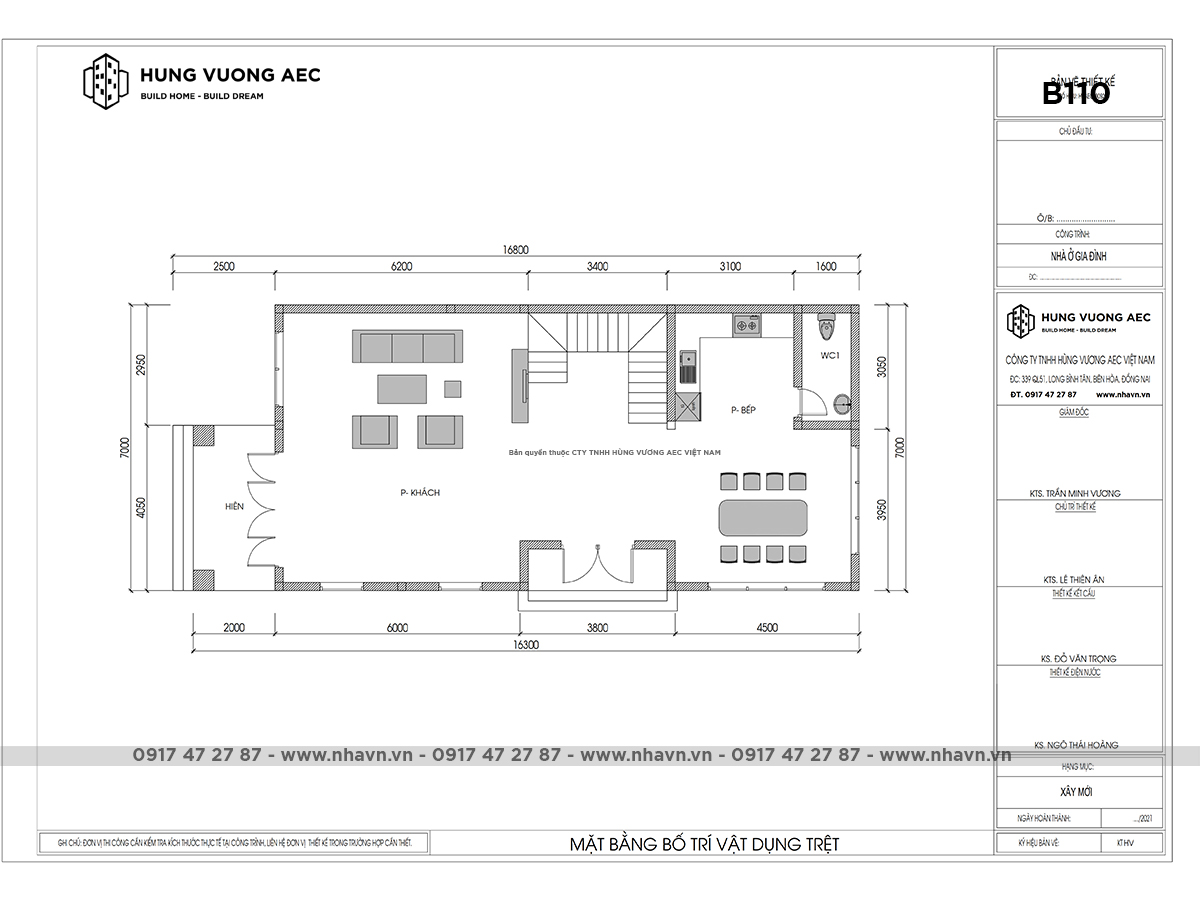
Tầng trệt được bố trí với phòng khách, phòng bếp kết hợp với phòng ăn, và một nhà vệ sinh dùng chung cho cả tầng.

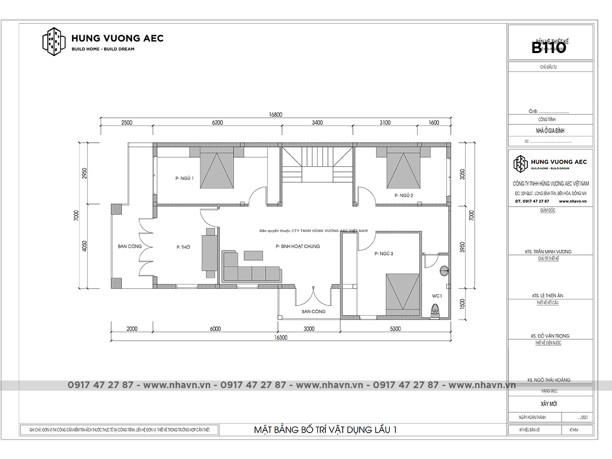
Lầu 1 của căn nhà gồm 3 phòng ngủ, phòng thờ, phòng sinh hoạt chung, và 1 nhà vệ sinh chung.
Kiến trúc sư công ty thiết kế xây dựng Nhavn.vn đã giúp nhiều gia đình thực hiện được ước mơ xây dựng không gian sống riêng biệt của mình. Vậy còn mong muốn xây dựng ngôi nhà đẹp của gia đình bạn như thế nào? Hãy liên hệ với chúng tôi để được hỗ trợ tư vấn và thiết kế ngay ngày hôm nay.
-BIỆT THỰ 2 TẦNG MÁI NHẬT 13X21 – B108
-BIỆT THỰ CỔ ĐIỂN 2 TẦNG MÁI NHẬT 3 PHÒNG NGỦ 14X15 – B109
-NHÀ MÁI NHẬT 2 TẦNG 5 PHÒNG NGỦ 10X11 – B099