Lượt xem: 2615
Những mẫu nhà phố 2 tầng luôn ứng dụng thành tựu từ các nghiên cứu, các công nghệ và nguyên vật liệu mới của thế kỳ 21 nhưng đồng thời vẫn giữ được nét đặc trưng của phong cách thiết kế tân cổ điển, một mảng màu độc đáo là sự hòa quyện sức mạnh của công nghệ hiện đại và cái nét tinh tế trong phong cách thiết kế cổ điển. Chính sự kết hợp hoàn hảo về công năng và kiến trúc ấy đã tạo nên mẫu nhà phố 2 tầng mái nhật hiện đại với một không gian mở, một nội thất tiện nghi và một thiết kế sang trọng.

| STT | Hạng mục | chi tiết |
|---|---|---|
| 1 | Công năng sử dụng | 1 phòng khách, 1 phòng ăn, 1 phòng bếp, phòng thờ, phòng học, 4 phòng ngủ, 3 WC. |
| 2 | Diện tích đất xây dựng | 12x14m |
| 3 | Diện tích sử dụng | 336m2 |
| 4 | Chi phí thiết kế kiến trúc | 120.000 đ/m2 |
| 5 | Chi phí thiết kế nội thất | 100.000 đ/m2 |
| 6 | Chi phí thi công xây dựng | Liên hệ |
Mẫu nhà phố 2 tầng hiện đại được ưu ái phong cách tân cổ điển với mặt bằng công năng cũng như thiết kế được tính toán kỹ lưỡng nhằm đáp ứng mọi mong muốn của chủ đầu tư. Ngoài sự đầu tư tính toán kỹ lưỡng về mặt ngoại thất, cách cố trí công năng cũng được các kiến trúc sư dành tâm huyết để đảm bảo tuyệt đối khả năng lấy sáng, lấy gió bằng cách ứng dụng các nguyên vật liệu cũng như nguyên tắc thiết kế hiện đại; từ đó, mẫu nhà phố đem lại những giá trị tốt nhất mà một căn nhà có thể đem lại cho gia chủ và thu hút mọi ánh nhìn từ những vị khách ghé ngang công trình.

Thiết kế của nhà phố 2 tầng mái Nhật luôn đề cao sự đơn giản, tiện lợi, phù hợp với điều kiện khí hậu nóng ẩm với lượng mưa cao ở Việt Nam nhờ khả năng chống nóng, khả năng tản nhiệt và khả năng thoát nước tốt do hệ thống mái được cấu tạo từ các lớp ngói đan vào nhau. Các kỹ sư đã sử dụng phương pháp đổ bê tông viền, sau đó xây tường thu hồi phía trọng, dựng gác kì kèo, cầu phong, li tô bằng chất liệu thép hộp mạ kẽm không gỉ rồi dán ngói đất nung. Chính nhờ quy trình thi công chặt chẽ, ký càng ấy đã đem lại cho hệ mái ngói Nhật của Hung Vuong AEC một độ bền tuyệt đối và tính thẩm mỹ cao.

Điểm qua về thiết kế mặt tiền ngôi nhà, hạng mục quan trọng nhất giúp căn biệt thự trở nên độc đáo khác biệt, các kiến trúc sư đã sử dụng phối màu trung tính linh hoạt để làm nền tôn lên vẻ đẹp của các chi tiết kiến trúc. Màu trắng được dùng làm tông màu chủ đạo cho cả căn nhà, toát lên ve sang trọng tinh khiết và làm nền tảng để những đường phào chỉ phân tầng nổi bật lên những nét thiết kế chấm phá của mình; màu trắng còn giúp ngôi nhà có hiệu ứng tỏa sáng dưới cái nắng của khí hậu nóng ấm nhiệt đới ở Việt Nam. Những mảng phối màu của căn nhà còn có sự xuất hiện của màu xanh xám từ hệ mái ngói Nhật, những vân đá Marble trắng đen hòa lẫn vào nhau cùng với những chi tiết nhôm sơn tĩnh điện xám đã tạo nên một thiết kế mặt tiền đầy tính nghệ thuật, tạo nên sự đồng điệu trong hình khối kiến trúc ngôi nhà.

Các khối hình học của căn nhà được thiết kế nhằm tận dụng những nét khỏe khoắn của những khối hộp và những đường cắt thẳng của hệ cột trụ và hệ mái. Khi kết hợp hệ lan can lục bình, hệ cửa kính khung nhôm Xingfa trở nên nổi bật trên nền cây cối tạo điểm nhấn khiến cho căn nhà phố 2 tầng mái nhật hiện đại trở nên tinh tế và vô cùng sang trọng, đẳng cấp. Hệ thống cửa của căn nhà đa phần sử dụng hệ kính cường lực cao cấp với hệ khung nhôm bao quanh tạo vẻ khỏe khoắn cho căn nhà. Về hệ cửa chính được sử dụng chất liệu gỗ thịt tự nhiên với đặc trưng là bền bỉ và mang vẻ sang trọng cổ điển, tạo điểm nhấn đặc biệt cho phần mặt tiền của căn nhà cùng với các ô cửa điểm xuyến giúp cho không gian căn nhà thêm thoáng hơn, tạo nhiều khoảng không cho ánh sáng tự nhiên chiếu vào nhà. Về việc lựa chọn chất liệu cửa gỗ, các kỹ sư đã khéo léo lựa chọn chất liệu gỗ Gõ đỏ nhập khẩu, giúp tăng tính thẩm mỹ và sự sang trọng cho căn nhà.

Với kinh nghiệm nhiều năm trong thiết kế và thi công, mỗi công trình của Hung Vuong AEC đảm nhận luôn mang trong mình một vẻ đẹp riêng biệt với những thiết kế đặc trưng cho từng phong cách khác nhau. Mỗi thiết kế luôn được tính toán kỹ lưỡng dựa trên những yêu cầu, mong muốn, sở thích, và nhu cầu của khách hàng. Chính nhờ sự quan tâm tận tụy đến nhu cầu và các yêu cầu của khách hàng, cùng với sự tận tâm và chuyên nghiệp trong công việc, chúng tôi tự hảo mang đến cho các gia chủ những công trình không chỉ sang trọng, tính thẩm mỹ cao mà còn đảm bảo tính tiện nghi cho công trình, đáp ứng đầy đủ các nhu cầu của gia chủ.
Nhờ việc thấu hiểu được nhu cầu và mong muốn có một căn nhà phố 2 tầng hiện đại, tính thẩm mỹ cao và sang trọng, các kiến trúc sư Hung Vuong AEC đã giúp gia chủ có một mặt bằng bố trí công năng sử dụng thuận tiện, khoa học.

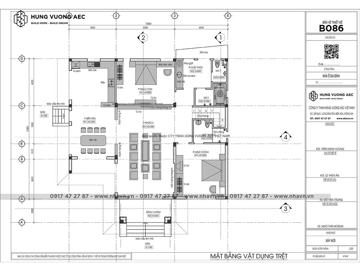
Mặt bằng tầng 1 được bố trí với 2 phòng ngủ, 1 phòng ngủ Master WC khép kín, 1 phòng khách lớn được đặt ở sảnh chính căn nhà, phòng bếp kết hợp với phòng ăn, WC kết hợp với phòng giặt phơi đặt ở phía cuối căn nhà nhằm đảm bảo sự thông thoáng và ánh sáng tự nhiên cho phòng phơi.

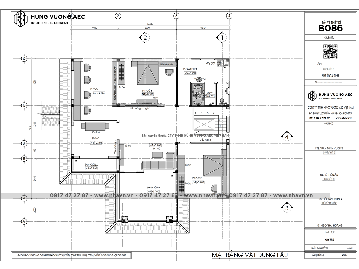
Tầng 2 của căn nhà được thiết kế với 2 phòng ngủ, phòng sinh hoạt chung, phòng học, phòng thờ, ban công và 1 WC
Trên đây, Hung Vuong AEC đã gửi đến các bạn các điểm cơ bản trong hồ sơ thiết kế nhà phố mái nhật 2 tầng hiện đại sang trọng chúng tôi đã bàn giao cho gia đình các chủ đầu tư và nhận được sự đánh gia cao cũng như sự hài lòng của gia chủ. Hi vọng lối thiết kế khoáng đạt của ngôi biệt thự sẽ mang đến cho các bạn những ý tưởng độc đáo để áp dụng cho phong cách thiết kế nhà ở tương lai của mình. Hãy liên hệ với Hung Vuong AEC để nhận được sự tư vấn từ các kiến trúc sư giàu kinh nghiệm cho căn nhà mơ ước của mình.