Lượt xem: 3704
Mang vẻ đẹp trang nhã, lại có công dụng tốt trong việc điều hòa không khí, rất phù hợp với khí hậu nhiệt đới tại Việt Nam nên những mẫu biệt thự vườn mái nhật đang ngày càng được ưa chuộng. Thật vậy, kiến trúc mái Nhật đậm chất Á Đông hiện đại mới mẻ chắc chắn sẽ mang đến cho ngôi biệt thự vẻ đẹp độc đáo, sang trọng mà lại vô cùng tinh tế. Những tinh hoa này đã được các kiến trúc sư Nhavn.vn vận dụng hài hòa, linh hoạt để tạo nên mẫu thiết kế biệt thự hiện đại 2 tầng mái Nhật đẹp hoàn hảo cho gia đình chủ đầu tư.

STT Hạng mục chi tiết
1 Công năng sử dụng 1 phòng khách, 1 phòng ăn, 1 phòng bếp, 5 phòng ngủ, 4 WC, phòng sinh hoạt chung.
2 Diện tích đất xây dựng 9x13m
3 Diện tích sử dụng 236m2
4 Chi phí thiết kế kiến trúc 120.000 đ/m2
5 Chi phí thiết kế nội thất 100.000 đ/m2
6 Chi phí thi công xây dựng Liên hệ
Một cách tổng quát, không gian mặt tiền ngôi biệt thự hiện đại 2 tầng của gia đình chủ đầu tư được thiết kế với các mảng khối vuông vắn vô cùng mạnh mẽ. Thêm vào đó, từ hệ thống trụ cột, phào chỉ, gờ đều được thiết kế tối giản và không có bất cứ chi tiết trang trí rườm rà để không làm mất đi vẻ đẹp vốn có của phong cách kiến trúc hiện đại.
Các kiến trúc sư còn khá sáng tạo khi sử dụng các mảng màu đối lập nhau giữa nền tường và các chi tiết phào chỉ trang trí, cửa sổ, hệ thống mái. Cách thiết kế các cửa sổ kính rất lớn, gần như thay thế các tường, tạo ra một cảm giác thoáng đáng, sáng sủa mà không bị gò bó trong chất liệu bê tông.

Kính vốn được xem như là chất liệu của thế kỉ 21 này bởi nó tạo ra rất nhiều thay đổi về tính thẩm mỹ của một căn nhà, đặc biệt là những ngôi nhà mang phong cách hiện đại. Trong thiết kế của mẫu biệt thự đẹp này, chất liệu kính được sử dụng cho các ô cửa. Cùng với hệ thống cửa, cửa sổ, cửa ban công thì một số khu vực lan can của mẫu biệt thự 2 tầng này cũng được sử dụng chất liệu cao cấp.

Hệ thống mái cũng là điểm cộng khá lớn trong thiết kế biệt thự 2 tầng của gia đình chủ đầu tư bởi nó có công năng tuyệt vời và phù hợp với kiểu thời tiết ở Việt Nam. Với kiểu thiết kế dốc về các phía nhằm chống đọng nước, thấm mốc xuống phía dưới, rải rác ở các tầng. Đặc biệt là ở tầng 1, hệ thống mái sẽ tạo ra một hành lang giả vừa chống nắng hiệu quả mà cũng vừa chống được nước mưa hắt vào sảnh chính. Mái ngói khi kết hợp với tổng thể nhà càng khiến cho mẫu biệt thự hiện đại đẹp này càng trở nên nổi bật.
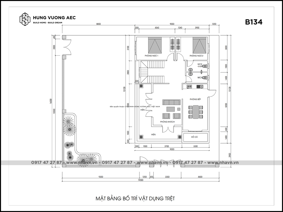
Tại phần đầu bài viết, chúng tôi đã đề cập cơ bản công năng ngôi biệt thự 2 tầng này được bố trí như sau:
Tầng 1 gồm phòng khách, 2 phòng ngủ, phòng bếp ăn, phòng vệ sinh chung cho cả tầng, và khu giặt phơi.

Tầng 2 được bố trí 3 phòng ngủ khép kín, phòng sinh hoạt chung, và ban công.

Đến với phần nội dung này bạn sẽ không khỏi bất ngờ với không gian thời thượng của ngôi biệt thự hiện đại mái Nhật được tạo nên bởi phương án thiết kế nội thất vô cùng tối ưu. Từng ngóc ngách của ngôi nhà đều được thiết kế chỉn chu đến tiểu tiết nhằm mang đến gia chủ sự hài lòng trọn vẹn và khôn gian sống chất lượng.
Chúc bạn có được những ý tưởng độc đáo từ phương án thiết kế biệt thự 2 tầng hiện đại chúng tôi vừa chia sẻ ở trên. Trong các bài viết sau chúng tôi sẽ tiếp tục giới thiệu các mẫu biệt thự đẹp được trình làng mới nhất. Cảm ơn bạn đã theo dõi bài viết.
-BIỆT THỰ CỔ ĐIỂN 2 TẦNG 4 PHÒNG NGỦ 9X14 – B104
-NHÀ MÁI NHẬT 2 TẦNG 5 PHÒNG NGỦ 10X11 – B099
-BIỆT THỰ 2 TẦNG MÁI NHẬT 13X21 – B108