Lượt xem: 4853
Xu hướng lựa chọn thiết kế biệt thự cho tổ ấm gia đình đang được rất nhiều gia chủ ưa chuộng hiện nay. Lý do là bởi biệt thự thường có diện tích rộng rãi, thiết kế thêm cả sân vườn tạo nên một không gian sống xanh và thoáng đãng.

STT Hạng mục chi tiết
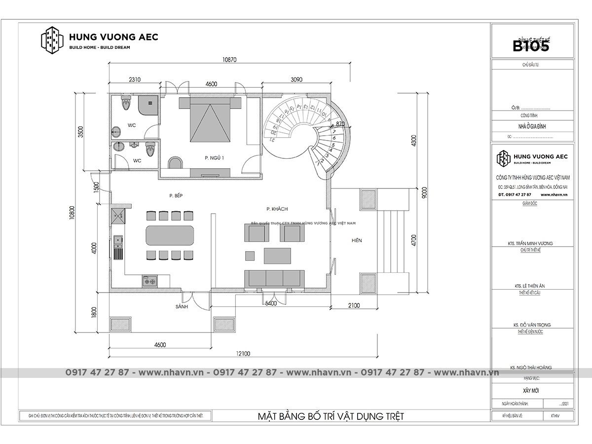
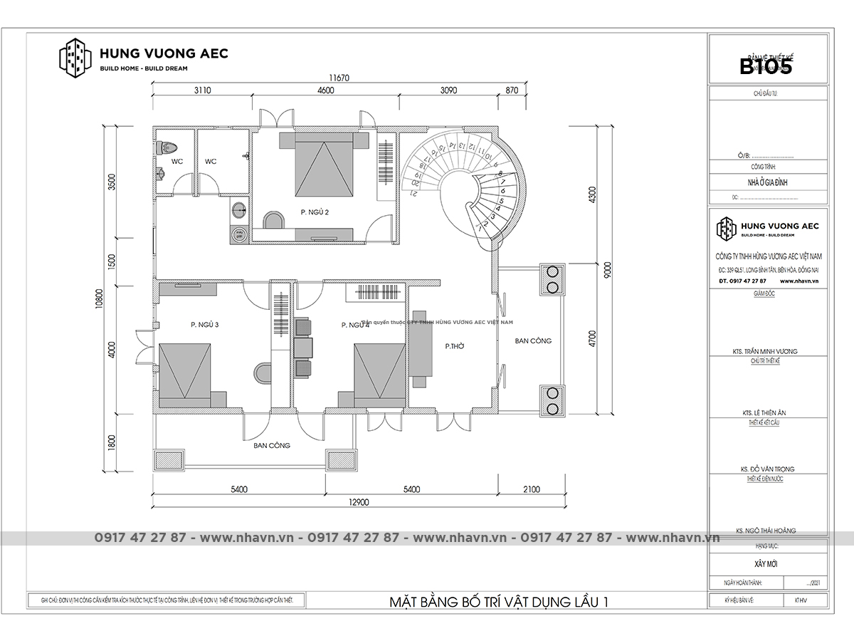
1 Công năng sử dụng 1 phòng khách, 1 phòng ăn, 1 phòng bếp, 4 phòng ngủ, 3 WC, phòng thờ.
2 Diện tích đất xây dựng 10x12m
3 Diện tích sử dụng 270m2
4 Chi phí thiết kế kiến trúc 120.000 đ/m2
5 Chi phí thiết kế nội thất 100.000 đ/m2
6 Chi phí thi công xây dựng Liên hệ
Trước những đòi hỏi ngày càng “khó tính” của các gia chủ, các công ty thiết kế cũng cần cập nhật và nắm bắt những xu hướng thiết kế mới nhất trên thị trường hiện nay. Với nhiều năm kinh nghiệm thiết kế biệt thự, Nhavn.vn đã làm hài lòng những gia chủ dù là khó tính nhất. Dưới đây, chúng tôi mời quý gia chủ cùng tham khảo mẫu thiết kế biệt thự 2 tầng mang phong cách tân cổ điển.

Được xây dựng trên diện tích đất rộng lớn, biệt thự đáp ứng đầy đủ tiêu chí của một biệt thự sân vườn kết hợp. Tọa lạc tại mặt phố nên việc đi lại sinh hoạt hàng ngày cũng rất dễ dàng. Không những vậy việc thi công công tình cũng gặp nhiều thuận lợi. Thiết kế biệt thự 2 tầng chính được thiết kế theo phong cách tân cổ điển. Đây là phong cách thiết kế được nhiều gia chủ ưa chuộng hiện nay bởi nó kết hợp giữa truyền thống và hiện đại, mang đến sự độc đáo và mới mẻ.

Phần mái của mẫu biệt thự 2 tầng sử dụng mái Nhật – loại mái đến từ đất nước mặt trời mọc khi du nhập vào Việt Nam đã có sự cải tiến để phù hợp với đặc điểm nước ta. Mái Nhật không quá cầu kỳ nhưng lại có vẻ đẹp riêng, rất phù hợp với công trình tân cổ điển hòa trộn giữa truyền thống và hiện đại. Mái Nhật với độ dốc giúp cho biệt thự trở nên thanh thoát, cao ráo hơn. Về công năng, mái Nhật có khả năng thoát nước tốt, chống thấm dột hiệu quả và chống nóng khá tốt trong điều kiện khí hậu nóng ẩm của Việt Nam.

Các cột nhà kết hợp cột tròn và cột vuông. Cột vuông với hình dáng vuông văn, chắc chắn, đường nét hình khối kéo dài, dứt khoát mang đến vẻ mạnh mẽ cho công trình. Cột tròn theo phong cách la mã mang đến cho biệt thự vẻ sang trọng, tinh tế. Phần tường được kết hợp giữa ốp đá và màu sơn trắng hết sức độc đáo. Sự kết hợp này mang lại cho biệt thự vừa có sự chắc chắn lại vừa có nét thanh cao. Các cửa chính ra vào và cửa sổ được làm bằng khung nhôm xingfa kết hợp kính cường lực giúp không gian nội thất được thoáng đãng. Tầng 2 được thiết kế các ban công nhỏ với lan can bằng sắt nghệ thuật chắc chắn, vừa giúp không gian trở nên rộng rãi hơn, lại vừa tạo không gian mở cho công trình.
Như đã chia sẻ, sân vườn là phần không thể thiếu với những thiết kế biệt thự hiện nay. Tùy vào quỹ đất mà mỗi gia đình có cách thiết kế sân vườn khác nhau. Với thiết kế biệt thự 2 tầng này sân vườn được quy hoạch khá rộng rãi tạo không gian thoáng đãng, phục vụ những nhu cầu sinh hoạt hàng ngày. Các vườn tiểu cảnh được đặt xung quanh nhà tạo không gian mát mẻ, gần gũi với thiên nhiên. Ngoài ra, mẫu biệt thự 2 tầng còn được thiết kế với gara ô tô liền kề lộ thiên thuận tiện cho việc cất giữ và đi lại hàng ngày.

Mẫu biệt thự 2 tầng có hệ thống tường bao và cổng mặt trước bằng sắt nghệ thuật vô cùng thông thoáng, mặt tiền rất rộng giúp phô diễn triệt để vẻ đẹp của công trình đến những người xung quanh. Đồng thời cách thiết kế này giúp hạn chế tình trạng “kín cổng cao tường”, tạo ra sự biệt lập mang đến cảm giác bí bách.

Với nhiều năm kinh nghiệm trên thị trường cùng đội ngũ kiến trúc sư tay nghề cao, luôn cập nhật những xu hướng thiết kế mới nhất trên thị trường hiện nay, Nhavn.vn cam kết sẽ làm hài lòng những gia chủ dù là khó tính nhất bằng những mẫu thiết kế biệt thự 2 tầng đẹp. Hãy liên hệ ngay với chúng tôi để được tư vấn và thiết kế.