Lượt xem: 3473
Tân cổ điển là phong cách kiến trúc được lấy cảm hứng từ cả yếu tố truyền thống và hiện đại kết hợp. Hiểu được rằng một căn nhà đẹp phải đảm bảo được đồng thời các yếu tố thẩm mỹ, công năng, phù hợp với cảnh quan cũng như lối sống hiện đại, quan trọng nhất là sự tiện nghi và cảm giác thoải mái cho gia chủ, các kiến trúc sư luôn dành thời gian tìm hiểu kỹ càng sở thích, yêu cầu của gia chủ cùng các điều kiện của khu đất,… để cho ra được những mẫu biệt thự cổ điển đẹp mãn nhãn vừa sang trọng lại mang dấu ấn riêng của gia chủ.

STT Hạng mục chi tiết
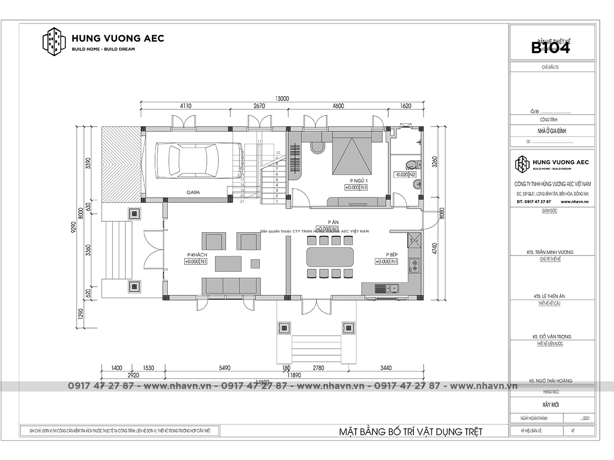
1 Công năng sử dụng 1 phòng khách, 1 phòng ăn, 1 phòng bếp, 4 phòng ngủ, 2 WC, phòng thờ, gara
2 Diện tích đất xây dựng 9x14m
3 Diện tích sử dụng 250m2
4 Chi phí thiết kế kiến trúc 120.000 đ/m2
5 Chi phí thiết kế nội thất 100.000 đ/m2
6 Chi phí thi công xây dựng Liên hệ
Không rối ren hoa văn trên gam trắng tinh tế tạo không gian sống chất lượng hoàn hảo, đẳng cấp cho gia chủ – đây chính là định hướng thiết kế các kiến trúc sư đã lựa chọn cho ngôi biệt thự 3 tầng này. Là kết quả của sự hội tụ tinh hoa kiến trúc cổ điển và hiện đại, ngôi biệt thự sang trọng, quý phái nhưng không hề hào nhoáng, phô trương.

Với những công trình không chỉ độc đáo trong thiết kế mà còn chất lượng trong thi công, luôn khẳng định dấu ấn của mình trên thị trường thiết kế biệt thự và trên toàn quốc. Đối với biệt thự, việc khoác lên công trình vẻ đẹp đậm chất Pháp lãng mạn, các kiến trúc sư đã khiến ngôi biệt thự làm siêu lòng cả những chủ đầu tư khó tính nhất. Ngôi biệt thự sở hữu trọn vẹn và tinh tế nét sang trọng, tinh hoa của kiến trúc kiểu Pháp. Do vậy, qua phối cảnh bạn cũng sẽ thấy từng đường nét thiết kế không chỉ thể hiện tài năng, tâm huyết của các kiến trúc sư mà còn cho thấy gu thẩm mỹ tuyệt vời của chủ đầu tư.
Bàn sâu về kiến trúc công trình chúng ta có thể thấy rằng hạng mục làm nên dáng dấp hoàng gia, đẳng cấp cho ngôi biệt thự này có lẽ là hệ cột trụ với đầy đủ kích thước, kiểu dáng vuông tròn được thiết kế tỉ mỉ trên mặt đứng và được phân bổ đều và tương xứng các bên. Ở sảnh chính, hệ trụ được thiết kế lớn với hai cột trụ tròn sơn màu trắng cùng với những họa tiết, phào chỉ đắp nổi tinh xảo tạo nên sự nhẹ nhàng, thanh thoát, sang trọng và đẹp mắt. Cùng với đó, hệ thống cột trụ được thiết kế cao thoáng chống đỡ phần mái đua ra, kết hợp với hệ trụ cột vuông khỏe khoắn chắc chắn ốp nửa vào tường biệt thự, tô đậm chất cổ điển cho ngôi nhà.

Với phong cách kiến trúc tân cổ điển thì các kiến trúc sư sử dụng tone màu trắng làm chủ đạo. Màu trắng luôn được coi là tone màu tượng trưng cho sự thịnh vượng, tinh khiết và sự khởi đầu mới suôn sẻ. Ngoài ra, tone màu trắng còn được đánh giá là tone màu giúp mang đến cảm giác tươi mới, làm gia tăng năng lượng, giúp không gian sống trở nên sáng sủa, rộng rãi, thoải mái hơn.

Toàn bộ hệ thống cửa của ngôi biệt thự này được sử dụng bằng chất liệu kính cường lực kết hợp cùng khung nhôm màu trắng cao cấp. Với việc mở rất nhiều hệ thống cửa sổ, cửa ban công, bằng kính giúp cho không gian bên trong nhà trở nên sáng sủa, thoáng đãng hơn rất nhiều. Ngoài ra, theo các kiến trúc sư, việc thiết kế nhiều hệ thống cửa bằng kính còn tạo ra các khoảng view đẹp mắt hướng ra các khung cảnh thiên nhiên xung quanh cho ngôi nhà mà không cần phải lo lắng điều kiện thời tiết bên ngoài.

Tầng 1 gồm phòng khách, phòng bếp ăn, phòng ngủ, gara xe và vệ sinh chung của cả tầng.

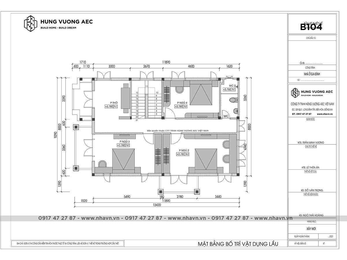
Tầng 2 gồm phòng ngủ master (có ban công rộng), 2 phòng ngủ thường, phòng thờ cũng có ban công, và vệ sinh chung cho cả tầng.
Trên đây là hồ sơ thiết kế ngôi biệt thự tân cổ điển chúng tôi đã bàn giao cho chủ đầu tư. Hi vọng bài viết sẽ mang đến bạn những tham khảo hữu ích và giúp bạn có được ý tưởng thiết kế biệt thự nói chung và thiết kế biệt thự tân cổ điển tối ưu nhất. Cảm ơn bạn đã theo dõi bài viết.