Lượt xem: 2805
Mẫu nhà biệt thự mái nhật tân cổ điển được kiến trúc Hung Vuong AEC lựa chọn làm giải pháp thiết kế và thi công công trình nhà ở dựa trên nhu cầu về công năng cũng như sở thích của gia chủ với phong cách thiết kế Tân cổ điển độc đáo. Không chỉ đáp ứng các yêu cầu chủ gia chủ, thiết kế biệt thự mái Nhật này còn thể hiện được tính sáng tạo cũng như kinh nghiệm chuyên môn của các kiến trúc sư từ Hung Vuong AEC qua những đường nét phóng khoáng, cởi mở trong phong cách thiết kế tân cổ điển truyền thống, tạo được ấn tượng về một ngôi nhà vừa sang trọng nhưng vẫn giữ được vẻ gần gũi ấm áp cần có của một căn nhà.

STT Hạng mục Chi tiết
1 Công năng sử dụng 1 phòng khách, 1 phòng ăn, 1 phòng bếp, 1 phòng sinh hoạt chung, phòng thờ, 4 phòng ngủ, 4 WC, ban công
2 Diện tích đất xây dựng 20x12m
3 Diện tích sử dụng 480m2
4 Chi phí thiết kế kiến trúc 120.000 đ/m2
5 Chi phí thiết kế nội thất 100.000 đ/m2
6 Chi phí thi công xây dựng Liên hệ
Với nhu cầu của gia chủ, các kiến trúc sư ưu tiên sử dụng thiết kế biệt thự tân cổ điển, một phong cách không quá cầu kỳ về trang trí và thi công nhưng vẫn toát lên vẻ sang trọng, đẳng cấp qua các đường nét đặc trưng. Có thể thấy rằng, biệt thự 2 tầng của gia đình đáp ứng được đầy đủ những yêu cầu của anh về mặt thiết kế. Với biệt thự mặt tiền dài, kiến trúc Hung Vuong AEC đã giúp ngôi nhà của được hoàn thiện từ công năng cho đến thiết kế nội ngoại thất ấn tượng.

Với mẫu biệt thự tân cổ điển 2 tầng này, các kiến trúc sư từ Hung Vuong AEC đã khéo léo lựa chọn thiết kế mái Nhật cho công trình của gia đình, bời hệ mái Nhật có những ưu điểm vượt trội cả về công năng lẫn tính thẩm mỹ so với các hệ mái khác. Mái Nhật có cho mình một khuôn mái dễ chịu, đồng đề và cân bằng, là sự kết hợp hài hòa giữa mái Thái và phong cách mái mang âm hưởng châu Âu cổ điển. Chính sự khéo léo trong việc dung hòa các yếu tố tưởng chừng đối lập nhau của phương Đông và phương Tây đã tạo nên một điểm nhấn độc đáo, khác lạ nhưng không kém phần tinh tế cho căn nhà.

Vốn đã có cho mình những ưu điểm vượt trội, mái Nhật khi du nhập vào nước ta đã được thay đổi cải tiến để có thể đáp ứng được các yêu cầu mà khí hậu nóng ẩm của nước ta đặt ra. Hệ mái Nhật được điều chỉnh với độ dốc vừa phải, đưa mái lên cao hơn nhằm tăng khả năng thoát nước cho căn nhà, đồng thời tạo cảm giác cao ráo khỏe khoắn hơn. Loại mái ngói được chọn cũng là ngói cách nhiệt tốt giúp cho ngôi biệt thự tân cổ điển luôn được thoáng mát, tránh cảm giác nóng bức bí bách. Những vườn tiểu cảnh được bố trí xung quanh biệt thự giúp tạo điểm nhấn, mang lại không gian xanh mát, và giúp con người được gần gũi với thiên nhiên hơn.
Toàn bộ hệ thống cửa của ngôi biệt thự này được sử dụng bằng chất liệu kính cường lực kết hợp cùng khung nhôm màu trắng cao cấp. Với việc mở rất nhiều hệ thống cửa sổ, cửa ban công, bằng kính giúp cho không gian bên trong nhà trở nên sáng sủa, thoáng đãng hơn rất nhiều. Ngoài ra, theo các kiến trúc sư, việc thiết kế nhiều hệ thống cửa bằng kính còn tạo ra các khoảng view đẹp mắt hướng ra các khung cảnh thiên nhiên xung quanh cho ngôi nhà mà không cần phải lo lắng điều kiện thời tiết bên ngoài.

Biệt thự 2 tầng mái Nhật nhà được thiết kế đối xứng tạo sự cân đối trong tổng thể thiết kế. Nếu quan sát bạn sẽ thấy toàn bộ thiết kế được đối xứng một cách hoàn hảo. Không chỉ chuẩn chỉ về kích thước mà ngay cả trang trí cũng được thiết kế đối xứng cả hai phía tạo nên sự chuẩn mực, trang nhã, thể hiện được phong cách của gia chủ.

Bàn sâu về kiến trúc công trình chúng ta có thể thấy rằng hạng mục làm nên dáng dấp hoàng gia, đẳng cấp cho ngôi biệt thự này có lẽ là hệ cột trụ với đầy đủ kích thước, kiểu dáng vuông tròn được thiết kế tỉ mỉ trên mặt đứng và được phân bổ đều và tương xứng các bên. Ở sảnh chính, hệ trụ được thiết kế lớn với hai cột trụ tròn sơn màu trắng cùng với những họa tiết, phào chỉ đắp nổi tinh xảo tạo nên sự nhẹ nhàng, thanh thoát, sang trọng và đẹp mắt. Cùng với đó, hệ thống cột trụ được thiết kế cao thoáng chống đỡ phần mái đua ra, kết hợp với hệ trụ cột vuông khỏe khoắn chắc chắn ốp nửa vào tường biệt thự, tô đậm chất cổ điển cho ngôi nhà.

Mặc dù đã trình làng nhiều mẫu biệt thự cổ điển nhưng mỗi công trình do Hung Vuong AEC thiết kế lại mang trong mình một vẻ đẹp riêng biệt, không có bất kỳ thiết kế nào giống nhau. Mỗi thiết kế luôn hình thành dựa trên những yêu cầu, mong muốn, sở thích của khách hàng. Đây cũng chính là yếu tố làm nên sức cạnh tranh cho các mẫu biệt thự đẹp của Hung Vuong AEC. Chúng tôi tự hào mang đến chủ đầu tư những công trình không chỉ sang trọng mà còn tiện nghi cho gia chủ ở khắp mọi miền đất nước.

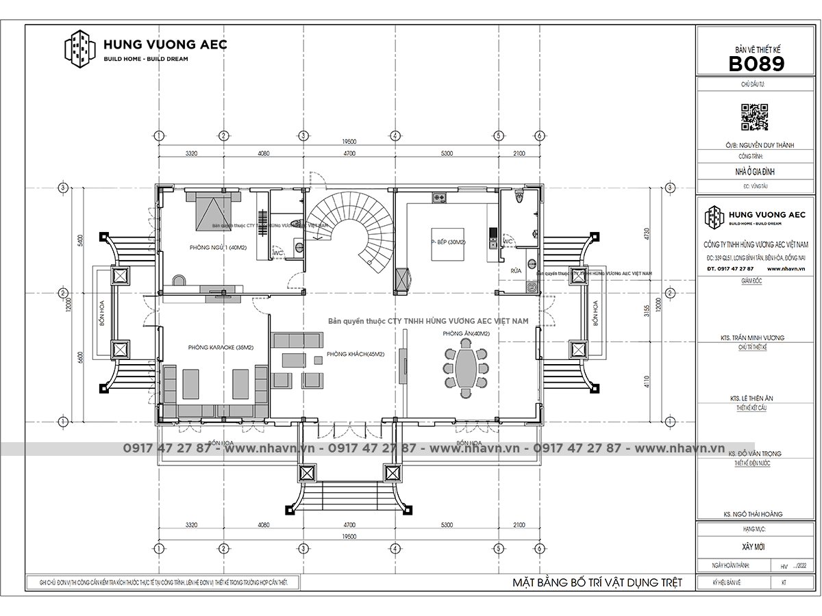
Tầng trệt của căn nhà được bố trí với 1 phòng khách, 1 phòng ngủ, phòng karaoke, phòng bếp kết hợp với phòng ăn và 2 WC.

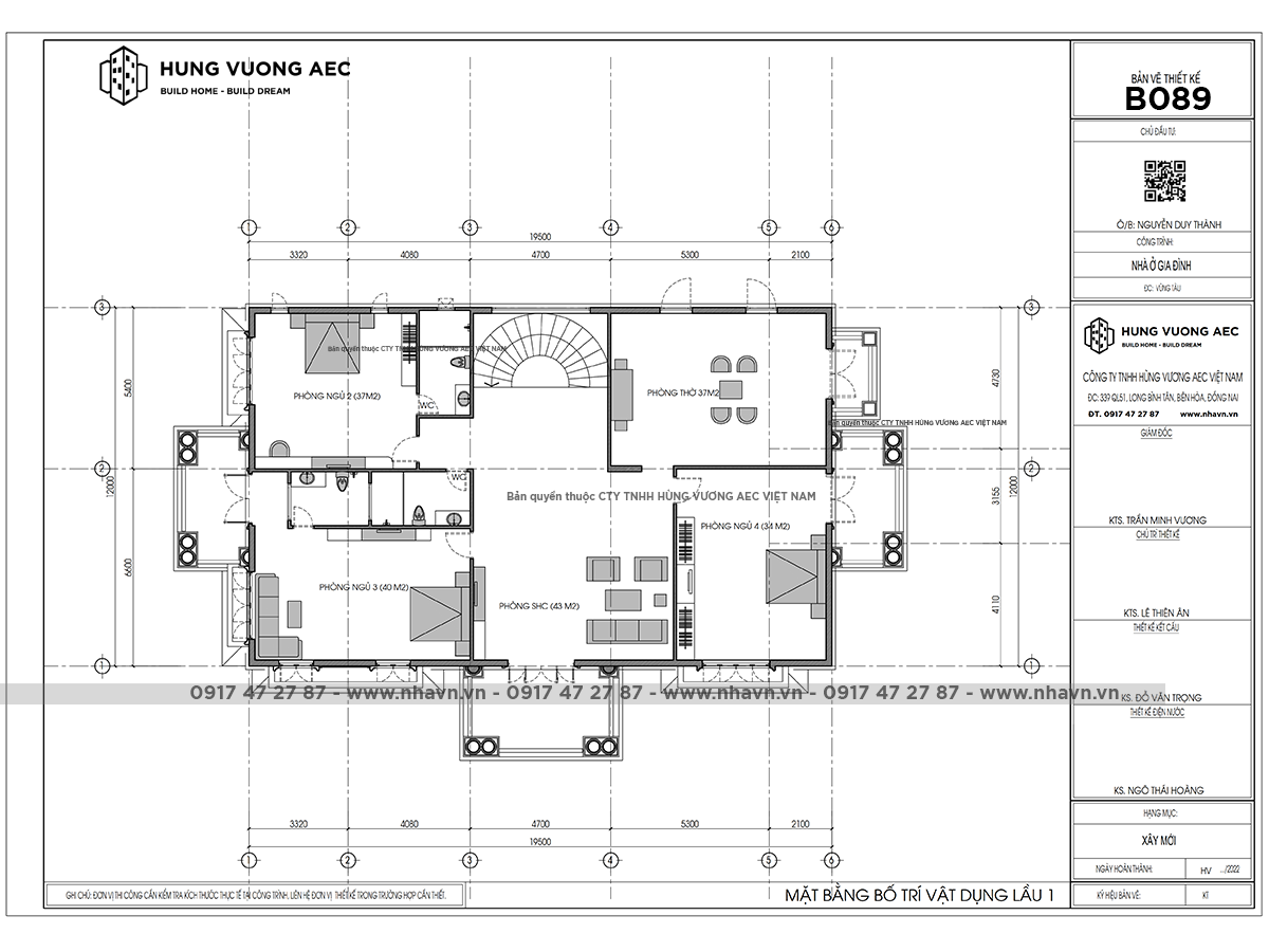
Lầu một gồm 3 phòng ngủ, 3 WC, phòng sinh hoạt chung và phòng thờ.
Để có mẫu thiết kế nhà đẹp, bao gồm rất nhiều yếu tố, tuy nhiên đóng vài trò then chốt chính là việc lựa chọn đơn vị thiết kế uy tín. Một bản vẽ thiết kế nhà đẹp hoàn hảo là khi nhận được sự đồng thuận, thống nhất ý tưởng giữa chủ nhà và kiến trúc sư. Hung Vuong AEC với nhiều năm kinh nghiệm trong lĩnh vực thiết kế thi công nhà đẹp trên toàn quốc. Đội ngũ kiến trúc sư, kỹ sư chuyên môn và thẩm mỹ cao cam kết sẽ sáng tạo hết mình mang lại không gian sống lý tưởng cho bạn và gia đình.