Lượt xem: 3134
Những mẫu nhà phố đẹp 3 tầng hiện đại với không gian sống tinh tế, sang trọng cùng với mức chi phí đầu tư hợp lý hiện đang là xu hướng được nhiều chủ đầu tư yêu thích và lựa chọn. Hãy cùng chúng tôi khám phá mẫu nhà phố đẹp 3 tầng hiện đại thiết kế đầy sức hút từ phối cảnh cho đến nội thất cũng như mặt bằng công năng.

STT Hạng mục chi tiết
1 Công năng sử dụng 1 phòng khách, 1 phòng ăn, 1 phòng bếp, 4 phòng ngủ, 4 WC, phòng thờ
2 Diện tích đất xây dựng 5x18m
3 Diện tích sử dụng 270m2
4 Chi phí thiết kế kiến trúc 120.000 đ/m2
5 Chi phí thiết kế nội thất 100.000 đ/m2
6 Chi phí thi công xây dựng Liên hệ
So với mức chi phí đầu tư hoàn thiện công trình, thì mẫu nhà đẹp hoàn toàn đáp ứng hơn cả mong đợi, với tính ứng dụng cao, công năng được tối ưu hóa cùng phối cảnh kiến trúc hiện đại, thẩm mỹ. Được sự đồng ý của gia chủ, chúng tôi công khai hồ sơ thiết kế trên website www.nhavn.vn, nhằm mục đích sẽ mang đến cho quý khách hàng có thể hoàn thiện, cũng như hình thành nên những ý tưởng thiết kế nhà hoàn hảo cho tổ ấm của mình.

Thiết kế không gian chức năng có sự liên thông và các tầng có sự liên kết với nhau, thống nhất trong tổng thể chung, từ đó mang đến sự ấn tượng tươi mới cho mẫu nhà phố đẹp.
Mẫu nhà phố hoàn toàn thu hút và tạo ấn tượng mạnh mẽ ngay từ lần đầu ngắm nhìn. Thiết kế hình khối kiến trúc vuông vức, đơn giản và tươi mới, bố cục mảng khối không tuân theo bất cứ nguyên tắc đối xứng không gian, tuy nhiên vẫn toát lên sự tinh tế và hiện đại cho công trình. Khối ban công lầu 1 và lầu 2 đưa ra rộng với tầng trệt 1m, giúp cân chỉnh hiệu ứng không gian cũng như phân bổ đồng đều, giúp công trình thêm sự mới mẻ, ấn tượng hơn.

Thiết kế nhà phố hiện đại không có sự xuất hiện của những chi tiết trang trí cầu kỳ, chỉ với những đường gờ đơn giản nhô ra phần ban công, dầm sàn phía trước, tuy nhiên cũng đủ để mẫu nhà phố đẹp 3 tầng hiện đại có sức hút lớn trong mắt người nhìn.
Kiến trúc mặt tiền sử dụng vật liệu gỗ nhựa ngoài trời ốp trần nhà, cùng hệ thống lan can kính, tay vịn gỗ, kết hợp với cửa kính khung nhôm xingfa, đèn âm tường và bồn cây xanh tại ban công lầu 1 giúp mẫu nhà phố vừa thể hiện sự sang trọng, hiện đại, vừa toát lên sự mềm mại và tinh tế.

Ngoại thất mẫu nhà phố đẹp 3 tầng hiện đại được sơn màu trắng làm chủ đạo, hòa cùng màu nâu của gỗ, màu đen của khung cửa kính, màu xanh của cây cảnh, tạo nên sự tươi sáng và mới mẻ cho toàn bộ mặt tiền của công trình.
Thiết kế nhà 3 tầng đơn giản với hình khối kiên cố và vuông vắn, màu sắc trẻ trung và không quá phô trương nhưng vẫn đem đến cho người nhìn một thiện cảm đầy lôi cuốn, khó có thể bức phá ra khỏi.
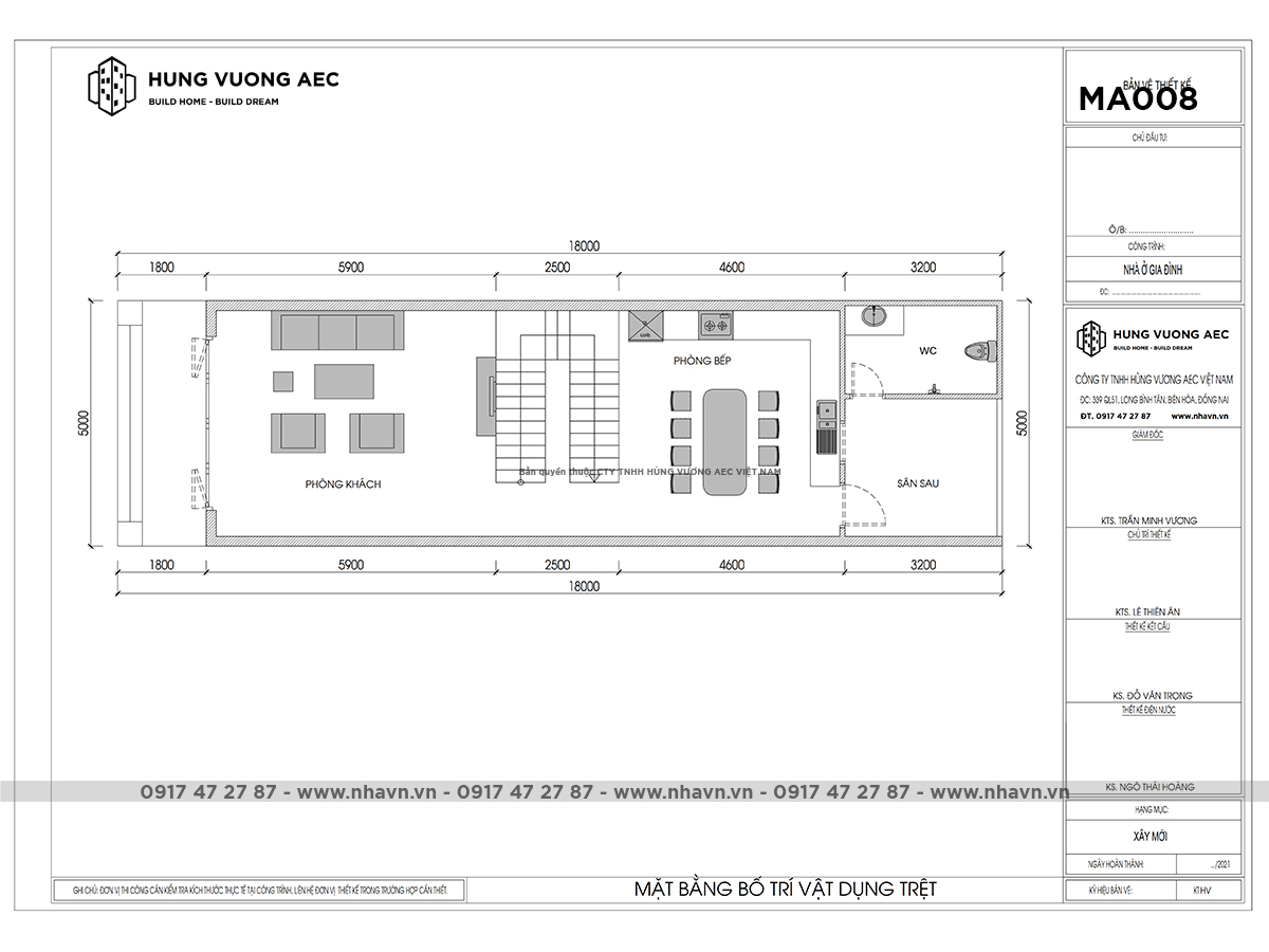
Mặt bằng công năng tầng trệt bố trí phòng khách sát cửa chính. Tiếp đến là không gian tiểu cảnh nhỏ bên hông, bên trong là khu vực bếp ăn, thiết kế không gian mở, tận dụng tối đa diện tích và ánh sáng cho khu vực này. Sau cùng là nhà vệ sinh chung của tầng trệt.

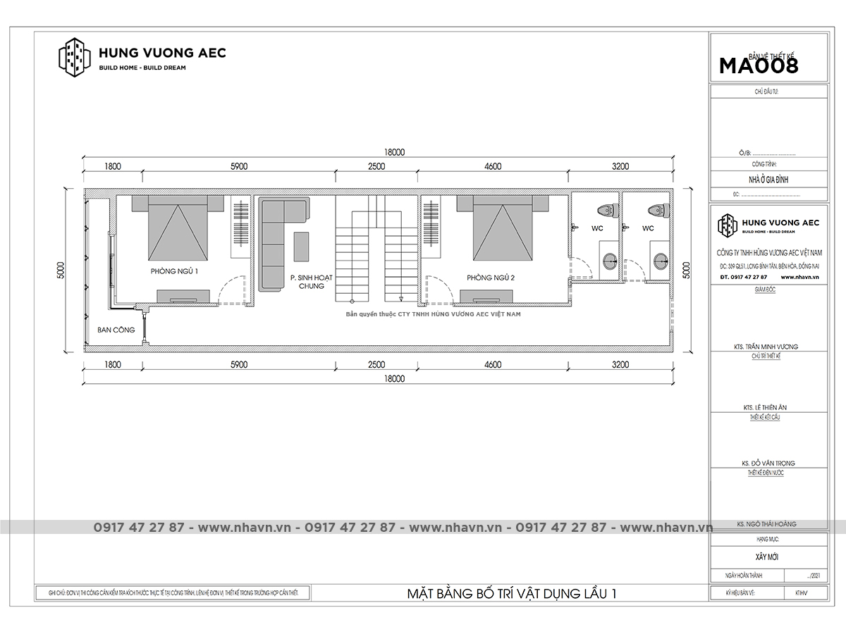
Lầu 1 được thiết kế 1 phòng ngủ Master dành cho anh chị, hướng ra ban công trước nhà đón sáng và gió. Kế bên là phòng sinh hoạt chung và cầu thang thông tầng. Tiếp đến là phòng ngủ 2 có phòng vệ sinh riêng. Cuối nhà là vệ sinh chung.
Công năng lầu 2 thiết kế phòng thờ phía trước, 2 phòng ngủ, cuối nhà là phòng vệ sinh chung.

Mẫu nhà phố đẹp 3 tầng hiện đại với phối cảnh tinh tế và mới mẻ, cùng mặt bằng công năng sử dụng được phân chia khoa học và tiện nghi, thiết kế nội thất sang trọng, hứa hẹn sẽ là một phương án lý tưởng để bạn tham khảo. Nếu yêu thích mẫu nhà phố đẹp trên hãy liên hệ đến văn phòng công ty để được kiến trúc sư hỗ trợ tư vấn cụ thể và chi tiết nhất nhé!
-NHÀ PHỐ HIỆN ĐẠI 3 TẦNG 5X20 – MA007