Lượt xem: 4366
Mẫu nhà phố 4 tầng mang phong cách hiện đại, trẻ trung được các kiến trúc sư Nhavn.vn thiết kế. Mẫu thiết kế này nhận được nhiều lời khen ngợi từ gia chủ bởi lối kiến trúc đơn giản, sang trọng và tinh tế. Hãy khám phá ngay mẫu nhà phố 4 tầng từ Nhavn.vn để có thêm ý tưởng cho kế hoạch xây dựng tổ ấm của bạn trong tương lai.

STT Hạng mục chi tiết
1 Công năng sử dụng 1 phòng khách, 1 phòng ăn, 1 phòng bếp, 4 phòng ngủ, 6 WC, phòng thờ
2 Diện tích đất xây dựng 5x16m
3 Diện tích sử dụng 320m2
4 Chi phí thiết kế kiến trúc 120.000 đ/m2
5 Chi phí thiết kế nội thất 100.000 đ/m2
6 Chi phí thi công xây dựng Liên hệ
Vì không có quá nhiều diện tích chiều rộng nên luôn cần cân nhắc về kiến trúc cho căn nhà để đảm bảo sự cân đối, phù hợp. Nếu phong cách tân cổ điển phù hợp với những mảnh đất rộng thì phong cách hiện đại lại là phương án hoàn hảo cho những căn nhà phố 4 tầng diện tích hẹp Theo đó thiết kế kiến trúc theo phong cách hiện đại cho những căn nhà phố sẽ toát lên sự sang trọng, tinh tế và vẫn đảm bảo sự tiện nghi, thoải mái.

Giảm bớt các chi tiết rườm rà, thay vào đó các KTS tạo ra những mảng màu và hình khối vuông vắn. Bên cạnh đó là chú trọng sử dụng vật liệu kính nhiều hơn để đón ánh sáng tự nhiên và làm căn nhà phố 4 tầng trông như rộng lớn hơn. Sự đơn giản, trẻ trung và mang đậm phong cách hiện đại của căn nhà sẽ khiến mọi người phải dừng chân để chiêm ngưỡng ngay lập tức.Căn nhà trẻ trung, phong cách này được xây dựng trên mảnh đất có diện tích 5x20m. Các kiến trúc sư của Nhavn.vn đã lên mẫu thiết kế hiện đại trong khuôn khổ 5x16m. Ngôi nhà phố 4 tầng được phân chia đầy đủ các khu vực công năng. Bố trí mặt bằng hợp lý, lối kiến trúc đơn giản nhưng ấn tượng.

Ấn tượng đầu tiên của khi nhìn vào mẫu thiết kế nhà phố 4 tầng chính là sự đơn giản, không cầu kỳ, rườm rà. Tuy nhiên điều này không có nghĩa là đơn điệu hay nhàm chán. Các kiến trúc sư đã phải bỏ ra rất nhiều công sức nghiên cứu và tạo nên thiết kế độc đáo, mang dáng vẻ hiện đại mà vẫn không bị rối rắm. Nhìn vào mặt tiền bạn sẽ cảm nhận được sự thông thoáng, cân đối. Bằng cách sử dụng cửa kính nhìn thẳng ra ban công. Với chất liệu này, ngôi nhà phố 4 tầng trở nên sang trọng, ấn tượng và hút mắt hơn rất nhiều.

Vẫn là những gam màu quen thuộc của phong cách hiện đại. Màu trắng chủ đạo mang đến vẻ đẹp sang trọng, tinh tế cho ngôi nhà. Mặt tiền nổi bật hơn với những chi tiết màu đen của cổng, khung cửa kính hay ban công. Bên cạnh đó, điểm nhấn chính là sắc nâu trầm của gỗ, một chi tiết trang trí tạo nên sự hài hòa, ấm áp cho căn nhà. Phần sảnh chính được ốp đá sang trọng thu hút mọi ánh nhìn. Trần ban công được ốp gỗ vàng nâu sang trọng, hài hòa với nền tường màu trắng. Kết hợp với sắc xanh của cây cảnh giúp cho ngôi nhà trở nên đẹp mắt hơn.
Không chỉ sở hữu vẻ ngoài sang trọng, hiện đại, mẫu nhà phố 4 tầng với đầy đủ công năng. Đáp ứng nhu cầu sử dụng của tất cả các thành viên trong gia đình. Cụ thể mặt bằng ngôi nhà được bố trí như sau.

Tầng trệt bố trí phòng khách, phòng bếp, phía sau cùng là nhà vệ sinh chung.

Tầng 2 gồm hai phòng ngủ, mỗi phòng ngủ đều có vệ sinh riêng.

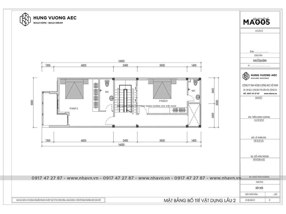
Tầng 3 bao gồm hai phòng ngủ, mỗi phòng ngủ đều có vệ sinh riêng.

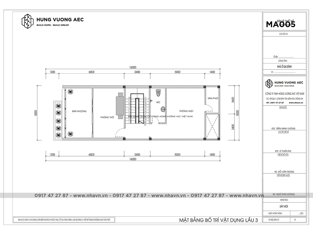
Tầng 4 được bố trí sân thượng, phòng thờ, phía sau cùng là phòng vệ sinh và khu vực giặt phơi quần áo.
Nhavn.vn có đội ngũ Kiến trúc sư, Kỹ sư tài giỏi và dày dạn kinh nghiệm trong thiết kế kiến trúc, thi công xây dựng các hạng mục công trình. Chúng tôi lấy sự hài lòng của khách hàng làm mục tiêu lớn nhất và tự tin mang đến các mẫu thiết kế phong cách cùng dịch vụ chuyên nghiệp. Hãy liên hệ ngay với Nhavn.vn để được tư vấn tốt nhất!
-NHÀ PHỐ HIỆN ĐẠI 4 TẦNG 4X18 – A052