Lượt xem: 3078
Mẫu thiết kế nhà phố đẹp 4 tầng tân cổ điển được các kiến trúc sư Nhavn.vn hướng đến một không gian sống đẳng cấp, xa hoa với các nguyên vật liệu cao cấp, các chi tiết phào chỉ mềm mại với lối kiến trúc tân cổ điển. Một thiết kế nhà phố đẹp được coi là hoàn hảo thì mẫu thiết kế đó phải có sự liên kết giữa các khối kiến trúc một cách mạch lạc, rõ ràng nhất.

| STT | Hạng mục | chi tiết | 
|---|---|---|
| 1 | Công năng sử dụng | 1 phòng khách, 1 phòng ăn, 1 phòng bếp, 4 phòng ngủ, 4 WC, phòng sinh hoạt chung, phòng gym | 
| 2 | Diện tích đất xây dựng | 5x25m | 
| 3 | Diện tích sử dụng | 410m2 | 
| 4 | Chi phí thiết kế kiến trúc | 120.000 đ/m2 | 
| 5 | Chi phí thiết kế nội thất | 100.000 đ/m2 | 
| 6 | Chi phí thi công xây dựng | Liên hệ | 
Đối với mẫu thiết kế nhà phố 4 tầng tân cổ điển này, các kiến trúc sư Nhavn.vn luôn thiết kế dựa trên yêu cầu – nhu cầu – sở thích của chủ đầu tư bên cạnh đó đáp ứng không gian sống thoải mái cho một diện tích đất dù có phần chật hẹp, lên công năng sử dụng khoa học để tạo được sự thuận tiện, tiện nghi nhất.

Với bố cục được thiết kế mạch lạc cũng như luôn sử dụng những đường nét kiến trúc khỏe khoắn, màu sắc trang nhã – hợp thời cùng với đó là thể hiện được tinh thần của lối kiến trúc tân cổ điển khi mà chúng được thể hiện thông qua hệ thống hoa văn, phào chỉ được đắp vẽ một cách tinh xảo, hệ trụ cột chắc chắn, hệ thống mũ vương miện xa hoa để tăng thêm tính thẩm mỹ cho mẫu thiết kế nhà phố đẹp. Ngoài ra, hệ thống cửa sổ, ban công,… cũng đã góp phần ghi điểm đối với chủ đầu tư bởi nó luôn mang đến một không gian sống thoáng đãng vô cùng.

Nhìn vào tổng thể, bạn sẽ thấy được sự hoành tráng, bề thế cũng như là sự đẳng cấp mà mẫu thiết kế này mang lại. Kế thừa tinh hoa và đặc trưng của lối kiến trúc tân cổ điển, mẫu nhà phố 4 tầng thể hiện một vẻ đẹp sang trọng kiều diễm với các chi tiết phào chỉ uốn lượn đầy tinh tế. Mẫu thiết kế nhà phố đẹp sử dụng các khối hình vuông vức cùng với hệ thống trụ cột chắc chắn tạo sự an toàn, bền bỉ của khối kiến trúc. Nói về công năng thì không ai có thể phủ nhận được rằng hệ trụ cột đóng một vai trò vô cùng lớn trong việc nâng đỡ khối kiến trúc ở các tầng trên

Ngoài ra, khi nhìn vào không gian mặt tiền thì chúng ta cũng thấy được chúng được thiết kế đối xứng và cân bằng. Mặt tiền ngôi nhà được trang trí bởi nhiều các chi tiết thể hiện sự cân đối một cách có chủ đích. Việc tập trung vào những đường nét mềm mại nhưng không quên đi cách bố trí hài hòa, cân xứng cho tổng thể mẫu thiết kế nhà phố đẹp. Ta có thể thấy rằng từ hệ thống các chi tiết cột, phào chỉ đều được bố trí một cách đối xứng mà không có sự nổi loạn hay ngẫu hứng. Kiến trúc tân cổ điển luôn thiên về sự chuẩn mẫu, chính xác, không lệch lạc, không chênh vênh – phá cách, mà được thể hiện được sự mềm mại, thanh thoát nhờ vào các hệ thống hoa văn sang trọng. Mỗi chi tiết được sử dụng đều thể hiện được sự tinh tế, cầu kỹ, mỹ miều. Những đường nét hoa văn mềm mại nhưng cũng vô cùng mạnh mẽ, uy quyền.
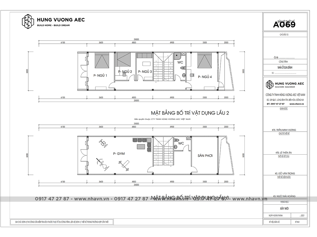
Mặt bằng công năng chi tiết của mẫu thiết kế nhà phố đẹp 4 tầng tân cổ điển bao gồm:

Tầng 1 gồm gara và phòng kho.
Tầng 2 gồm 01 phòng khách và phòng bếp.

Tầng 3 gồm 04 phòng ngủ.
Tầng 4 gồm 01 phòng gym, sân phơi.
Các kiến trúc sư tại Nhavn.vn có nhiều kinh nghiệm trong lĩnh vực thiết kế thi công nhà ở với kiến thức chuyên môn và gu thẩm mỹ nghệ thuật cao cam kết sẽ sáng tạo hết mình mang lại không gian sống lý tưởng nhất cho bạn và gia đình.