Lượt xem: 5232
Không thể phủ nhận những mẫu thiết kế nhà ống hiện đại, nhà ống mái bằng, nhà ống mái tôn hay nhà mái thái đẹp đã và đang mang đến những hiệu ứng thẩm mĩ không gian tinh tế và khoa học cho những mẫu nhà phố. Khi mà nhu cầu cuộc sống ngày càng tăng thì những nhu cầu về ăn và ở càng cao. Thiết kế nhà không đơn giản chỉ cần bền để sử dụng được lâu mà quan trọng hơn đó là phải có tính thẩm mĩ cao và công năng sử dụng phải khoa học, thoải mái.

STT Hạng mục chi tiết
1 Công năng sử dụng 1 phòng khách, 1 phòng ăn, 1 phòng bếp, 3 phòng ngủ, 2 WC, phòng làm việc
2 Diện tích đất xây dựng 3.3x20m
3 Diện tích sử dụng 138m2
4 Chi phí thiết kế kiến trúc 120.000 đ/m2
5 Chi phí thiết kế nội thất 100.000 đ/m2
6 Chi phí thi công xây dựng Liên hệ
Để có phương án thiết kế công trình hiện đại mái thái đơn giản, kiến trúc sư đã đến hiện trạng để khảo sát, từ đó lên phương án thiết kế thi công công trình sát thực tế nhất. Phối cảnh mặt tiền công trình kiến trúc sư có thể cân nhắc và lên phương án thiết kế bố trí sao cho khoa học nhất, thể hiện không gian sống hiện đại nhưng đơn giản không quá cầu kỳ và đồ sộ như những mẫu nhà ống 2 tầng diện tích lớn.
Thiết kế nhà ống 2 tầng mái thái hiện đại được kiến trúc sư triển khai theo phong cách có sự pha trộn giữa hiện đại và có chút yếu tố nhẹ nhàng của phong cách tân cổ điển. Kiến trúc mái thái luôn đi cùng với thiết kế kiến trúc trụ cột, tuy nhiên kết cấu và trang trí bên ngoài của công trình đã được thiết kế giản lược.

Thay vì những trụ cột cầu kỳ với những chi tiết đường gờ, phào chỉ phức tạp, chúng tôi chú trọng tập trung vào việc thiết kế hình khối trụ với 2 khối hình học chính là hình tròn và hình vuông. Phần chân trụ thiết kế trang trí thêm những đường gờ nhẹ, phần thân trụ cột để trơn. Chính sự giản lược này giúp cho không gian phối cảnh mặt tiền đơn giản hơn rất nhiều. Chính sự đơn giản này có thể giúp cho mẫu thiết kế nhà trông rộng và cao hơn.

Khối ban công được đổ đua khá rộng, tuy nhiên có hệ thống trụ cột chịu lực cân bằng cho nên mẫu thiết kế công trình có sự cân đối đồng đều và phân khối khá rõ nét. Thiết kế kiến trúc mái thái hiện đại màu xanh với khối đua rộng cùng thiết kế độ dốc cao đi cùng với lan can sắt tròn phun sơn tĩnh điện tạo cho mẫu thiết kế công trình có sự bề thế, vững chắc và vô cùng tiện nghi. Hình khối công trình thể hiện sự kiên cố bền vững, tính thẩm mĩ lại được thể hiện rõ nét trong việc thiết kế và phối màu ngoại thất công trình. Màu xanh của mái thái đi cùng với màu trắng và màu đen, thiết kế màu gạch phía sân trước thể hiện sự ăn khớp theo đúng cấp độ và bánh xe màu sắc.
Nhìn từ xa mẫu nhà mái thái đep không chỉ toát lên vẻ đẹp kiêu sa, thiết kế tinh tế mà quan trọng hơn khẳng định mẫu nhà ống 2 tầng đơn giản mà đẹp không thua kém bất cứ một mẫu nhà 2 tầng mái thái hiện đại nào khác.

Từ cổng chính vô là phòng khách, không gian tiếp bên trong là phòng bếp và bàn ăn. Từ bàn ăn tạo thẳng một hành lang di chuyển thẳng đến nhà vệ sinh chung tầng 1 và phòng ngủ 1. Thang được bố trí giữa nhà để đảm bảo thông thoáng.

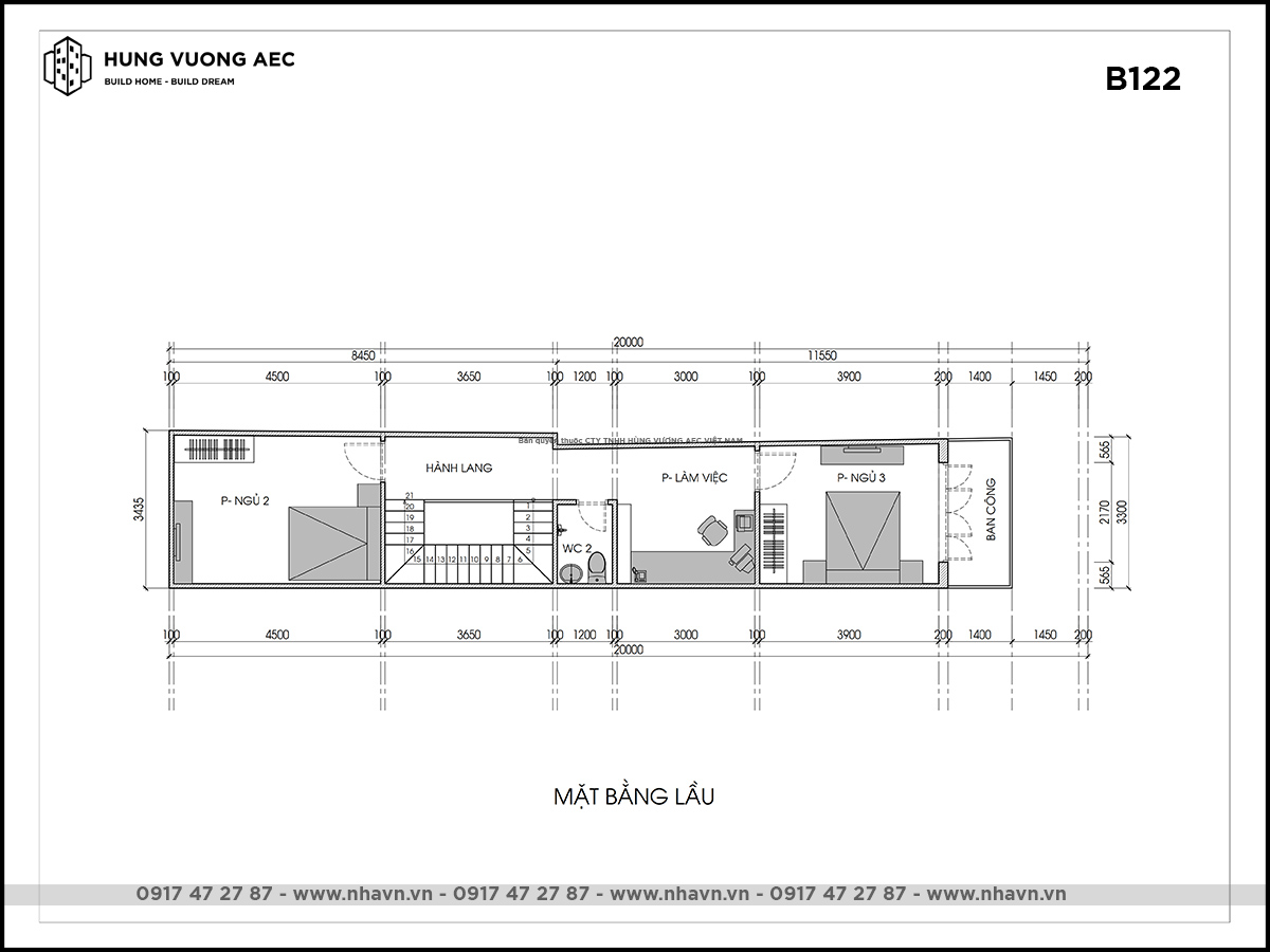
Tầng 2 thiết kế 1 phòng ngủ chính hướng ra ban công . Tiếp giáp bên trong công trình là phòng ngủ 2 phía sau. Phòng làm việc bố trí giữa hai phòng ngủ, và 1 vệ sinh chung.
Mẫu mẫu nhà mái thái đep 2 tầng đơn giản hiện đại được xem là mẫu thiết kế nhà có nhiều ý tưởng thiết kế cho các chủ đầu tư khác. Nếu như bạn yêu thích mẫu thiết kế nhà ống 2 tầng hiện đại, hãy liên hệ ngay với kiến trúc sư của chúng tôi để được tư vấn chi tiết và khoa học hơn cho công trình của gia đình.