Lượt xem: 4724
Nhà mái thái là dạng được các gia đình việt xây dựng nhiều nhất ở các vùng nông thôn có khu đất rộng. Nhavn.vn cũng đã giới thiệu rất nhiều mẫu nhà đẹp từ trước tới nay và hôm nay sẽ cung cấp thêm cho các gia đình tham khảo thêm một mẫu thiết kế biệt thự 2 tầng mái thái với diện tích 8x13m. Kiến trúc hình khối cân đối có nhiều mái đan xen, diện tích xây dựng chỉ 208m2 nhằm tiết kiệm chi phí xây dựng.

STT Hạng mục chi tiết
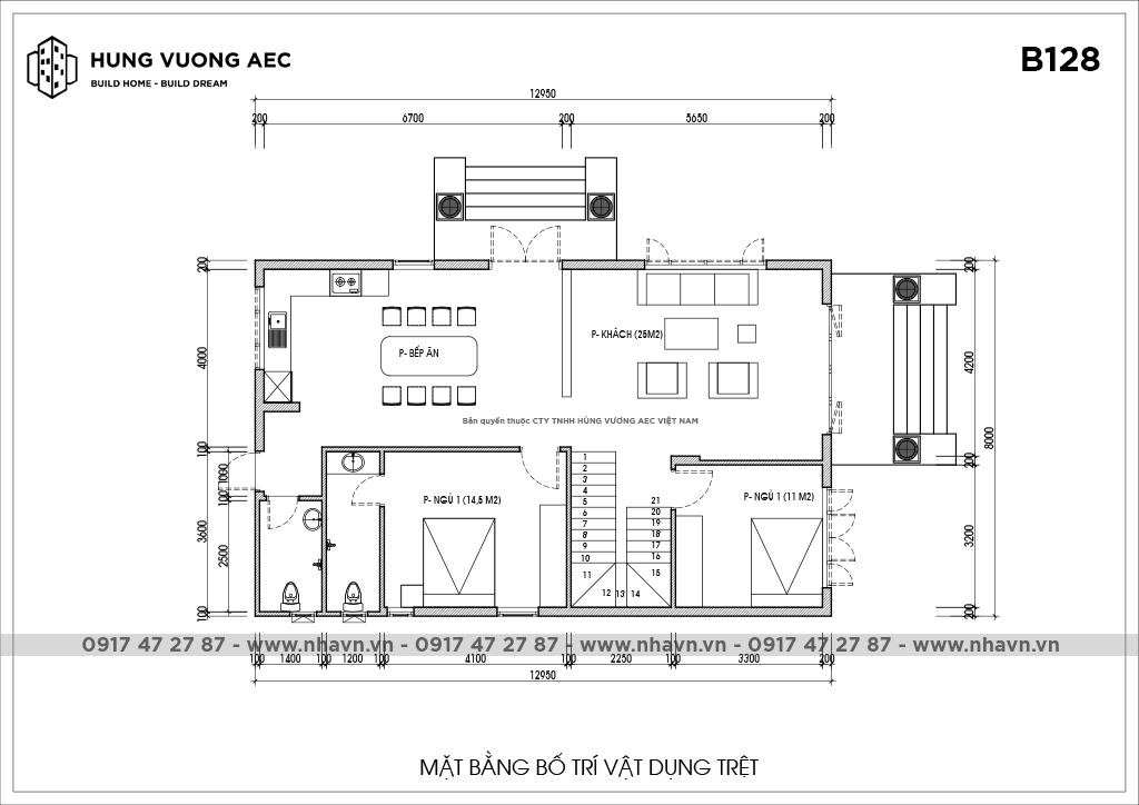
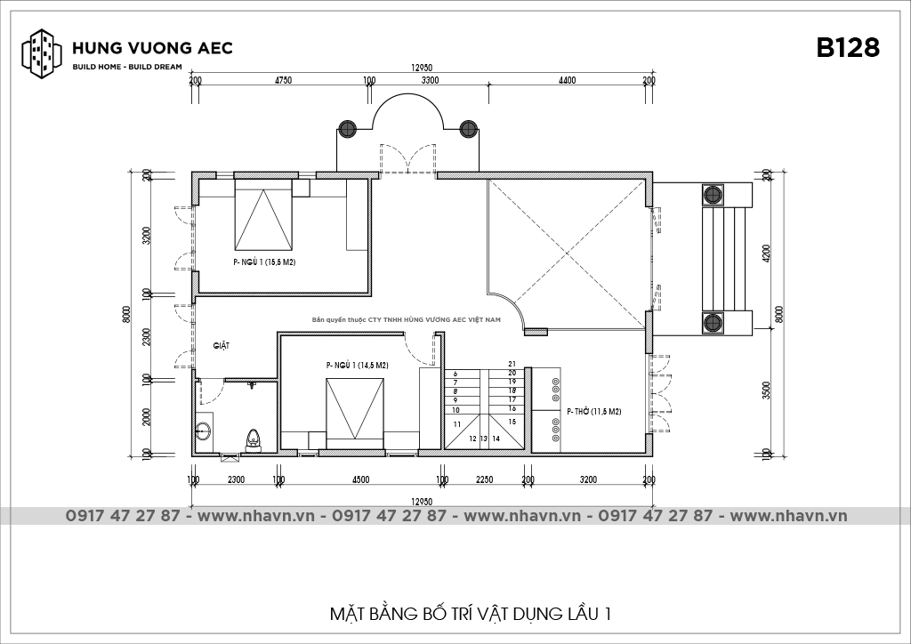
1 Công năng sử dụng 1 phòng khách, 1 phòng ăn, 1 phòng bếp, 4 phòng ngủ, 3 WC, phòng thờ.
2 Diện tích đất xây dựng 8x13m
3 Diện tích sử dụng 208m2
4 Chi phí thiết kế kiến trúc 120.000 đ/m2
5 Chi phí thiết kế nội thất 100.000 đ/m2
6 Chi phí thi công xây dựng Liên hệ
Điều mà chủ đầu tư chú trọng hơn hết đó chính là chức năng không gian, trong đó phòng ngủ và phòng bếp được quan tâm nhiều nhất. Không gian phòng ngủ là nơi nghỉ ngơi nên cần được thiết kế yên bình và thoáng mát. Phòng bếp là khu vực sinh hoạt chung của gia đình nhiều nhất, đồng thời là nơi nội trợ hàng ngày của vợ, cho nên ưu tiên về thiết kế cho các không gian chức năng này.

Mẫu thiết kế nhà phố sở hữu những hình khối vuông hình chữ nhật đơn giản nhưng lại khá ấn tượng trong tổng thể mặt tiền. Để tạo nên điểm ấn tượng, kiến trúc sư thiết kế bao trùm sân trước bằng hình khối kiên cố, cùng hệ thống cửa cổng chính bằng sắt phun sơn tĩnh điện, gạch thông gió và bồn tiểu cảnh trước nhà tạo sự thu hút khá mạnh mẽ và có sức lôi cuốn đặc biệt.

Bên trong nhà biệt thự mái thái 4 phòng ngủ được bố trí khoa học phù hợp nhu cầu và ý tưởng của gia đình, đồng thời tuân thủ phong thủy xây nhà mang lại sự an tâm.

Các không gian được thiết kế diện tích vừa đủ sinh hoạt, không nhỏ quá cũng không lớn quá. Phòng khách kê bộ bàn ghế gỗ tự nhiên, phòng bếp ăn thông với phòng khách và được ngăn cách bởi vách tivi thoáng.

Phòng thờ thiết kế góc lồi ở mặt tiền chính, phía sau là phòng ngủ ông bà, tiếp đến là 1 phòng ngủ khép kín dành cho vợ chồng ngăn cách bởi giếng trời kết hợp nhà vệ sinh khép kín, phòng ngủ con được thiết kế phía sau bếp. Nhà vệ sinh chung và khu giặt phơi được được bố trí ở góc cuối nhà có cửa hậu ra vườn sau.
Để có mẫu thiết kế nhà đẹp, bao gồm rất nhiều yếu tố, tuy nhiên đóng vài trò then chốt chính là việc lựa chọn đơn vị thiết kế uy tín. Một bản vẽ thiết kế nhà đẹp hoàn hảo là khi nhận được sự đồng thuận, thống nhất ý tưởng giữa chủ nhà và kiến trúc sư. Nhavn.vn với nhiều năm kinh nghiệm trong lĩnh vực thiết kế thi công nhà đẹp trên toàn quốc. Đội ngũ kiến trúc sư, kỹ sư chuyên môn và thẩm mỹ cao cam kết sẽ sáng tạo hết mình mang lại không gian sống lý tưởng cho bạn và gia đình.
-BIỆT THỰ MÁI THÁI 2 TẦNG 6,8X14,5 – B120