Lượt xem: 3727
Sở hữu khuôn đất rộng rãi ngày nay là niềm mơ ước của nhiều người, tuy nhiên sẽ càng tăng giá trị bội phần khi nói sở hữu một ngôi nhà đẹp. Ngôi nhà đó không cần cầu kỳ, cao sang nhiều tầng mà chỉ cần một thiết kế biệt thự vườn mái nhật đẹp, đơn giản, gần gũi và thương yêu cũng đủ hạ gục bất cứ ai một lần chiêm ngưỡng.

STT Hạng mục chi tiết
1 Công năng sử dụng 1 phòng khách, 1 phòng ăn, 1 phòng bếp, 3 phòng ngủ, 2 WC.
2 Diện tích đất xây dựng 14x21m
3 Diện tích sử dụng 292m2
4 Chi phí thiết kế kiến trúc 120.000 đ/m2
5 Chi phí thiết kế nội thất 100.000 đ/m2
6 Chi phí thi công xây dựng Liên hệ
Mẫu thiết kế biệt thự nhà vườn 1 tầng lầu 292m2 với không gian rộng, thoáng xây dựng ở quê luôn mang lại cảm giác thanh bình, yên ả giúp cải thiện sức khỏe và nâng cao chất lượng cuộc sống. Bên cạnh đó, với thiết kế nội thất đẹp đến từng chi tiết nhỏ, tiện nghi, sử dụng toàn bộ đồ nội thất, trần sàn gỗ cao cấp càng làm tôn thêm giá trị của ngôi nhà và khẳng định đẳng cấp cho gia chủ. Sau đây, hãy cùng chúng tôi tìm hiểu phương án thiết kế mẫu bản vẽ nhà cấp 4 nhà vườn đẹp đến nao lòng này bạn nhé!

Mẫu nhà vườn 1 tầng lầu sử dụng là kiến trúc hiện đại đơn giản, khỏe khoắn, trẻ trung và gần gũi với thiên nhiên mang lại sự thoải mái, và trọn vẹn đến từng đường nét. Với phong cách kiến trúc này đã nhận được sự yêu thích của các thành viên trong gia đình chủ đầu tư. Ngôi nhà được thiết kế với hình dạng khá vuông vắn, ấn tượng, chắc chắn và bề thế.
Không những vậy, công năng được sắp xếp khá khoa học và tiện nghi bậc nhất. Với thiết kế vuông vắn đã giúp cho việc trang trí kiến trúc biệt thự 1 tầng và việc bố trí công năng sử dụng, sắp xếp phòng ốc, hay kê các đồ nội thất ở trong ngôi nhà trở nên khoa học, hợp lý và hấp dẫn hơn đối với tổng thể không gian xây dựng của công trình đó.

Mẫu biệt thự 1 tầng với diện tích 292m2 vuông vắn được thiết kế với 2 mặt tiền có kích thước khá rộng. Đặc biệt, do lợi thế khu đất vườn rộng rãi, chính vì thế mà việc bố trí và thiết kế cho ngôi nhà 2 mặt tiền để tận dụng được tối đa lợi thế của nhà vườn, để ngôi nhà tiếp xúc với thiên nhiên được nhiều nhất từ đó mang lại sự thoáng đãng, rộng rãi và gần gũi thiên nhiên hơn bao giờ hết.

Kiến trúc hiện đại cũng được thể hiện ở hệ thống cột hình dáng khỏe khoắn, năng động và vững trãi bề thế. Hệ cột sử dụng trong ngôi biệt thự được xây bằng gạch, hoặc đổ bê tông tùy thuộc theo những vị trí yêu cầu chịu lực, hoặc chịu tải trọng trong công trình. Hệ thống cột vuông ở sảnh chính và sảnh phụ được ốp đá kẻ màu nâu đất và giả gỗ kết hợp với nhau để đem lại cho ngôi nhà sự thân thuộc và mới mẻ.
Vật liệu đá được sử dụng ốp cho ngoại thất ngôi biệt thự 1 tầng nổi bật với đặc trưng kiến trúc hiện đại, chất liệu đá cao cấp, kết hợp cùng với màu sắc nâu đất, hiện rõ ràng cả vân đá mới mẻ lên mang lại cho thiết kế ngoại thất sự chắc chắn và tinh tế đến chi tiết đường nét. Bên cạnh đó vật liệu đá cũng khiến cho các cột nhà trở nên đẹp, sáng và hiện đại hơn, bền bỉ và chắc chắn hơn.

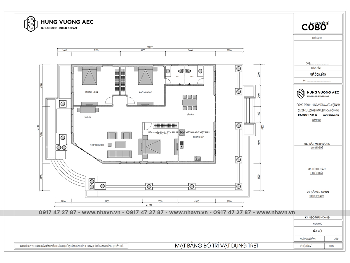
Mặt bằng công năng của mẫu biệt thự 1 tầng 292m2 được sử dụng hết sức khoa học, tiện nghỉ và chắc chắn trong bố cục các phòng chức năng, cũng như đảm bảo được nhu cầu sử dụng của ngôi nhà. Sở dĩ diện tích sàn tương đối lớn, gia đình lại muốn đặt gara bên ngoài mặt bằng công năng sử dụng phía đối diện cổng chính của mặt tiền ngôi nhà.
Điều này càng khiến cho diện tích sàn tầng 1 trở nên rộng rãi và thoáng mát hơn. Đặc biệt, với những không gian mang đậm tính kết nối, mới mẻ và rộng rãi thì ngôi nhà cũng được đánh giá cao với giá trị thẩm mỹ, cũng như sự trọn vẹn trong bố cục kiến trúc của công trình. Ngôi nhà cấp 4 với 3 phòng ngủ được chủ nhà đánh giá cao bởi cách sắp xếp và bố trí mặt bằng công năng sử dụng.

Các phòng ốc, các không gian chức năng sử dụng trong ngôi nhà được bố cục vị trí, diện tích phù hợp với tổng thể nhu cầu sử dụng. Không gian phòng thờ được đặt ở khu vực khá yên tĩnh của ngôi nhà. Các phòng như phòng khách, phòng ngủ.. các không gian này được đặt một cách rộng rãi, đem đến sự trọn vẹn và tinh tế, rộng rãi cho bố cục không gian nội thất của ngôi nhà.
Toàn bộ hồ sơ thiết kế công năng các phòng và kiến trúc đều được tư vấn hợp theo Phong thủy và tuổi của chủ đầu tư. Kích thước các phòng, chiều cao nhà và kích thước cửa đều theo kích thước phong thủy.
Các kiến trúc sư tại Nhavn.vn có nhiều kinh nghiệm trong lĩnh vực thiết kế thi công nhà ở với kiến thức chuyên môn và gu thẩm mỹ nghệ thuật cao cam kết sẽ sáng tạo hết mình mang lại không gian sống lý tưởng nhất cho bạn và gia đình.
-NHÀ MÁI NHẬT 1 TẦNG 4 PHÒNG NGỦ 12X13 – C079