Lượt xem: 3230
Hiện nay, việc thiết kế biệt thự mái thái 1 tầng là lựa chọn được đưa lên hàng đầu của những gia đình sở hữu khuôn viên đất rộng. Trong đó, những mẫu biệt thự 1 tầng 4 phòng ngủ với sự thiết kế tinh tế kết hợp từ nội thất ngoại thất cùng một phương án bố trí không gian sinh hoạt thoải mái và tiện nghi là một sự lựa chọn hàng đầu. Cũng chính vì thế, xu hướng xây dựng nhà biệt thự 1 tầng ngày càng phát triển kéo theo sự ra đời của hàng trăm các bản vẽ thiết kế kiến trúc nhằm đáp ứng nhu cầu của đông đảo các chủ đầu tư trên khắp các tỉnh thành của cả nước.

STT Hạng mục chi tiết
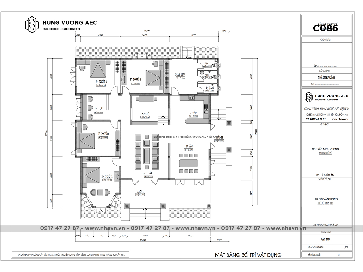
1 Công năng sử dụng 1 phòng khách, 1 phòng ăn, 1 phòng bếp, 4 phòng ngủ, 2 WC, phòng thờ, phòng học
2 Diện tích đất xây dựng 17x16m
3 Diện tích sử dụng 277m2
4 Chi phí thiết kế kiến trúc 120.000 đ/m2
5 Chi phí thiết kế nội thất 100.000 đ/m2
6 Chi phí thi công xây dựng Liên hệ
Bài viết hôm nay, Nhavn.vn xin được giới thiệu đến quý khách hàng và bạn đọc mẫu Biệt thự mái thái 1 tầng tân cổ điển diện tích 277m2. Ngôi biệt thự 1 tầng tân cổ điển không chỉ đáp ứng yêu cầu sinh hoạt của chủ đầu tư về công năng, phong thủy mà còn tạo nên một không gian thư giãn thư thái, thoải mái và gần gũi với thiên nhiên cho từng thành viên trong gia đình.

Mang phong cách tân cổ điển chủ đạo, tuy nhiên kiến trúc ngôi biệt thự mái thái 1 tầng lấy sự đơn giản làm nét kiến trúc chủ đạo suốt toàn bộ thiết kế. Vẻ đẹp của sự đơn giản luôn toát lên được nét sang trọng và tinh tế cuốn hút mọi ánh nhìn. Cũng vì thế, kiểu kiến trúc đơn giản này đang trở thành xu hướng, được nhiều người yêu thích đặc biệt là trong các mẫu biệt thự 1 tầng.

Sự đơn giản của tổng thể công trình thể hiện trước hết ở sự kết hợp màu sắc vô cùng hài hòa, tinh tế và hợp lý, toát lên nét đẹp sang trọng và mới lạ của phong cách tân cổ điển. Với gam màu trắng chủ đạo, mẫu nhà biệt thự 1 tầng này trở nên cuốn hút hơn qua sắc màu xám xanh của hệ mái thái. Nếu như sắc màu trắng giúp công trình thêm sang trọng và hiện đại thì gam màu xanh của hệ mái giúp mẫu nhà 1 tầng trở nên ấm áp, gần gũi và tạo được ấn tượng mới lại cho người xem.
Hệ thống mái thái được thiết kế đăng đối đã giúp cho tổng thể căn nhà trở nên vô cùng hoàn hảo. Mái thái được kết cấu hoàn hảo và có chi phí xây dựng cao hơn hệ mái bằng nhưng không vì chi phí cao mà các chủ đầu tư không lựa chọn. Mà khi lựa chọn, các chủ đầu tư lại ưu tiên về các ưu điểm, chất lượng hơn là giá cả bởi không có gì tốt ngoài chất lượng cả. Hệ mái thái mang đến sự thông thoáng cho phần nóc nhà giúp giải thoát các hung khí, tà khí tích tụ trên nóc nhà. Nhờ hệ mái đăng đối mà không gian nội thất bên trong ngôi biệt thự diện tích 306m2 này được bảo vệ khỏi những tác động xấu của thời tiết như là mưa, nắng, gió, bão. Hệ thống mái được lớp từ những viên ngói to dạng sóng giúp tôn lên vẻ sang trọng hơn.
Nội thất phong cách tân cổ điển thực sự đem lại cho ngôi biệt thự một không gian sang trọng và rất tinh tế, một sự hấp dẫn mà ít người khó chối bỏ mơ ước để thực hiện nên công trình nguy nga với phong cách sống hoàn hảo, tiện nghi nhất hiện nay.

Tiếp theo là phương án thiết kế nội thất phòng bếp ăn dành cho biệt thự nhà vườn tân cổ điển của gia đình, căn biệt thự mini 1 tầng mang phong cách tân cổ điển mà Nhavn.vn muốn mang đến cho các bạn là một trong những căn biệt thự kiểu mẫu, mang phong cách thiết kế nổi bật.


Việc trang trí và thiết kế các mẫu nội thất cho biệt thự mái thái là điểm nhấn làm nên sự thành công lớn của các kiến trúc sư Nhavn.vn thực hiện nên. Với xu hướng thiết kế này những mẫu nội thất cho biệt thự sẽ là tâm điểm được nhiều Khách hàng hết sức ưa chuộng và lựa chọn thi công cho nơi nghỉ ngơi của mình được hoàn hảo hơn bao giờ hết.




















Bên cạnh vẻ đẹp của kiến trúc ngoại thất thì mẫu nhà biệt thự còn nổi bật với hệ thống sân vườn hoàn hảo khi có sự kết hợp giữa thiên nhiên và nét đẹp của lối kiến trúc hiện đại. Sân vườn được thiết kế với khu tiểu cảnh đẹp mắt tạo nên một không gian xanh lành mạnh và trong lành. Đây sẽ là nơi để cả gia đình cùng thả hồn vào thiên nhiên cũng như chơi đùa cùng với nhau.
Khi thiết kế thì điều các kiến trúc sư Nhavn.vn đã đặc biệt chú ý là không gian sinh hoạt chung rộng rãi và thoáng mát nơi mà toàn bộ gia đình có thể giải trí sau một ngày học tập và làm việc vất vả. Cùng tham khảo phương án bố trí công năng ngôi nhà qua bản vẽ chi tiết dưới đây:
Toàn bộ hồ sơ thiết kế công năng các phòng và kiến trúc đều được tư vấn hợp theo Phong thủy và tuổi của chủ đầu tư. Kích thước các phòng, chiều cao nhà và kích thước cửa đều theo kích thước phong thủy.
Các kiến trúc sư tại Nhavn.vn có nhiều kinh nghiệm trong lĩnh vực thiết kế thi công nhà ở với kiến thức chuyên môn và gu thẩm mỹ nghệ thuật cao cam kết sẽ sáng tạo hết mình mang lại không gian sống lý tưởng nhất cho bạn và gia đình.