Lượt xem: 3030
Thiết kế nhà biệt thự sân vườn đã được các kiến trúc sư Nhavn.vn hoàn thành và bàn giao cho một vị chủ đầu tư với diện tích đất rộng 11x21m được thiết kế theo phong cách kiến trúc hiện đại mái ngói độc đáo kết hợp với sân vườn rộng rãi và thoáng mát mang đến cho gia chủ một không gian sống thoáng mát, gần gũi với không gian thiên nhiên.

STT Hạng mục chi tiết
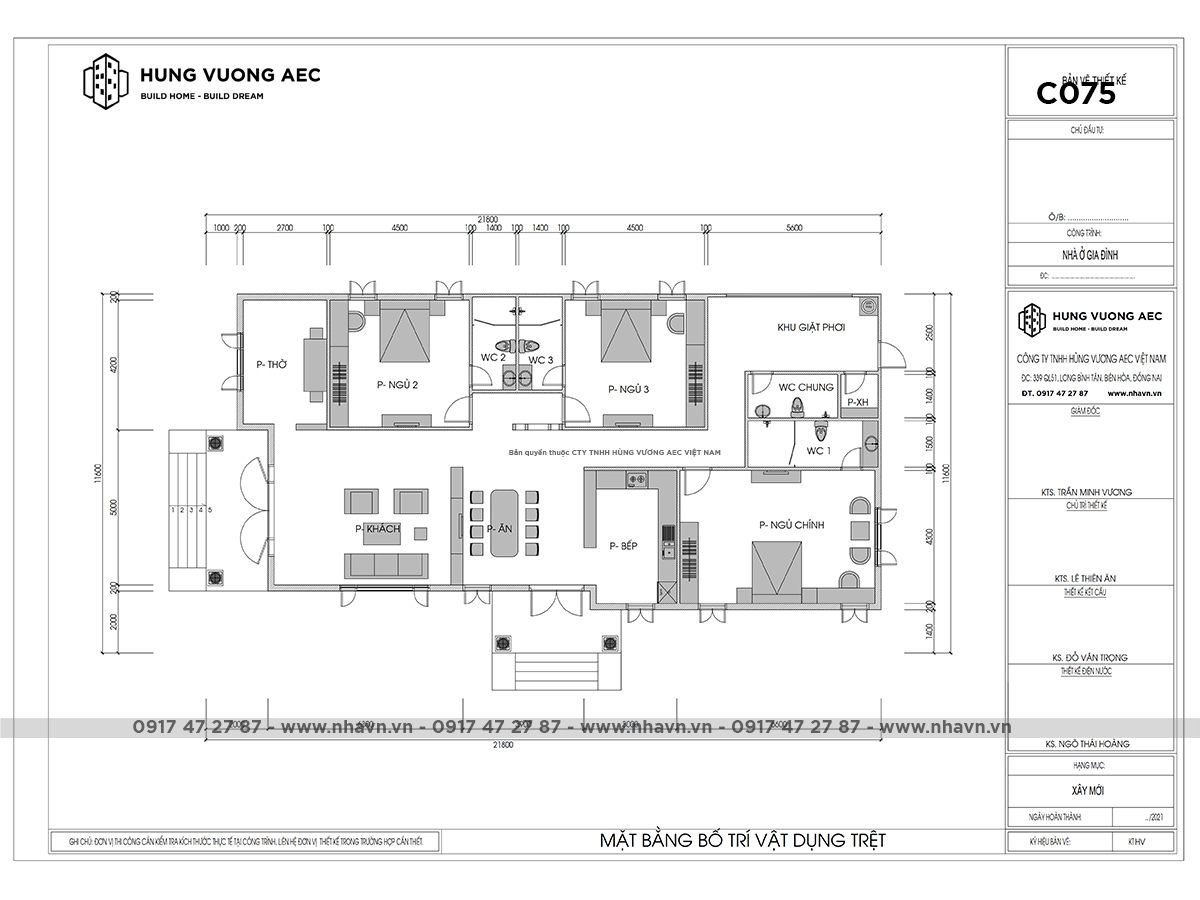
1 Công năng sử dụng 1 phòng khách, 1 phòng ăn, 1 phòng bếp, 3 phòng ngủ, 4 WC, phòng thờ
2 Diện tích đất xây dựng 11x21m
3 Diện tích sử dụng 253m2
4 Chi phí thiết kế kiến trúc 120.000 đ/m2
5 Chi phí thiết kế nội thất 100.000 đ/m2
6 Chi phí thi công xây dựng Liên hệ
Mẫu nhà biệt thự đẹp phải đảm bảo được hình khối kiên cố, khỏe khoắn, ngoại thất đơn giản, tươi sáng. Thiết kế mặt tiền rộng và thoáng để có thể đón nhận được nhiều ánh sáng tự nhiên và gió thông thoáng cho các không gian sinh hoạt chung bên trong nhà.

Công năng sử dụng bao gồm 1 phòng ngủ Master, 2 phòng ngủ cho các bé, 1 phòng khách, 1 phòng bếp + ăn, phòng thờ. Mặt bằng đảm bảo sự thông thoáng và thoải mái trong quá trình sinh hoạt cũng như nghỉ ngơi, thư giãn. Có sự kết nối giữa kiên trúc mặt tiền, sân vườn và nội thất bên trong nhà, có tính đồng nhất, đồng bộ với nhau.
Mẫu thiết kế biệt thự như đã nói trên được thiết kế theo phong cách kiến trúc hiện đại, đơn giản, loại bỏ đi tất cả những chi tiết trang trí cầu kỳ của kiểu dáng kiến trúc cổ điển và tân cổ điển, mà thay vào đó là hệ thống trụ cột vuông vắn, cân đối tạo nên nét đẹp khỏe khắn, vững chãi. Cùng với hệ thống phào, chỉ được thiết kế tối giản nhưng mang đến một sức hút vô cùng mạnh mẽ cho công trình.

Kiến trúc ngoại thất được sử dụng tone màu màu trắng – xám làm chủ đạo, kết hợp hòa quyện với nhau làm nên một không gian ngoại thất vô cùng đẹp mắt và lôi cuốn người xem. Cùng với đó, kẻ ron kết hợp với đá tự nhiên tại hệ thống trụ cột và sơn giả gỗ nhấn viền cổ mái giúp tạo nên điểm nhấn ấn tượng, vừa thể hiện được vẻ đẹp khỏe khắn vừa bảo vệ cột khỏi những tác động từ môi trường đem lại.
Bên cạnh đó, mẫu biệt thự vườn sở hữu hệ thống sân vườn rộng rãi và thoáng mát, việc sử dụng cửa chính, cửa sổ kính cường lực khung nhôm là một trong những chất liệu được sử dụng phổ biến cho những công trình tại nông thôn hay cả thành phố hiện nay đều mang lại những lợi ích to lớn cho gia chủ trong quá trình sinh hoạt.
Cửa kính đem đến một không gian sống thoáng mát và rộng rãi so với diện tích thật, lấy sáng và đón gió từ bên ngoài vào các phòng, làm cho không gian nội thất luôn thông thoáng và mát mẻ, vừa tăng thêm nét đẹp của kiến trúc hiện đại, sang trọng mà cửa kính còn có giá thành vừa phải, dễ lau chùi và thi công nhanh chóng.

Kết hợp cùng với nguyên vật liệu cửa kính, tone màu trắng – xám tươi sáng, hệ thống mái ngói cùng các chậu cây hoa lá tại không gian mặt tiền, tất cả được hòa quyện vào với nhau tạo nên một mẫu nhà trệt đẹp đầy tinh tế và hấp dẫn. Với hệ thống mái ngói có kết cấu vững chãi, có độ bền chắc chắn và có độ dốc lớn vừa giúp cho việc thoát nước, chống ẩm mốc và chống thấm hiệu quả, mái ngói còn đem lại sự bề thế – khang trang cho tổng thể kiến trúc.
Mặt bằng công năng sử dụng mẫu nhà cấp 4 được bố trí khá đơn giản với các công năng chính là phòng khách đặt ngay cạnh sảnh chính, phía trong là phòng bếp và ăn. Bếp + khu vực ăn thiết kế tiếp giáp và được ngăn cách với phòng khách bằng vách ngăn chất liệu gỗ nhưng vẫn đảm bảo sự thông thoáng, kết nối giữa các phòng chức năng với nhau. Phòng ăn thiết kế ngay cạnh sảnh phụ, đảm nhận sự lưu thông khí giữa nội thất và không gian sân vườn.

Phòng ngủ Master có diện tích rộng, bố trí nhà vệ sinh khép kín, đáp ứng nhu cầu sinh hoạt riêng cho vợ chồng. Phòng thờ được đặt bên góc sảnh phụ, vừa có được không gian uy nghiêm, riêng biệt, vừa có được sự kết nối với không gian thiên nhiên bằng hệ thống cửa kính rộng, góp phần lấy sáng và đón gió cho căn phòng. Cuối cùng là phòng vệ sinh chung và khu vực giặt.
Mẫu nhà trệt đẹp 11x21m hứa hẹn sẽ là một trong những sự lựa chọn hoàn hảo và tốt nhất cho những ai yêu thích và mong muốn thiết kế biệt thự kết hợp sân vườn thoáng mát hiện nay. Mọi chi tiết xin liên hệ đến Nhavn.vn.vn để được hỗ trợ tư vấn miễn phí nhé!
-NHÀ CẤP 4 MÁI THÁI 2 PHÒNG NGỦ 7X20 – C077