Lượt xem: 3990
Khi tuổi già đã cận kề, con người nằm trên sườn dốc bên kia của cuộc đời, ta luôn cần một chốn nghỉ ngơi để an dưỡng thể xác cũng như tinh thần. Và không có gì quý hơn là những mảng xanh của tự nhiên, khí trời trong lành của vùng quê. Những ngôi biệt thự vườn ở quê với lối kiến trúc châu Âu, đã lột tả vẻ đẹp tinh tế, sang trọng và khẳng định đẳng cấp của gia chủ. Chính vì thế, hôm nay nhavn.vn xin gửi đến bạn đọc một trong những mẫu biệt thự vườn do chúng tôi thiết kế, với thiết kế hiện đại cùng với công năng sử dụng tối ưu cho mọi thành viên trong gia đính, nhất là nhu cầu nghỉ dưỡng.

STT Hạng mục chi tiết
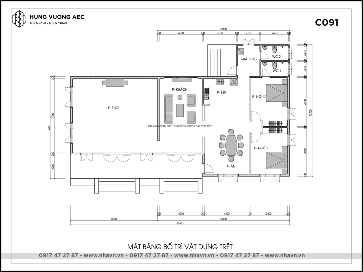
1 Công năng sử dụng 1 phòng khách, 1 phòng ăn, 1 phòng bếp, 2 phòng ngủ, 2 WC, phòng thờ
2 Diện tích đất xây dựng 12.4x20.6m
3 Diện tích sử dụng 256m2
4 Chi phí thiết kế kiến trúc 120.000 đ/m2
5 Chi phí thiết kế nội thất 100.000 đ/m2
6 Chi phí thi công xây dựng Liên hệ
Mẫu biệt thự trệt đẹp kiểu bán cổ điển đặc biệt là kiến trúc mái thái được xây dựng trên diện tích 12x20m. Mẫu thiết kế biệt thự nhà vườn này nhận được nhiều ý khen ngợi bởi lối thiết kế bán cổ điển gần gũi với thiên nhiên.

Cách phối cảnh biệt thự trệt nhà vườn đẹp thoáng mát.

Phong cách kiến trúc biệt thự trệt mái thái được khá là nhiều người quan tâm nhất hiện nay.


Cho đến nay, những ngôi nhà phố được xây dựng lên quá nhiều làm cho người ta quá nhàm chán, hoặc có những ước mơ thiết kế biệt thự vườn nhưng kinh phí lại không đủ để thiết kế thi công biệt thự, chính vì vậy hiểu được nhu cầu đó của nhiều chủ đầu tư Công ty đã và không ngừng ngại thay đổi quan điểm của mình đó là đặt mình vào tâm lý của khách hàng, thông cảm, thấu hiểu và chuyên về thiết kế biệt thự trệt, nhà cấp 4 giá rẻ nhiều hơn!
Đây là mẫu biệt thự trệt được quý khách xem và đánh giá, được khá là nhiều lời khen.
-NHÀ BIỆT THỰ MÁI THÁI 1 TẦNG 4 PHÒNG NGỦ 17X18 – C086