Lượt xem: 5208
Hiện nay khi mà xã hội ngày càng phát triển thì nhu cầu của con người ngày càng cao hơn. Nhà không còn chỉ là nơi dùng để che mưa, che nắng mà nó còn thể hiện sự đẳng cấp của gia chủ. Những mẫu nhà phố hiện đại 3 tầng với kiến trúc đơn giản, tinh tế, mặt bằng công năng khoa học, đáp ứng được nhu cầu sử dụng đông thành viên, là một giải pháp tối ưu được nhiều gia đình hiện nay lựa chọn.

STT Hạng mục chi tiết
1 Công năng sử dụng 1 phòng khách, 1 phòng ăn, 1 phòng bếp, 2 phòng ngủ, 3 WC, kho
2 Diện tích đất xây dựng 6x13.5m
3 Diện tích sử dụng 232m2
4 Chi phí thiết kế kiến trúc 120.000 đ/m2
5 Chi phí thiết kế nội thất 100.000 đ/m2
6 Chi phí thi công xây dựng Liên hệ
Trong bài viết hôm nay, chúng tôi gửi đến các bạn cùng khám phá mẫu thiết kế nhà phố hiện đại 3 tầng đẹp, hy vọng sẽ giúp ích cho các bạn có thêm những ý tưởng để hoàn thiện phương án thi công nhà phố trong tương lai của gia đình. Qua trao đổi với chủ đầu tư, kiến trúc sư thiết kế kiến trúc mặt tiền đơn giản, sử dụng tông màu tươi sáng, trẻ trung, nhưng vẫn toát lên sự thanh thoáng và sang trọng. Đặc biệt chú ý đến việc lấy sáng và đón nhận dòng lưu thông khí vào bên trong nhà, đảm bảo sự mát mẻ, thông thoáng cho toàn bộ công trình.

Việc bố trí mặt tiền cho đến mặt bằng công năng đều được đưa cây xanh vào, vừa mang đến yếu tố thẩm mỹ, vừa đem lại sự gần gũi thiên nhiên là những yêu cầu của chủ đầu tư chú trọng đến. Mẫu nhà phố hiện đại 3 tầng tạo ấn tượng mạnh mẽ với người xem bởi những đường nét khỏe khoắn và uy nghi. Ngôi nhà được thiết kế theo phong cách hiện đại, đơn giản với trắng chủ đạo kết hợp cùng màu của vật liệu trang trí, cây cảnh tạo một không gian mặt tiền với nhiều điểm nhấn đặc trưng lôi cuốn và thu hút mọi ánh nhìn.

Kiến trúc mặt tiền nhà phố với hình khối vuông vắn, kiến cố, hệ thống lan can, tất cả được bố trí khoa học và mạch lạc, tạo nên một hiệu ứng thẩm mỹ vô cùng lôi cuốn và bắt mắt người xem. Hệ thống cửa cổng chính sử dụng vật liệu sắt phun sơn tĩnh điện cùng mảng tường rào kiên cố, hài hòa cùng kiến trúc mặt tiền, góp phần gia tăng vẻ đẹp hiện đại cho công trình. Khôi ban công lầu 1, lầu 2 và lầu 3 đua ra rộng so với tầng trệt 1m, tạo hình khối vững chắc và độc đáo cho ngôi nhà phố.

Sử dụng tông màu sắc sáng làm chủ đạo, kết hợp cùng hệ thống cây xanh, những ô cửa kính cường lực trong suốt khung nhôm xingfa màu đen, vừa giúp cho ngôi nhà đón nhận được nhiều ánh sáng tự nhiên, dòng vượng khí lưu thông tốt, mà còn đem lại không gian gần gũi với thiên nhiên, nét đẹp trẻ trung hiện đại trong tổng thể.
Phối cảnh nội thất phòng khách.



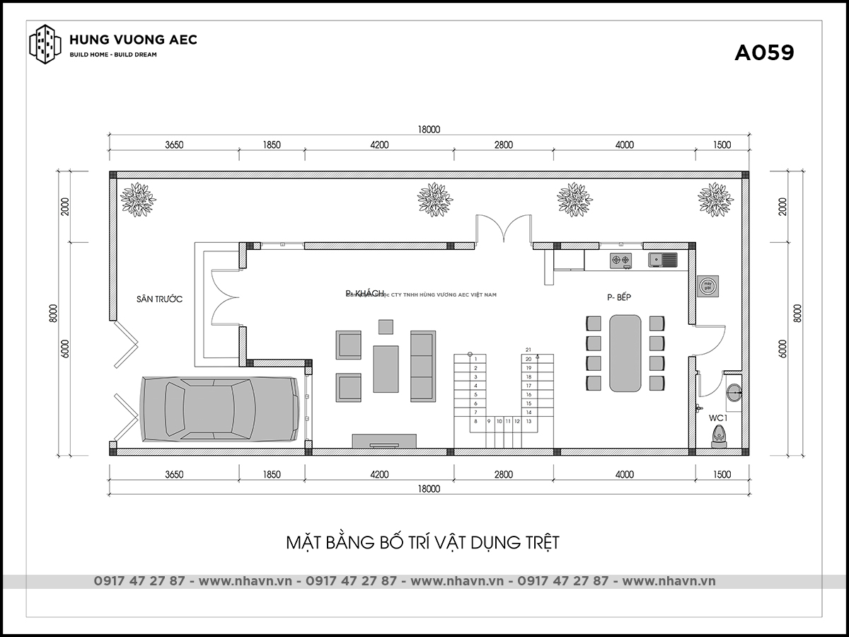
Thiết kế phòng khách khá rộng và thoáng mát khi đặt sát cửa cổng chính, cùng với tiểu cảnh sân vườn sát bên, giúp điều hòa và cân bằng không khí trở nên mát mẻ và trong lành. Đối diện tiểu cảnh là cầu thang thông tầng, tiếp sâu bên trong là khu vực chức năng phòng bếp và ăn, thiết kế đảm bảo sự thoáng khí, tránh mùi thức ăn đọng lại, cuối cùng là nhà vệ sinh chung.
Phối cảnh nội thất phòng bếp.



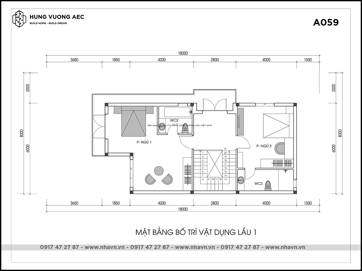
Từ cầu thang thông tầng tiến lên lầu 1 bên tay phải là khu vực phòng ngủ vợ chồng, bố trí hướng ra ban công mặt tiền, có nhà vệ sinh riêng và khu vực trang điểm, tủ kệ treo đồ. Bên tay trái cầu thang là không gian sinh hoạt của con trai, thiết kế mở, có lối ban công sau nhà, có nhà vệ sinh khép kín, tủ kệ đồ.
Phối cảnh nội thất phòng ngủ master.


Phối cảnh nôi thất phòng ngủ 2 lầu 1




Phối cảnh vệ sinh trệt


Phối cảnh vệ sinh phòng ngủ Master.



Yêu cầu mặt bằng công năng bao gồm: tầng trệt: 1 phòng khách, 1 phòng bếp + ăn, nhà vệ sinh chung, giữa nhà là cầu thang thông tầng, đối diện là khu vực tiểu cảnh sân vườn nhỏ. Lầu 1: bố trí 2 phòng ngủ, 2 nhà vệ sinh khép kín, thiết kế thông tầng. Lầu 2: 1 phòng ngủ, 1 phòng sinh hoạt chung, 1 phòng vệ sinh khép kín. Tầng tum: 1 phòng thờ, khu vực giặt phơi, sân thượng trước và sau.

Tầng trệt gồm phòng khách, phòng bếp kết hợp với phòng ăn và 1 nhà vệ sinh dùng chung

Lầu 1 được thiết kế với 2 phòng ngủ cùng nhà vệ sinh khép kín

Lầu 2 gồm nhà kho và sân thượng.
Mẫu thiết kế nhà phố hiện đại 3 tầng với phối cảnh vô cùng tinh tế và đẹp mắt, cùng mặt bằng công năng bố trí khoa học và hợp logic, sẽ là một trong những phương án khả thi dành cho bạn tham khảo. Nếu các bạn muốn biết thêm chi tiết về mẫu nhà phố đẹp này, cũng như phương án thiết kế cho khu đất của mình, hãy liên hệ đến Nhavn để được kiến trúc sư hỗ trợ tư vấn một cách rõ ràng và cụ thể nhất nhé!