Lượt xem: 4221
Thiết kế nhà ống 3 tầng mặt tiền 6m là một mẫu thiết kế dành cho các gia đình trẻ. Mẫu thiết kế nhà ống 3 tầng mặt tiền 6m được thiết kế theo phong cách kiến trúc hiện đại được gia chủ đánh giá rất cao từ thiết kế ngoại thất đến công năng sử dụng.

STT Hạng mục chi tiết
1 Công năng sử dụng 1 phòng khách, 1 phòng ăn, 1 phòng bếp, 3 phòng ngủ, 4 WC, phòng thờ
2 Diện tích đất xây dựng 6x18m
3 Diện tích sử dụng 324m2
4 Chi phí thiết kế kiến trúc 120.000 đ/m2
5 Chi phí thiết kế nội thất 100.000 đ/m2
6 Chi phí thi công xây dựng Liên hệ
Với diện tích chỉ 6x18m các kiến trúc sư đã vô cùng nỗ lực để tạo ra một mẫu thiết kế mang trọn nét đẹp của phong cách kiến trúc hiện đại. Với công năng 3 tầng quả thật là một không gian sống vừa đủ dành cho gia đình gồm 3 thành viên.

Mẫu thiết kế nhà ống 3 tầng mặt tiền 6m được thiết kế với các đường nét giản dị là sự kết hợp giữa các mảng khối hình học giúp tạo được chiều sâu cho căn nhà. Để tăng sự trang nhã, thanh lịch cho ngoại thất, mặt tiền tầng 1 được ốp đá hoa cương cao cấp tối màu giúp tương phản với tone màu trắng của căn nhà. Mặt tiền tầng 2 được tạo điểm nhấn với những thanh nan hệ lam hút gió, tránh nắng với tone màu tối giúp cho căn nhà tôn thêm vẻ đẹp sang trọng. Cách xử lý màu sắc này khiến cho tổng thể của mẫu thiết kế nhà ống 3 tầng mặt tiền 6m trở lên vô cùng khỏe khoắn, đẹp mắt.

Với diện tích nhỏ thì việc đòi hỏi làm sao để cho mẫu thiết kế nhà ống 3 tầng mặt tiền 6m trở nên thoáng mát là điều vô cùng cấp thiết. Vì thế mà các kiến trúc sư tại Nhavn đã sử dụng hệ thống cửa, cửa sổ, ban công được làm bằng kính cường lực cao cấp kết hợp với hệ thống khung thép để tăng cường độ thông thoáng và giúp cho các căn phòng trở nên sáng hơn. Cách sử dụng hệ thống cửa kính vào trong thiết kế sẽ giúp cho ngôi nhà trở nên đẹp mắt mang đậm chất của phong cách kiến trúc hiện đại.

Mẫu thiết kế nhà ống 3 tầng mặt tiền 6m đẹp mắt với hệ thống ban công, sân thượng được trồng nhiều loại cây xanh giúp cho căn nhà trở nên hài hòa, xanh mát giúp cho không gian căn nhà trở nên thoáng mát mà không lo bị lỗi thời.
Với mẫu thiết kế nhà ống 3 tầng mặt tiền 6m hiện đang là xu hướng thiết kế nhà phố hiện nay trong khi quá trình đô thị hóa ngày càng nhanh. Từ đó mà diện tích đất ở cũng ít dần khiến cho nhu cầu làm nhà với diện tích chật hẹp ngày càng nhiều. Vì vậy mà việc làm sao để tạo ra những mẫu thiết kế sao cho đa dạng mẫu mã, phong phú về kiến trúc xây dựng để tăng thêm sự lựa chọn cho khách hàng có thể lựa chọn mẫu thiết kế phù hợp nhất với kinh tế cũng như diện tích đất của gia đình mình đang có. Công năng các tầng được bố trí khoa học mang lại cảm giác thoải mái cho các thành viên trong gia đình.

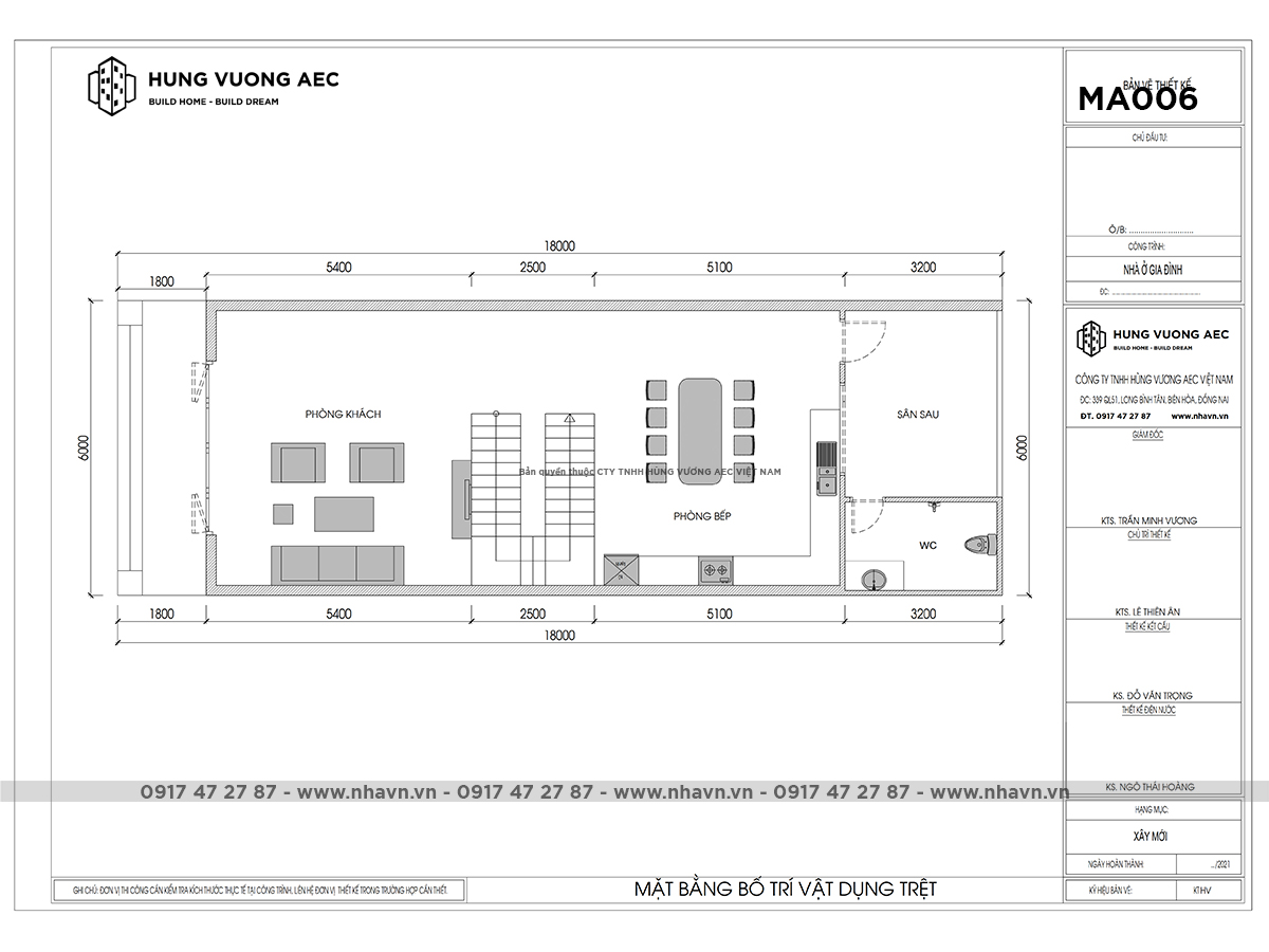
Tầng 1 bao gồm phòng khách, phòng bếp và nhà vệ sinh chung.

Tầng 2 bao gồm hai phòng ngủ, một phòng ngủ có vệ sinh khép kín. một nhà vệ sinh chung.

Tầng 3 bao gồm sân thượng, tiếp đến là phòng thờ, phía sau là phòng ngủ và không gian giặt phơi.
Toàn bộ hồ sơ thiết kế công năng các phòng và kiến trúc đều được tư vấn hợp theo Phong thủy và tuổi của chủ đầu tư. Kích thước các phòng, chiều cao nhà và kích thước cửa đều theo kích thước phong thủy. Nếu bạn muốn tạo ra những bản thiết kế nhà phố đẹp, hoàn hảo thì hãy nhanh tay liên hệ với Nhavn được tư vấn thiết kế nhà ngay nhé! Các kiến trúc sư tại Nhavn.vn nhiều kinh nghiệm trong lĩnh vực thiết kế thi công nhà ở với kiến thức chuyên môn và gu thẩm mỹ nghệ thuật cao cam kết sẽ sáng tạo hết mình mang lại không gian sống lý tưởng nhất cho bạn và gia đình.
-NHÀ PHỐ HIỆN ĐẠI 3 TẦNG 5X20 – MA007
-NHÀ PHỐ HIỆN ĐẠI 3 TẦNG 6X30 – A041
-NHÀ PHỐ HIỆN ĐẠI MÁI LỆCH 3 TẦNG 8X12 – A051