Lượt xem: 6028
Mẫu nhà vườn mái Thái 1 tầng hiện nay đang là sản phẩm ấn tượng và được các chủ đầu tư yêu thích, muốn sở hữu cho mình một ngôi nhà giữa thiên nhiên thoáng đãng. Trong suốt những năm qua, kiến trúc Nhavn đã phủ sóng khắp mọi niềm tổ quốc. Tỉnh thành nào cũng lưu lại những công trình đẹp mang thương hiệu Nhavn.

| STT | Hạng mục | chi tiết |
|---|---|---|
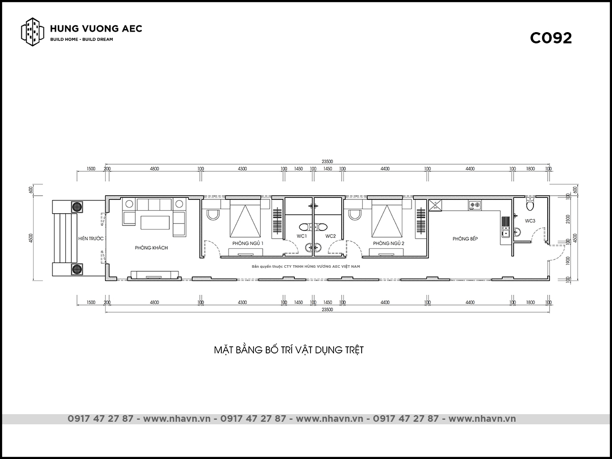
| 1 | Công năng sử dụng | 1 phòng khách, 1 phòng ăn, 1 phòng bếp, 2 phòng ngủ, 3 WC |
| 2 | Diện tích đất xây dựng | 5x25m |
| 3 | Diện tích sử dụng | 113m2 |
| 4 | Chi phí thiết kế kiến trúc | 120.000 đ/m2 |
| 5 | Chi phí thiết kế nội thất | 100.000 đ/m2 |
| 6 | Chi phí thi công xây dựng | Liên hệ |
Với mỗi khách hàng, khi lên phương án mặt bằng và phối cảnh 3D mỗi gia chủ lại có thích các phong cách kiến trúc khác nhau, do vậy để nắm bắt được sở thích và tâm nguyện của mỗi cá nhân đòi hỏi kiến trúc sư phải là người tận tâm theo sát và hiểu được khách hàng mong muốn điều gì. Khách hàng yêu cầu một ngôi nhà vườn có diện tích sàn 2 phòng ngủ tiện nghi và khoảng sân vườn rộng rãi phía trước do đặc điểm khu đất có mặt tiền khiêm tốn so với chiều sâu.

Sau khi tiếp nhận yêu cầu và thông tin từ gia chủ, đội ngũ kiến trúc sư đã bàn bạc thống nhất lên ý tưởng. Sau thời gian làm việc với các phương các được đưa ra, cuối cùng hai bên cùng thống nhất phương án nhà vườn mái Thái hiện đại mà toát lên vẻ sang trọng làm nhiều người không khỏi siêu lòng trước vẻ đẹp của nó.

Mẫu nhà vườn 1 tầng được xây dựng trên một vùng đất rộng, ngôi nhà được thiết kế khá vuông vắn phù hợp với không gian thiên nhiên và nhu cầu công năng sử dụng của gia đình gia chủ với 2 phòng ngủ, phòng khách, phòng bếp, 3 vệ sinh
Điểm nhấn không gian ngoại thất của mẫu biệt thự vườn này là kiến trúc hiện đại cùng hệ thống mái Thái xanh nổi bật. Cửa chính của ngôi nhà được làm bằng chất liệu chắc chắn, thân thiện và sang trọng. Trong khi đó, hệ thống cửa phụ và cửa sổ được làm bằng kính cường lực, giúp ngôi nhà có thể đón được ánh sáng tự nhiên.
Ngôi nhà được thiết kế với nhiều hệ thống cửa chính, phụ và cửa sổ làm ngôi nhà dường như thoáng đãng, gần gũi với thiên nhiên và đón được lượng ánh sáng và khí trời nhất định. Chính vì thế, khi nhìn vào ngôi nhà chúng ta không còn đọng lại cảm giác khối bê tông tù túng và ngột ngạt

Mang trong mình lối kiến trúc hiện đại nhưng không hề đơn điệu mà vẫn toát lên vẻ tươi mới và sang trọng. Đó chính là nhờ cách kiến trúc sư phối màu, sử dụng các tone màu tương phản với các tone màu chủ đạo là màu trắng tinh khôi của sơn, màu xanh của mái ngói và màu nâu của hệ thống cửa, hàng rào và giàn hoa. Hệ thống hàng rào xung quanh nhà cũng được thiết kế các trụ cột sơn trắng cũng tone với ngôi nhà, chạy bao quanh ngôi nhà, giúp ngôi nhà vườn trở nên thơ mộng hơn.
Màu sơn trắng là màu trung tính nên phù hợp với bất kỳ phong cách thiết kế nào. Đây cũng là màu mà bạn nên cân nhắc khi tìm một màu phù hợp để phối cho ngôi nhà thân yêu của mình. Bên cạnh đó, màu xanh than được lựa chọn cho hệ thống mái Thái mang lại không gian sống hiện đại, ưa nhìn và mát mẻ hơn so với màu ngói đỏ. Còn màu nâu của hệ thống cửa dường như điểm xuýt cho ngôi nhà thêm bắt mắt và sinh động.

Mặc dù hạn chế về số tầng nhưng mẫu nhà vườn 1 tầng mái Thái lại được các kiến trúc sư xử lý với một mặt bằng công năng vô cùng linh hoạt để bố trí các phòng chức năng với diện tích phù hợp. Từ đó mà căn nhà có thể đảm bảo được một không gian sống thoáng đãng và đầy đủ tiện nghi.
Hồ sơ bàn giao của mẫu nhà 1 tầng mái Thái đẹp bao gồm:
+Bản vẽ chi tiết kiến trúc và phối cảnh ngoại thất 3D
+Bản vẽ chi tiết nội thất, phối cảnh nội thất 3D
+Bản vẽ kết cấu công trình
+Bản vẽ hệ thống ME (Điện – Nước – Điều hòa – Thông gió – An ninh…)
+Dự toán công trình: chi tiết chi phí xây dựng – Tổng mức đầu tư
Toàn bộ hồ sơ thiết kế công năng các phòng và kiến trúc đều được tư vấn hợp theo Phong thủy và tuổi của chủ đầu tư. Kích thước các phòng, chiều cao nhà và kích thước cửa đều theo kích thước phong thủy.
Các kiến trúc sư tại Nhavn có nhiều kinh nghiệm trong lĩnh vực thiết kế thi công nhà ở với kiến thức chuyên môn và gu thẩm mỹ nghệ thuật cao cam kết sẽ sáng tạo hết mình mang lại không gian sống lý tưởng nhất cho bạn và gia đình.
-NHÀ CẤP 4 MÁI THÁI 3 PHÒNG NGỦ 13X14 – C009