Lượt xem: 3669
Mẫu nhà cấp 4 mái thái 4 phòng ngủ hiện đang đáp ứng tối đa nhu cầu sử dụng và thị hiếu của nhiều gia đình ở nông thôn. Vốn là mẫu nhà thấp tầng, xây dựng theo kiến trúc biệt thự 1 tầng, phong cách thiết kế mái thái đã tạo nên một làn sóng kiến trúc hiện đại. Mẫu nhà dưới đây, được xem là một mẫu nhà ấn tượng, nổi bật nhất.

STT Hạng mục chi tiết
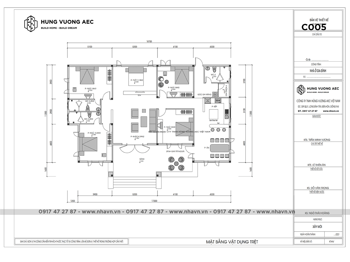
1 Công năng sử dụng 1 phòng khách, 1 phòng ăn, 1 phòng bếp, 4 phòng ngủ, 3 WC, 1 sảnh, 1 phòng thờ
2 Diện tích đất xây dựng 18x14m
3 Diện tích sử dụng 252m2
4 Chi phí thiết kế kiến trúc 120.000 đ/m2
5 Chi phí thiết kế nội thất 100.000 đ/m2
6 Chi phí thi công xây dựng Liên hệ
Kiến trúc mẫu thiết kế kiên cố nhưng thanh thoát, đẹp mắt. Ngoại thất sử dụng sơn sáng màu. Tường bao ưu tiên lối thiết kế thoáng đãng, đơn giản nhưng hiện đại. Hạn chế sự xuất hiện của những mảng tường quá kín, tạo sự bí bách, tuy nhiên tường bao cũng phải có sự riêng tư, ít không gian nhìn ngó thẳng vào trong từ bên ngoài.

Mặt tiền phải thoáng đãng, bậc tam cấp thiết kế chiều rộng bằng chiều rộng của cửa chính để đảm bảo tính phong thủy cao nhất. Mãi ngói thái sử dụng ngói màu xám hiện đại, màu hợp mệnh và là màu ngói gia chủ thích nhất. Hệ thống cửa sổ thiết kế rộng thoáng với cửa 4 cánh để đảm bảo việc đón nhận ánh sáng và lưu thông gió vào bên trong.

Nhận yêu cầu tư vấn chi tiết của chủ đầu tư, kiến trúc sư Nhavn.vn nhanh chóng lên phương án thiết kế thi công mẫu nhà cấp 4 đẹp. Hình khối kiến trúc có sự cân đối, các tỷ lệ cột, mái chính, mái phụ, cửa, sảnh, bậc tam cấp đều có sự cân chỉnh gần như hoàn hảo. Trụ cột vuông trước mặt tiền được trang trí đơn giản nhưng ấn tượng với phần đầu và chân cột. Cột được ốp đá tự nhiên để đảm bảo tuổi thọ sử dụng và tính thẩm mỹ cho không gian.

Phần hiên mái trước thiết kế trang trí với tông màu xanh xám, cân bằng bảng màu chung của ngôi nhà, kết hợp với mái ngói thể hiện sự sang trọng. Không phải là mẫu nhà cao tầng như thường thấy, không gian nhà cấp 4 mái thái vẫn toát lên sự quyến rũ, kiều diễm.

Kiểu mái ngói chữ A có độ dốc vừa phải cùng với phần gờ chỉ trang trí các mảng tường, giúp ngoại thất ngôi nhà trở nên mới mẻ hơn. Tường rào được thiết kế sử dụng các thanh lam mũi nhọn, vừa đảm bảo sự thoáng đãng, vừa giúp gia đình có không gian riêng tư. Mẫu nhà cấp 4 mái thái đẹp được gia đình đón nhận, hài lòng và không có quá nhiều chỉnh sửa.

Phòng khách thiết kế gần với cửa chính để đón nhận ánh sáng. Phòng thờ thiết kế song song với phòng khách. Phòng thờ được thiết kế thành 1 phòng riêng biệt để đảm bảo không gian trang nghiêm không bị các không gian sinh hoạt khác ảnh hưởng. Phòng bếp và phòng ăn được ngăn cách vách ngăn với phòng khách. Phía cuối hành lang là nhà vệ sinh chung. Các phòng ngủ được bố trí xung quanh nhà để đón ánh sáng và thông thoáng
Với cách bố trí công năng sử dụng khoa học, không gian chung cà riêng có sự liên kết không bị chồng chéo. Phòng ngủ của các cá nhân vẫn có sự riêng tư nhưng vẫn thuận tiện khi cần trao đổi. Mẫu nhà cấp 4 mái thái hy vọng sẽ đem đến một gợi ý nhỏ cho nhiều gia đình đang yêu thích kiến trúc nhà cấp 4.