Lượt xem: 5758
Nhavn.vn trân trọng giới thiệu đến quý khách hàng cũng như quý bạn đọc mẫu thiết kế nhà cấp 4 mái thái ở nông thôn, với kiến trúc hiện đại, công năng tối ưu hoá. Mong rằng mẫu thiết kế nhà của chúng tôi sẽ giúp bạn hoàn thiện thêm kế hoạch đầu tư cũng như thi công sắp tới nhé.

STT Hạng mục chi tiết
1 Công năng sử dụng 1 phòng khách, 1 phòng ăn, 1 phòng bếp, 4 phòng ngủ, 4 WC, phòng thờ
2 Diện tích đất xây dựng 17x14m2
3 Diện tích sử dụng 230m2
4 Chi phí thiết kế kiến trúc 120.000 đ/m2
5 Chi phí thiết kế nội thất 100.000 đ/m2
6 Chi phí thi công xây dựng Liên hệ
Mẫu thiết kế nhà được thiết kế và thi công theo yêu cầu tư vấn thiết kế chi tiết của chủ nhà. Toàn bộ diện tích thiết kế mặt sàn chưa đến 240m2. Thiết kế có sân vườn hiện đại cùng với công năng tối ưu hoá 4 phòng ngủ và 1 phòng thờ. Kiến trúc hiện đại và thoáng mát, kiến trúc phải thể hiện sự kiên cố của mẫu nhà cao cửa rộng. Có thể sử dụng vật liệu đá tự nhiên trong việc ốp lát, để hài hoà tổng quan và giúp công trình thêm hiện đại hơn.

Chủ đầu tư yêu cầu thiết kế khoảng hiên chính và phụ để không gian trước thêm thoáng và hiện đại hơn. Sân trước thiết kế rộng cùng với cảnh quan thiên nhiên để đảm bảo không gian sống khoa học và có tính thẩm mĩ cao nhất cho ngôi nhà.

Sau khi tiếp cận yêu cầu tư vấn thiết kế của chủ đầu tư, kiến trúc sư đã tiến hành khảo sát hiện trạng thực tế, từ đó lên phương án thiết kế thi công mẫu nhà cấp 4 đẹp hoàn thiện cho công trình. Nến đất thi công khá cứng tốt, cho nên phương án thi công móng băng nhanh chóng được lựa chọn. Diện tích thi công mặt bằng tương đối rộng, cùng với vị trí thuận tiện cho việc thi công, cho nên phương án tập kết nguyên vật liệu khá dễ dàng cũng như thuận tiện.

Sân trước thi công khá thoáng và rộng, thay vì sử dụng gạch chỉ đỏ, kiến trúc sư thiết kế gạch màu xám, đây chính là điếm khác biệt hoàn toàn so với những công trình khác. Toàn bộ phân chân tường cũng như bậc tam cấp chính và phụ được ốp đá tự nhiên màu nâu đen, đem đến những nét thẩm mĩ khá cao, với tính sang trọng và sự bề thế hiện đại. Kiến trúc cột chính ở giữa được thi công khối cột vuông, chú trọng đến việc trang trí chân cột và đầu cột, thân cột được trang trí nên khá nổi bật.
Kiến trúc nhà cấp 4 mái thái thiết kế giật cấp, khối hình chữ A cùng với độ đua, bao phủ rộng, mặt tiền trước được thiết kế theo kiểu giật đối xứng, cân bằng và giúp cho hình khối tổng thể cân bằng và hoành tráng hơn. Với thiết kế mái thái, không gian kiến trúc của công trình sẽ có hiệu ứng thẩm mĩ cao hơn, mặc dù kỹ thuật thi công có yêu cầu cao hơn, nhưng tuổi thọ sử dụng bền hơn rất nhiều. Nhìn từ trên cao xuống, mẫu thiết kế không chỉ thể hiện kết cấu bền vững, sự bứt phá trong kiến trúc, nó phô diễn toàn bộ những nét vững chãi và uyển chuyển của mẫu nhà đẹp cấp 4 hiện đại.

Hình khối nhà cấp 4 nông thôn đẹp đi cùng với sân trước thoáng, rộng, cảnh quan thiên nhiên xanh mát đem đến không gian sống không những tiện nghi và còn khoa học, đáp ứng tốt nhất nhu cầu sử dụng của các thành viên trong gia đình.
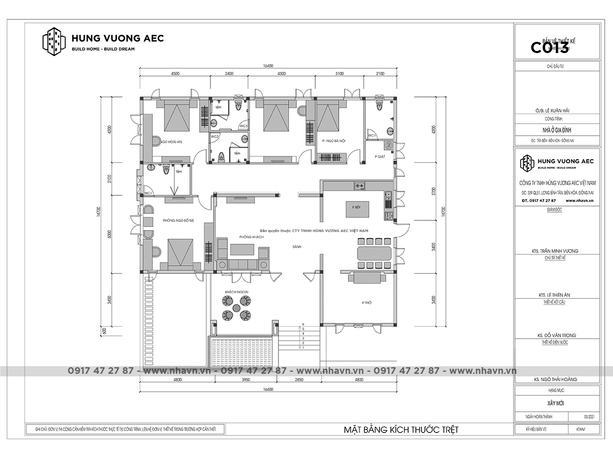
Mặt bằng công năng sử dụng của mỗi công trình luôn là nhiệm vụ quan trọng mà kiến trúc sư không thể bỏ qua. Để mặt bằng công năng sử dụng có tính ứng dụng cao trong thực tế, ngoài nhu cầu của gia đình, kiến trúc sư còn cần căn cứ trên điều kiện thực tế của ô đất.

Phòng khách được bố trí ngay cạnh sảnh chính, thiết kế ở vị trí như này thuận tiện cho việc di chuyển sinh hoạt cũng như dòng vượng khí có thể lưu thông. Phòng ăn và bếp nấu được thiết kế riêng về phía góc phụ, khá thoáng và thuận tiện cho việc di chuyển. Phía tay phải phía trong thiết kế và bố trí 4 phòng ngủ liền kề. 2 phòng ngủ nhỏ của hai con được thiết kế gần với sảnh chính, phòng ngủ master được bố trí phía trong cùng, thiết kế gần với nhà vệ sinh chung. Nhà vệ sinh chung được đặt ở góc giao với hành lang giao thông, thuận tiện cho việc di chuyển cũng như đi lại của các thành viên trong gia đình.
Mẫu thiết kế nhà đẹp cấp 4 mái thái hiện đại và khoa học, dự toán thi công chi tiết được tính toán chi tiết cụ thể ngay sau đó. Chủ đầu tư hoàn toàn hài lòng cũng như vừa ý với phương án thiết kế mà kiến trúc sư đưa ra. Hợp đồng ký kết thi công trọn gói được triển khai nhanh chóng.