Lượt xem: 4024
Nhà cấp 4 mái thái 2 phòng ngủ vẫn luôn là xu hướng xây dựng nhà ở của nhiều gia đình trên khắp vùng miền bởi sự kết hợp hài hòa giữ nét đẹp truyền thống và kiến trúc hiện đại. Ngoài ra, với không gian ngoại thất tinh tế, sang trọng cùng công năng sử dụng bên trong được bố trí khoa học, tiện nghi, những mẫu nhà cấp 4 chắc chắn sẽ mang đến cho gia chủ một không gian sống lý tưởng nhất.

STT Hạng mục chi tiết
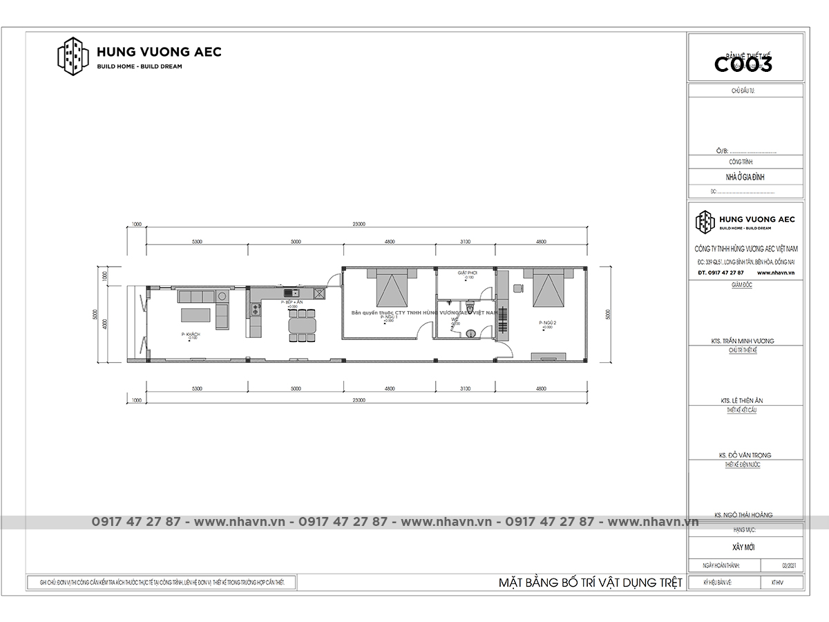
1 Công năng sử dụng 1 phòng khách, 1 phòng ăn, 1 phòng bếp, 2 phòng ngủ, 1 WC.
2 Diện tích đất xây dựng 5x23m
3 Diện tích sử dụng 115m2
4 Chi phí thiết kế kiến trúc 120.000 đ/m2
5 Chi phí thiết kế nội thất 100.000 đ/m2
6 Chi phí thi công xây dựng Liên hệ
Để có cái nhìn cụ thể hơn về mẫu nhà đang được ưa chuộng này, chúng tôi xin giới thiệu tới quý khách mẫu nhà cấp 4 dưới đây. Hy vọng mẫu thiết kế nhà sẽ giúp bạn nhanh chóng hoàn thiện kế hoạch xây nhà của gia đình nhé. Công năng chính của mẫu nhà bố trí 2 phòng ngủ, 1 phòng khách và phòng bếp liền phòng ăn. Phòng thờ sẽ thiết kế tích hợp với phòng khách, thiết kế theo đúng thuần phong mĩ tục của nông thôn Việt Nam.

Diện tích ô đất của gia đình anh chị khá rộng, tuy nhiên do số thành viên trong gia đình anh không quá đông cùng với công năng sử dụng đơn giản nên diện tích thiết kế thi công dự kiến của công trình là 115m2. Thiết kế hiện đại, sử dụng nguyên vật liệu thân thiện với môi trường, giá thành vừa phải, không quá đắt đỏ.

Gần gũi, giản dị nhưng cũng rất hiện đại, tiện nghi là những từ miêu tả chính xác nhất khi nhận xét về mẫu nhà cấp 4 đẹp 2 phòng ngủ 5x23m này. Mặt tiền được trang trí đơn giản nhưng nổi bật nhất là hệ cửa kính cao cấp giúp không gian thu hút ánh sáng mặt trời, mang lại một không gian luôn tràn ngập ánh sáng. So với các loại vật liệu truyền thống làm bằng gỗ thì cửa kính khung nhôm được nhiều người chú ý sử dụng nhiều hơn bởi giá thành ở mức hợp lý, không quá đắt đỏ.
Mái nhà là bộ phận quan trọng, giúp bảo vệ toàn bộ nội thất bên trong ngôi nhà cũng như giúp ngôi nhà tránh khỏi các tác động của thời tiết. Đặc biệt, đây cũng là điểm nhấn của khối kiến trúc giúp thu hút người nhìn. Mẫu nhà cấp 4 đẹp 2 phòng ngủ với thiết kế mái ngói thể hiện sự sang trọng và bắt mắt. Hệ thống mái ngói sở hữu độ dốc phù hợp, dễ dàng thoát nước mưa, không lo vấn đề bị đọng nước trên mái gây ẩm mốc, thấm dột ảnh hưởng tới chất lượng cũng như vẻ thẩm mỹ của ngôi nhà.

Màu sắc sơn được sử dụng cho mẫu nhà cấp 4 đẹp 2 phòng ngủ là màu trắng. Tông trắng trung tính của ngoại thất được sử dụng một cách hài hòa, tuyệt vời và hợp lý. Kết hợp với hệ thống gạch ốp làm tăng thêm giá trị độc đáo cho tổng thể kiến trúc công trình. Các màu sắc này phối kết hợp một cách nhịp nhàng, tạo nên vẻ đẹp đẳng cấp, tinh tế, quyến rũ cho mặt tiền mẫu nhà cấp 4 mái thái.
Công năng sử dụng của mẫu nhà cấp 4 mái thái 2 phòng ngủ 5x23m rất tiện nghi, đầy đủ. Từ sảnh chính bước vào, ta sẽ bắt gặp không gian đầu tiên là phòng khách rộng rãi. Bên trái phòng khách chính là gian thờ trang nghiêm, sang trọng. 2 phòng ngủ được thiết kế theo sở thích và nhu cầu của từng thành viên trong gia đình.

Toàn bộ hồ sơ thiết kế công năng các phòng và kiến trúc đều được tư vấn hợp theo Phong thủy và tuổi của chủ đầu tư. Kích thước các phòng, chiều cao nhà và kích thước cửa đều theo kích thước phong thủy.
Các kiến trúc sư tại Nhavn.vn có nhiều kinh nghiệm trong lĩnh vực thiết kế thi công nhà ở với kiến thức chuyên môn và gu thẩm mỹ nghệ thuật cao cam kết sẽ sáng tạo hết mình mang lại không gian sống lý tưởng nhất cho bạn và gia đình.