Lượt xem: 8555
Kiến trúc hiện đại, tính thẩm mỹ cao cùng với công năng khoa học, mẫu nhà cấp 4 mái thái 3 phòng ngủ dưới đây đã nhận được nhiều lời khen ngợi của các chủ đầu tư. Mẫu nhà thấp tầng với gia đình có quỹ đất rộng, việc xây dựng mẫu nhà 1 tầng sẽ hạn chế chi phí thi công đổ thang. Mặt khác cha mẹ anh đã già, xây nhà thấp tầng sẽ giúp cho việc đi lại di chuyển của ông bà thuận tiện và dễ dàng hơn. Công năng tập trung một mặt sàn thì sẽ gắn kết các thành viên với nhau hơn so với việc thiết kế riêng mỗi tầng.

| STT | Hạng mục | chi tiết |
|---|---|---|
| 1 | Công năng sử dụng | 1 phòng khách, 1 phòng ăn, 1 phòng bếp, 3 phòng ngủ, 2 WC. |
| 2 | Diện tích đất xây dựng | 9x13m |
| 3 | Diện tích sử dụng | 120m2 |
| 4 | Chi phí thiết kế kiến trúc | 120.000 đ/m2 |
| 5 | Chi phí thiết kế nội thất | 100.000 đ/m2 |
| 6 | Chi phí thi công xây dựng | Liên hệ |
Mẫu nhà 1 tầng mái thái. Hình khối kiên cố, thanh thoát. Mặt tiền đẹp mắt, đón thoáng và gió tốt. Ngôi nhà phải có không gian sân vườn rộng để anh trồng hoa, tiểu cảnh. Hệ thống tường rào bao quanh thiết kế đơn giản, sử dụng hệ tường rào sắt phun sơn tĩnh điện thay thế cho tường bao bê tông để giảm thiểu cảm giác tù túng. Mái thái lựa chọn mái màu xám đậm, độ dốc vừa phải, thiết kế có mái phụ, thiết kế chéo và giật cấp để tạo điểm nhấn cho không gian ngoại thất của ngôi nhà. Ưu tiên sử dụng sơn màu sáng, hệ thống cửa sẽ sử dụng cửa nhôm màu xám.

Mẫu thiết kế nhà mái thái nổi bật hơn hẳn những công trình cùng thiết kế bên cạnh. Không gian kiến trúc thể hiện sự vững chắc với hình khối cân đối. Tỷ lệ cột, mái, các chi tiết trang trí khá đồng đều. Mặt tiền phía trước có chiều rộng lớn, kiến trúc sư thiết kế chia là 3 không gian như những mẫu nhà cấp 4 xưa cũ. 3 gian hai chái, hiên trước được thiết kế cao, với bậc tam cấp ốp đá granite màu tối, làm đệm để tôn lên những nét đẹp tổng thể của không gian bên trong.

Kiểu mái giật cấp kết hợp với chi tiết mái chéo, kéo dài, tạo nên sự khác biệt chi tiết trên phần mái với sân vườn và không gian phía dưới. Phần mái chính trang trí những đường chỉ kẻ lõm, sẽ tạo nên cảm giác thanh thoát hơn cho mẫu thiết kế nhà.

Kiến trúc sư rất khéo léo khi kết hợp mái thái màu xám đậm với hệ tường rào bao quanh phía mặt tiền bằng hoa sắt phun sơn tĩnh điện màu đen. Vừa thoán đáng, vừa đẹp mắt, vừa tiết kiệm thời gian, chi phí thi công mà lại đảm bảo yêu cầu tư vấn của gia đình. Để phần mái bớt đơn điệu, kiến trúc sư đã triển khai mái phụ nhỏ để trang trí, đồng thời phần mái phụ này sẽ là nơi di chuyển đi lại kết nối giữa phần trên mái và dưới nhà khi gia chủ có việc cần kiềm tra. Không hề cầu kỳ, không có sự xuất hiện của quá nhiều các chi tiết phào chỉ, mẫu nhà 1 tầng mái thái 3 phòng ngủ ghi điểm với sự đơn giản, thanh thoát mà không kém phần sang trọng.
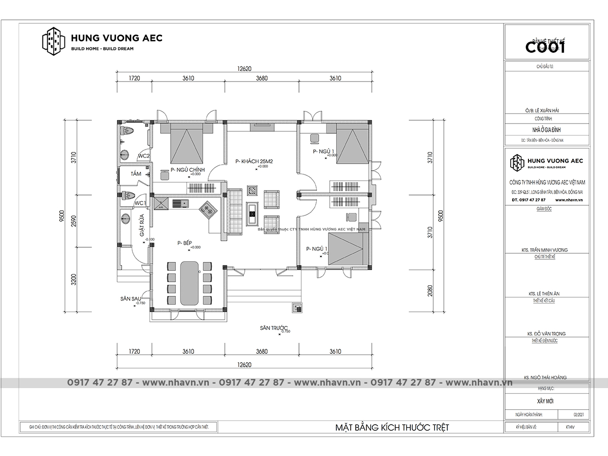
Công năng bố trí cho gia đình 3 thế hệ sinh sống sao cho khoa học là vấn đề quan trọng, được kiến trúc sư cân nhắc cẩn thận. Từ sảnh chính bước vào trong là phòng khách rộng có thể chia nhỏ để làm phòng thờ. Không gian phòng khách đặt ở trung tâm, kéo dài hết diện tích bề ngang của ngôi nhà.

Từ không gian trung tâm, nhà phân chia các không gian sinh hoạt riêng thành hai bên. Phòng ngủ của ông bà và phòng ngủ của bố mẹ đặt ở hai bên cạnh phòng khách, có cửa sổ hướng thẳng ra mặt tiền. Tiếp giáp với phòng ngủ của ông bà là phòng bếp. Phòng bếp tích hợp với phòng ăn, thiết kế theo kiểu chữ L nên khá thuận tiện cho việc sử dụng và bố trí nội thất. Thiết kế nhà vệ sinh thuận tiện cho việc sinh hoạt. Nhà vệ sinh chung được đặt ở góc, cạnh phòng bếp để các thành viên có thể dễ dàng di chuyển.
Nếu quý khách hàng có nhu cầu tư vấn thiết kế nhà, hãy liên hệ để được kiến trúc sư của chúng tôi tư vấn chi tiết và cụ thể.