Lượt xem: 2566
Không hề “bị đe dọa” trước những loại hình kiến trúc khác đang phát triển, những thiết kế nhà ống hiện đại vẫn giữ được vị trí của mình trong lòng nhiều gia chủ vì những đặc tính ổn định của loại hình công trình này. Chúng tôi xin phép giới thiệu đến bạn đọc công trình nhà phố hiện đại 4 tầng là thiết kế mới nhất thuộc hạng mục này.

| STT | Hạng mục | chi tiết | 
|---|---|---|
| 1 | Công năng sử dụng | 1 phòng khách, 1 phòng ăn, 1 phòng bếp, 4 phòng ngủ, 5 WC | 
| 2 | Diện tích đất xây dựng | 4x14.5m | 
| 3 | Diện tích sử dụng | 206m2 | 
| 4 | Chi phí thiết kế kiến trúc | 120.000 đ/m2 | 
| 5 | Chi phí thiết kế nội thất | 100.000 đ/m2 | 
| 6 | Chi phí thi công xây dựng | Liên hệ | 
Như đã nhắc tới phía trên, chủ đầu tư không chỉ là người có gu thẩm mỹ tinh tế và độc đáo mà còn am hiểu về lĩnh vực kiến trúc và thiết kế. Chính vì thế những yêu cầu của chủ đầu tư là tái hiện được một không gian nhà phố 4 tầng theo phong cách hiện đại sao cho vừa giữ được nét đẹp phòng khoáng trẻ trung mà vẫn đảm bảo tối ưu không gian sử dụng. Nắm được yêu cầu của gia chủ, các kiến trúc sư trình bày mẫu thiết kế nhà phố mang đậm hơi thở của thời đại mới, được tạo thành bởi những đường nét kiến trúc trẻ trung và cuốn hút. Tổng thể công trình mang lại cảm giác phóng khoáng nhưng vẫn giữ được nét sang trọng và nổi bật so với những thiết kế cùng hạng mục.

Nói về ngôn ngữ thiết kế kiến trúc của căn nhà ống hiện đại này, bạn đọc có thể cảm nhận ngay được sự tinh tế của các cách kết hợp hình khối với các tỷ lệ độc đáo và khác lạ. Những hình khối vuông vức này được khéo léo cài cắm với các tỷ lệ khác nhau, bổ trợ và tôn lên kiến trúc hiện đại của tòa nhà. Cũng chính nhờ cách kết hợp khéo léo này đã tạo nên hiệu ứng thị giác đặc biệt khiến cảm tưởng diện tích tòa nhà như được mở rộng so với thực tế, xóa nhòa đi mọi giới hạn về không gian và khoảng cách.
Có thể nói, một trong những hạn chế cố hữu mà nhiều công trình thiết kế nhà ống thường gặp phải đó chính là diện tích không quá lý tưởng, cùng với việc nằm trong những con phố có mật độ nhà cao, vô hình chung làm hạn chế ánh sáng và không khí tự nhiên tràn vào không gian nhà ở. Điều này không chỉ mang lại những vấn đề về sức khỏe của người sống mà còn ảnh hưởng xấu đến phong thủy của căn nhà. Chính vì vậy giải pháp khắc phục vấn đề này được các kiến trúc sư đưa vào trong thiết kế nhà ống những ô cửa sổ, cửa hút gió được lắp kính cường lực cao cấp. Giải pháp này không chỉ khiến không gian tòa nhà thêm rộng thoáng mà còn tối đa hóa được ánh sáng tự nhiên, đem lại không khí hài hòa cho thiết kế.

Nói về màu sắc, đây cũng lại là một sự tinh tế của các kiến trúc sư được thể hiện trên ngoại thất của công trình. Thay vì màu sơn trắng có phần đơn điệu, những mảng màu thú vị đã được thêm vào một cách tinh tế, vô cùng hòa hợp với phong cách và hình ảnh chung của căn nhà này. Ngoài ra, chúng tôi cũng giải đáp những thắc mắc về vật liệu xây dựng mà bạn đọc còn đang băn khoăn, tất cả vật liệu xây dựng trong căn nhà này được sử dụng các nguyên vật liệu cao cấp, không chỉ đảm bảo thẩm mỹ mà còn đem lại độ bền vững chắc với thời gian.
Nội thất phòng khách



Nội thất phòng bếp



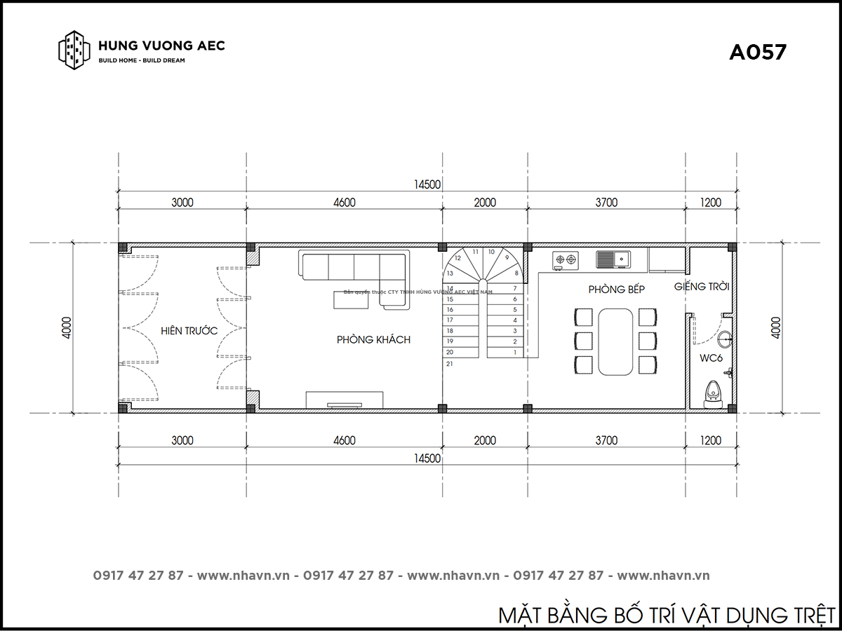
Song hành cùng một thiết kế đầy tính hiện đại và thẩm mỹ, cách sắp xếp công năng sử dụng phía trong cũng mang lại những khoảng không gian đẹp cho nhà ống hiện đại. Với diện tích 48m2 (4m x 12m), căn nhà được chia làm 4 tầng phù hợp với nhu cầu sử dụng của toàn bộ thành viên trong gia đình. Mỗi không gian đều được tính toán hợp lý để tối ưu diện tích nhưng vẫn mang đậm nét cá tính của gia chủ. Dưới đây là phương án chia công năng sử dụng của tòa nhà:

Tầng trệt gồm phòng khách, phòng bếp kết hợp với phòng ăn, và nhà vệ sinh chung.

Lầu 1 gồm 2 phòng ngủ với nhà vệ sinh khép kín.

Lầu 2 gồm 2 phòng ngủ với nhà vệ sinh khép kín.

Lầu 3 được bố trí với 1 phòng ngủ, khu giặt phơi và nhà vệ sinh chung
Trên đây, Nhavn.vn đã gửi đến các bạn tổng hợp thiết kế nhà phố hiện đại 4 tầng mang phong cách sang trọng tinh tế. Với thiết kế tối giản của những đường nét và công năng sử dụng hiện đại, căn nhà đã trở thành nơi ở và làm việc lý tưởng cho gia chủ. Với kinh nghiệm nhiều năm làm việc trong lĩnh vực thiết kế nội ngoại thất, thi công và sở hữu đội ngũ kiến trúc sư giàu kinh nghiệm cùng những ý tưởng sáng tạo của mình, Nhavn.vn cam kết đem lại những thiết kế độc đáo, mới mẻ, và quan trọng nhất là đáp ứng được mọi nhu cầu khắt khe nhất của gia chủ. Hãy liên hệ với chúng tôi để được tư vấn thiết kế và cùng nhau, chúng ta xây dựng lên căn nhà mơ ước của bạn.